2D CAD to BIM: How to Ease the Transition

For many architects and designers, 2D CAD feels like home, even though the familiar workflows can be time-consuming and error-prone, particularly when coordinating multiple drawings manually.
Moving from 2D CAD to BIM isn’t about abandoning what you know. It’s about building upon it to create coordinated, data-rich, 3D models that save time, minimise errors, and meet modern client expectations.
If you’ve dabbled with 3D or BIM before, maybe you felt overwhelmed. But you can rest assured that the latest version of Vectorworks Architect makes BIM accessible and customisable to suit your workflow needs in a variety of ways. Here’s why now is the perfect time to take another look at BIM.
WHY TRANSITIONING TO BIM MATTERS FOR YOU
Working in 2D means managing every detail manually, which can lead to disjointed, uncoordinated files. Each new drawing — plans, sections, and elevations — requires adjustments for consistency across the board. Mistakes can happen easily, from mismatched dimensions to missed elements in complex drawings. And let’s not forget that adding project data is often a separate process, either added as annotations or referenced in external documents, which can lead to further inefficiencies and risks.
Switching to BIM with Vectorworks Architect streamlines this process, allowing you to create a single, comprehensive 3D model. This model can then automatically generate accurate 2D views, like plans, sections, and elevations, and holds project data within the objects themselves. The result? A more efficient workflow, fewer manual adjustments, and less room for error. Plus, having a 3D model to share with clients means they can visualise the project more clearly, increasing their understanding and satisfaction.
HOW TO EASE INTO BIM WITH KEY TOOLS AND FEATURES IN VECTORWORKS ARCHITECT
Walls
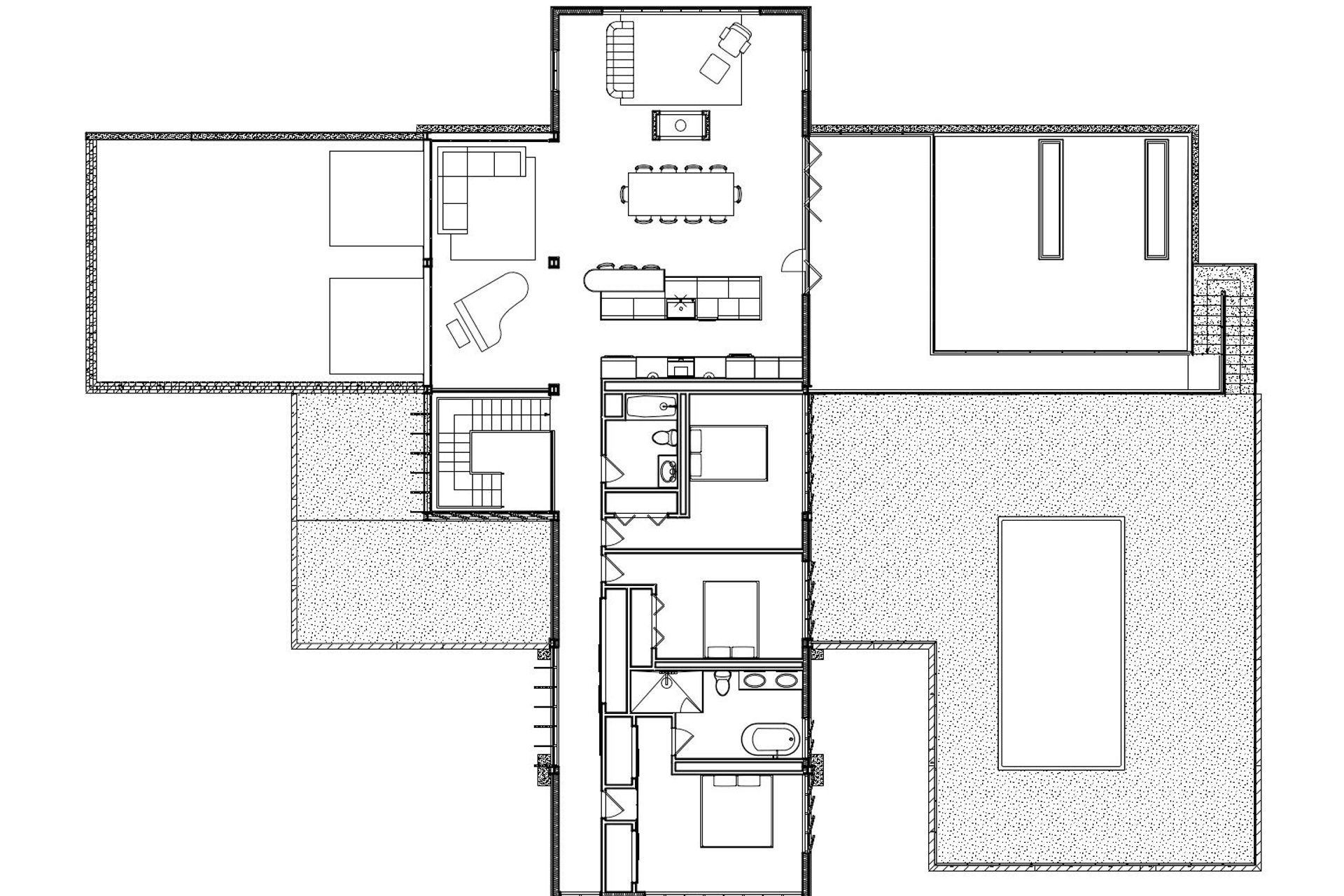
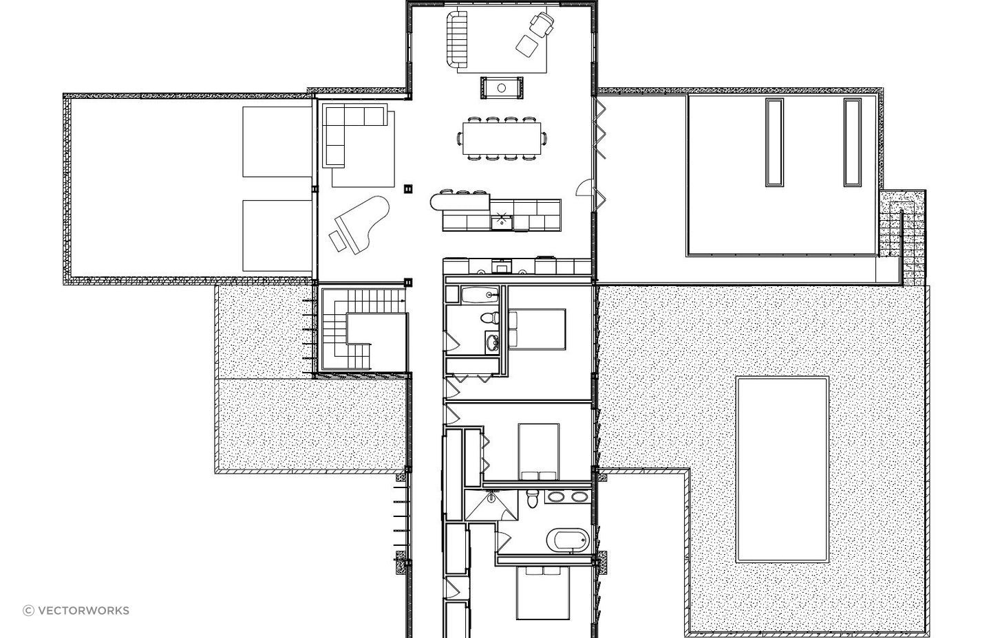
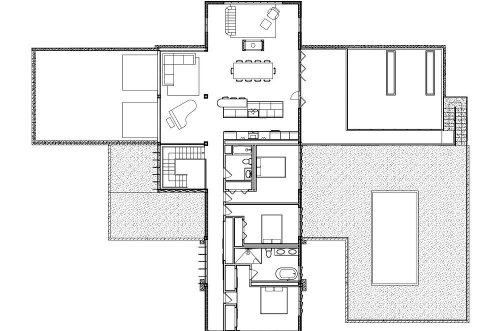
Instead of drawing lines to represent walls, use Vectorworks Architect’s Wall objects. These let you set wall thickness for a 2D CAD look, but when you’re ready, you can add 3D components, giving your model dimension and structure. Wall objects also allow you to add doors and windows with just a few clicks, automatically creating openings that stay consistent even if sizes are adjusted.

Doors and Windows
Like walls, doors and windows in Vectorworks Architect are not just generic shapes. Insert these objects directly into walls, and they’ll automatically create properly sized openings while also handling details such as shim gaps, wall returns, and advanced splay conditions. When you resize a door or window, the wall adapts seamlessly. Beyond visuals, you can use these elements to generate reports, helping you stay organized and accurate without needing to track every change manually.

Layers and Layer Elevations
You may already use layers to organise your 2D drawings, but layers in BIM go a step further. Set layer elevations and wall heights to position elements accurately across multiple floors, stacking walls, doors, and windows with precision. This consistency speeds up your process and lays the foundation for generating accurate sections and elevations, which can be done directly from your 3D model without the need to draw them manually.

KEY BENEFITS OF MOVING TO BIM IN VECTORWORKS ARCHITECT
Consistency without Switching Software
Vectorworks Architect lets you transition from 2D CAD to 3D BIM within the same application, so you don’t have to learn an entirely new tool. This flexibility allows you to gradually add BIM elements into your workflow as you’re ready, building on what you know while adding new capabilities to your process.

Integrated Data for Smarter, Faster Decisions
In Vectorworks Architect, 3D models contain information-rich objects, such as walls, doors, and windows, which can store essential data like dimensions, materials, and quantities. This data can be reported automatically, saving you from having to count or track elements manually and making it easier to respond quickly to client requests or regulatory requirements. In the Object Info Palette on the right side of the screen, you can see the information about the selected wall object.
Better Visuals and Enhanced Client Communication
BIM enables you to provide clients with realistic 3D visuals that communicate design ideas far better than 2D drawings. Clients no longer must rely on imagination alone — they can see and explore their projects. This added understanding can shorten approval times and improve client satisfaction, helping you stand out in a competitive industry.

BUILDING CONFIDENCE: TIPS TO MAKE THE TRANSITION SMOOTH
The journey to BIM doesn’t have to be an all-or-nothing leap. Consider focusing on one tool at a time — start with Vectorworks Architect’s hybrid 2D/3D walls, for example. Experiment, adjust, and get a feel for how the settings impact your results. Check out the "Leveling the Learning Curve" webinar or "Transitioning to 3D BIM" webinar, which are excellent places to find guidance. The Vectorworks Help system also contains a wealth of information to help you along your journey.
For inspiration, explore how firms like Low Hammond Rowe have achieved substantial efficiency gains by moving to BIM in Vectorworks Architect. Their experience shows that BIM can lead to better coordination, faster project delivery, and significant time savings.
EMBRACE THE EVOLUTION
The architecture industry is evolving, and so are client expectations. Staying competitive means embracing tools that enable faster, smarter work. Moving from 2D CAD to BIM lets you keep the control you value in 2D while adding the benefits of a coordinated, data-rich 3D model. This shift isn’t just about technology — it’s about empowering you to create better designs, deliver more value to clients, and work with confidence.
So, if BIM once felt overwhelming or unfamiliar, take another look. Vectorworks Architect has grown to make this transition easier and more intuitive, and with practice, BIM can become an invaluable asset in your architectural toolkit. Start small, explore, and evolve your skills — your clients and projects will thank you for it.
