CoCA Redevelopment Cairns (Feb 2019)

2019 is set to be an exciting year in the cultural life of Cairns. Arts Queensland has unveiled TPG Architects’ design for the major upgrade to the Centre of Contemporary Arts (CoCA). Incorporated in the sun shade screen facade will be a digital screen that will platform curated public art. Depicted here is My Country by Mornington Island artist Kuruwarriyingathi Bijarrb Paula Paul, 2009.
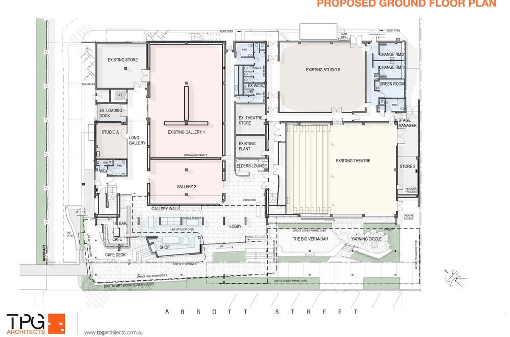
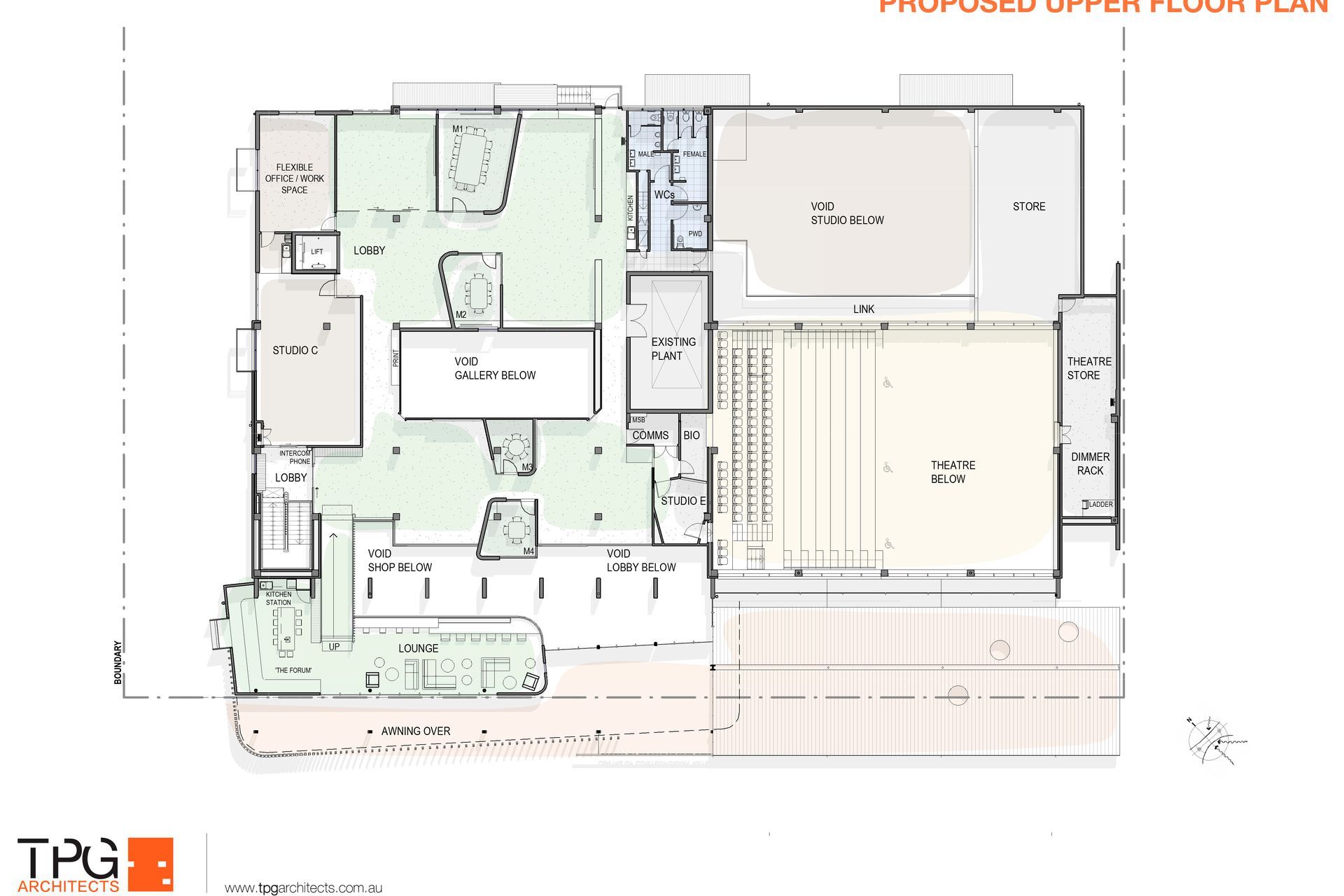
Here are the design plans as created by TPG Architects (or to view them on Arts Queensland’s website, click here.)
Image Credits: TPG Architects



