Standard Measurements to Consider When Planning Your Next Kitchen Renovation
Planning a kitchen renovation is an exciting project, and understanding key measurements is crucial for a functional and stylish outcome. A successful design combines practical use of space with ease of movement and accessible storage. If you’re using a kitchen planner NZ, a kitchen planner, kitchen design planner, or a kitchen designer, focusing on these measurements can prevent common design issues and help create a kitchen that’s comfortable and efficient.
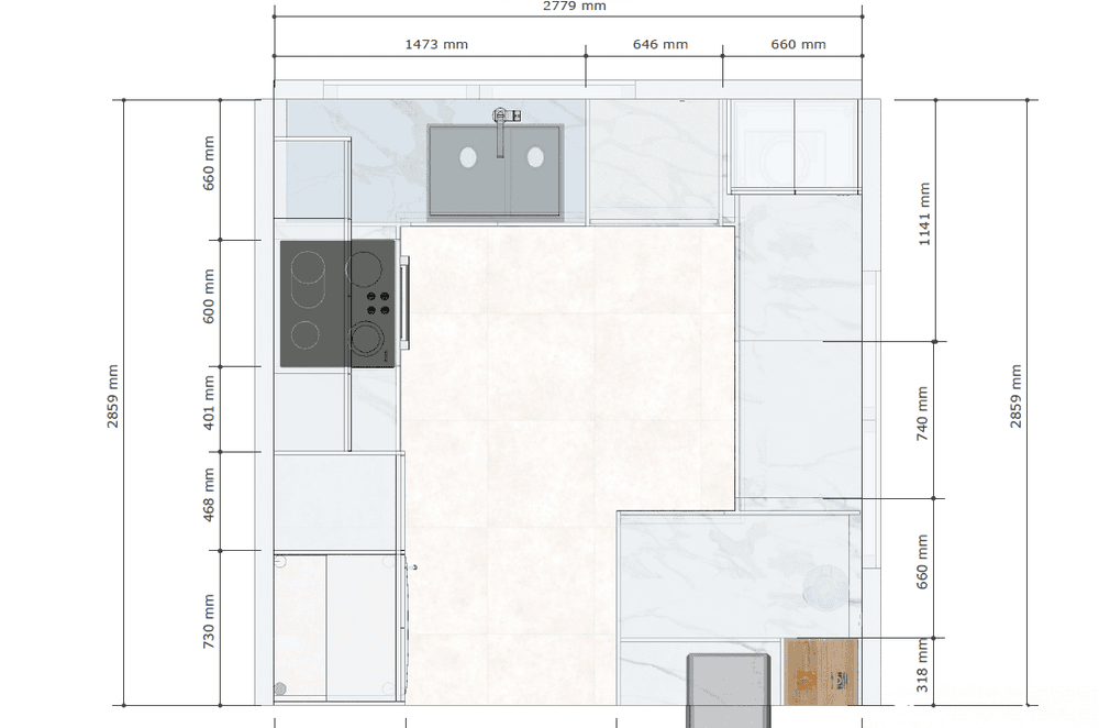
Using tools like a 3D kitchen planner can also help you visualize the space accurately before construction begins, ensuring everything from countertops to appliance placement is in perfect harmony. If you are renovating with a renovation company, your kitchen designer will be using their 3D planning software to create 3D Designs as well as realistic rendering, so you are able to visualise your kitchen. Also these 3D drawings are important to see the correct measurements for a truly functional kitchen.
Why Standard Measurements Matter in Kitchen Renovation? – Importance of Functionality.
Standard measurements are the backbone of an effective kitchen layout. They ensure that countertops are at a comfortable height, that cabinets offer sufficient storage without obstructing pathways, and that every element feels balanced and accessible. Properly spaced cabinets, countertops, and appliances not only improve functionality but also add to the aesthetics and flow of the room. A 3D kitchen planner can be especially helpful, as it allows you to play with these measurements digitally before finalizing the design.
Interior designer Mary Johnson emphasizes, “Design isn’t just about how a space looks but also about how it functions day-to-day.” This principle is especially true in a kitchen, where the smallest measurement misstep can impact how well the space serves you.

9 Measurement Factors that lead to a Functional Kitchen
Whether you’re planning a full-scale renovation or just updating specific elements, here are some crucial measurements to keep in mind.
Counter Height and Depth
Countertops are central to kitchen functionality, and getting their height and depth right is essential for comfort and utility.
Standard Countertop Height:
Typically, countertops are set at 36 inches (91 cm) from the floor. This height works well for most people, offering a balance between comfort and accessibility.
Standard Countertop Depth:
The depth of kitchen countertops generally measures around 24 inches (61 cm). However, if you’re using a Kitchen planner or 3D kitchen planner,” adjust this slightly if you need more space for appliances or storage.

2. Base Cabinets
Base cabinets form the foundation of most kitchen designs, housing everything from utensils to bulky items like pots and pans. Their height, depth, and width should align with industry standards.
- Height: Base cabinets typically stand 34.5 inches (88 cm) tall without the countertop and around 36 inches (91 cm) with the countertop installed.
- Depth: These cabinets are usually 24 inches (61 cm) deep, providing ample storage while fitting seamlessly with the countertop.
- Width: Cabinet widths vary, but common options include 12, 18, 24, 30, and 36 inches. By using a Kitchen design planner, you and yoru designer can visualize which cabinet widths best suit your kitchen’s specific layout.
These dimensions ensure optimal functionality and allow for effective cabinet access. As Houzz states, “Careful consideration of standard measurements keeps cabinets from interfering with workspace and traffic flow,” which reinforces the importance of these guidelines in design planning.
Upper Cabinets and Shelving
Upper cabinets and shelves provide extra storage without taking up floor space, making them ideal for maximizing kitchen space
Height Above Countertop:
The bottom of upper cabinets should be 18 inches (46 cm) above the countertop. This standard distance allows users to reach items without hindering countertop space.
Depth:
Upper cabinets are usually 12 to 15 inches (30–38 cm) deep, creating a compact yet spacious area for dishware and food items.
Your kitchen designer can easily make these adjustments on her/his software. The key is to choose a qualified kitchen designer who is aware of the fundaments of measurements for a functional kitchen design.
4. Walkway and Clearance Space
Ensuring ample space for movement and clearance is vital for a functional kitchen layout.
• Aisle Width: The primary aisle between countertops, cabinets, and appliances should be at least 42 inches (107 cm) for a single-cook kitchen and 48 inches (122 cm) for a two-cook kitchen. This spacing provides enough room for efficient workflow.
• Distance Between Countertops and Islands: In an open kitchen, leaving 42–48 inches (107–122 cm) between countertops and islands ensures enough space for appliance doors to open without obstruction.
These measurements offer a blend of comfort and efficiency, reducing the risk of crowding and keeping your kitchen functional for cooking, cleaning, and entertaining.
Read more…
26 Top Kitchen Design ideas and 10 Mistakes not to do
5. Kitchen Island Dimensions
Kitchen islands have become an integral part of modern kitchen design, providing extra workspace, storage, and a social gathering spot.
• Standard Height: The standard height for kitchen islands is 36 inches (91 cm), similar to countertops. However, if the island includes a breakfast bar, the bar side might be raised to 42 inches (107 cm) for comfortable seating.
• Depth and Width: Kitchen islands typically measure 24–48 inches (61–122 cm) in depth and should be at least 2 feet (61 cm) wide. For additional storage and seating, the depth can go up to 36–48 inches (91–122 cm), depending on available space.
• Overhang for Seating: For comfortable seating, leave a 12–18 inch (30–46 cm) overhang on the island. A well-planned Kitchen design can help visualize these measurements, ensuring a balanced island design.

6. Appliance Placement and Space Requirements
Appliances are essential elements in every kitchen, and they each come with specific measurement requirements.
• Refrigerator: Leave a 1-inch (2.5 cm) gap around the refrigerator for ventilation and proper air circulation. Allow at least 36 inches (91 cm) of space in front for easy access.
• Stovetop and Oven: Standard ovens need 30 inches (76 cm) of width. Plan for at least 12 inches (30 cm) of countertop space on each side of the stove for safety and prep work.
• Dishwasher: Position the dishwasher within 36 inches (91 cm) of the sink for convenient loading and unloading, with at least 21 inches (53 cm) of clearance in front to open the door fully.

A Kitchen design planner can offer appliance templates, helping you verify these measurements and place appliances for maximum accessibility and convenience.
7. Sink and Faucet
The sink is a high-use area that demands careful placement and sizing.
• Sink Width: Standard sink widths range from 22 to 33 inches (56–84 cm). Choose the width based on how much countertop space you need.
• Depth from Counter Edge: Leave 3–4 inches (8–10 cm) from the counter edge to the sink to prevent spills and ensure comfortable access.
• Clearance Space: Ensure at least 24 inches (61 cm) of open counter space on one side for food prep, with an additional 18 inches (46 cm) on the other side if possible.
Using a “3D kitchen planner” for these measurements can clarify the sink’s best position in the kitchen workflow, reducing congestion during cooking and washing tasks.
8. Lighting Height and Placement
Kitchen lighting must be functional and well-placed to illuminate work areas effectively. Using a “Kitchen planner NZ” can help visualize the layout with various lighting options.
• Pendant Lights Above Island: Pendant lights should hang 30–36 inches (76–91 cm) above the island countertop for balanced lighting without obstructing sightlines.
• Under-Cabinet Lighting: Position under-cabinet lights 18 inches (46 cm) above the countertop, focusing directly on the working surface for optimal illumination.
Proper lighting enhances the overall kitchen design, ensuring your renovated space is as practical as it is attractive.


Read more:
The Importance of Lighting in Achieving a Beautiful Kitchen Design
Top 16 Kitchen design ideas for a small kitchen renovation
9. Backsplash Height
Backsplashes are as functional as they are decorative, protecting walls from splashes while adding style.
• Standard Backsplash Height: Typically, backsplashes extend up to 18 inches (46 cm) from the countertop to the bottom of the upper cabinets, although full-wall backsplashes are increasingly popular.
Final Thoughts on Using a Kitchen Planner for NZ Kitchens Whether you’re using a “Kitchen planner NZ” or a “3D kitchen planner,” adhering to these standard measurements will streamline the renovation process, enhance kitchen functionality, and improve overall comfort. Remember that these dimensions are guidelines, and adjustments may be necessary based on individual needs and space constraints.
In the words of Sarah Richardson, renowned interior designer, “The kitchen is the heart of the home; its functionality depends on measurements, and every inch counts.”
What is the standard height for kitchen countertops?
The standard height for kitchen countertops is approximately 36 inches (91 cm) from the floor. This height is comfortable for most adults and aligns with base cabinets, creating a seamless and ergonomic workspace.
How much space should I leave between my kitchen island and surrounding counters?
It’s best to leave 42–48 inches (107–122 cm) between the kitchen island and surrounding countertops. This spacing ensures enough room for appliance doors to open and for people to move around comfortably, especially in a busy kitchen.
3. What is the ideal clearance space for walkways in a kitchen?
For a single-cook kitchen, the ideal walkway width is 42 inches (107 cm), while a two-cook kitchen should have a width of 48 inches (122 cm). This clearance space ensures smooth movement and reduces crowding in high-traffic areas.
4. How high should upper cabinets be installed above the countertop?
Upper cabinets should generally be installed about 18 inches (46 cm) above the countertop. This height allows easy access to cabinet contents while leaving plenty of workspace below.
How much overhang should a kitchen island have for seating?
For comfortable seating at a kitchen island, the overhang should be 12–18 inches (30–46 cm). This extra space allows guests to sit comfortably without their knees hitting the cabinet below, making it ideal for casual dining or social gatherings.
Further Resources for your house renovation
- Featured projects and Client stories to see specifications on some of the projects.
- Real client stories from Auckland