
About
Kawau Island House.
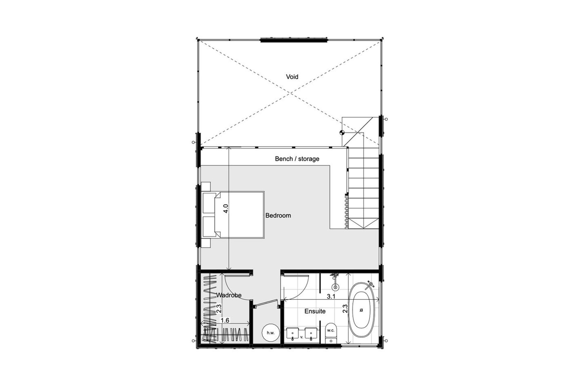
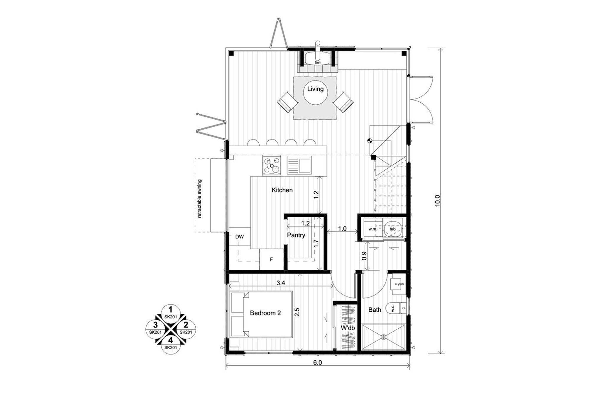
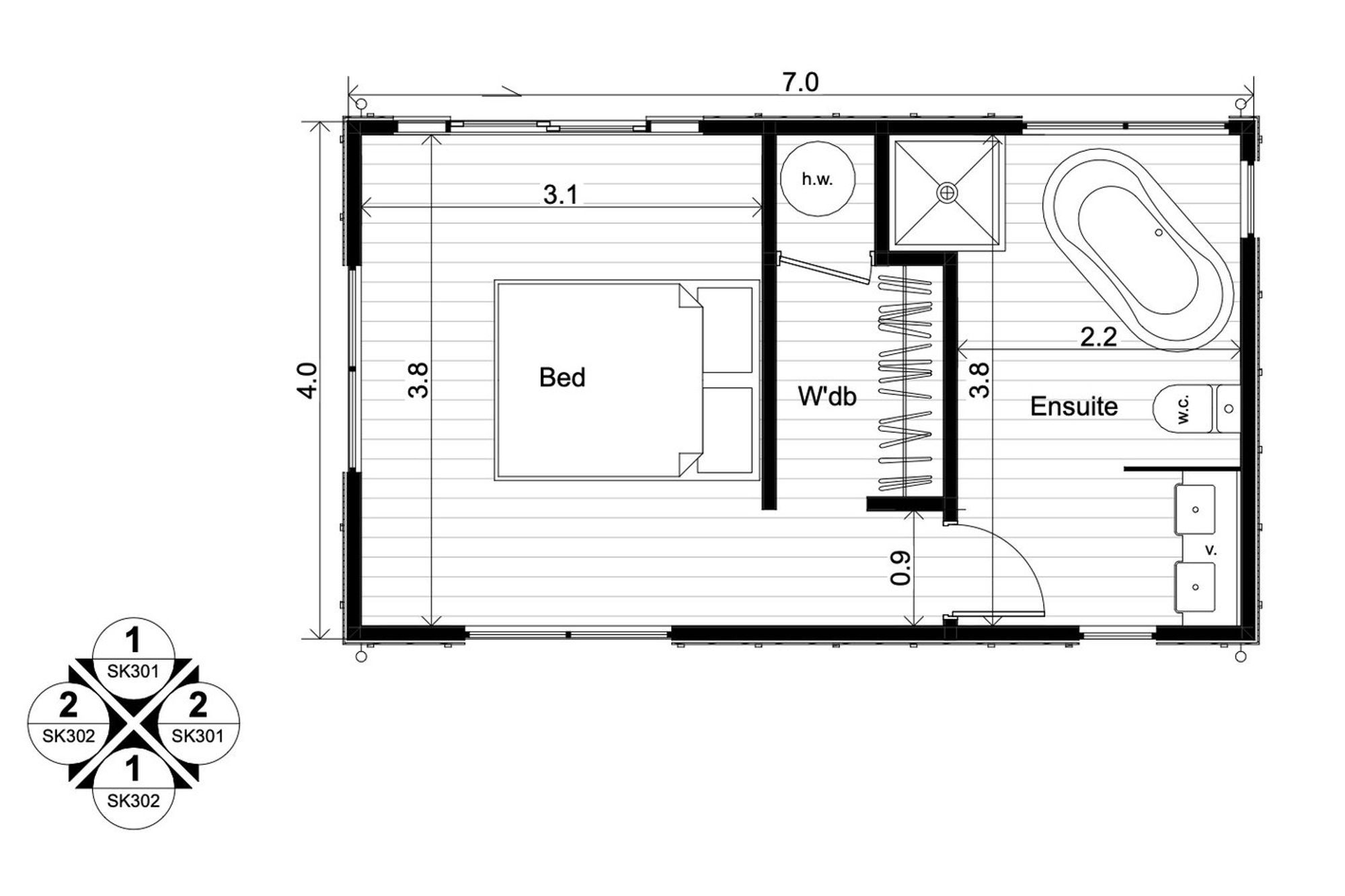
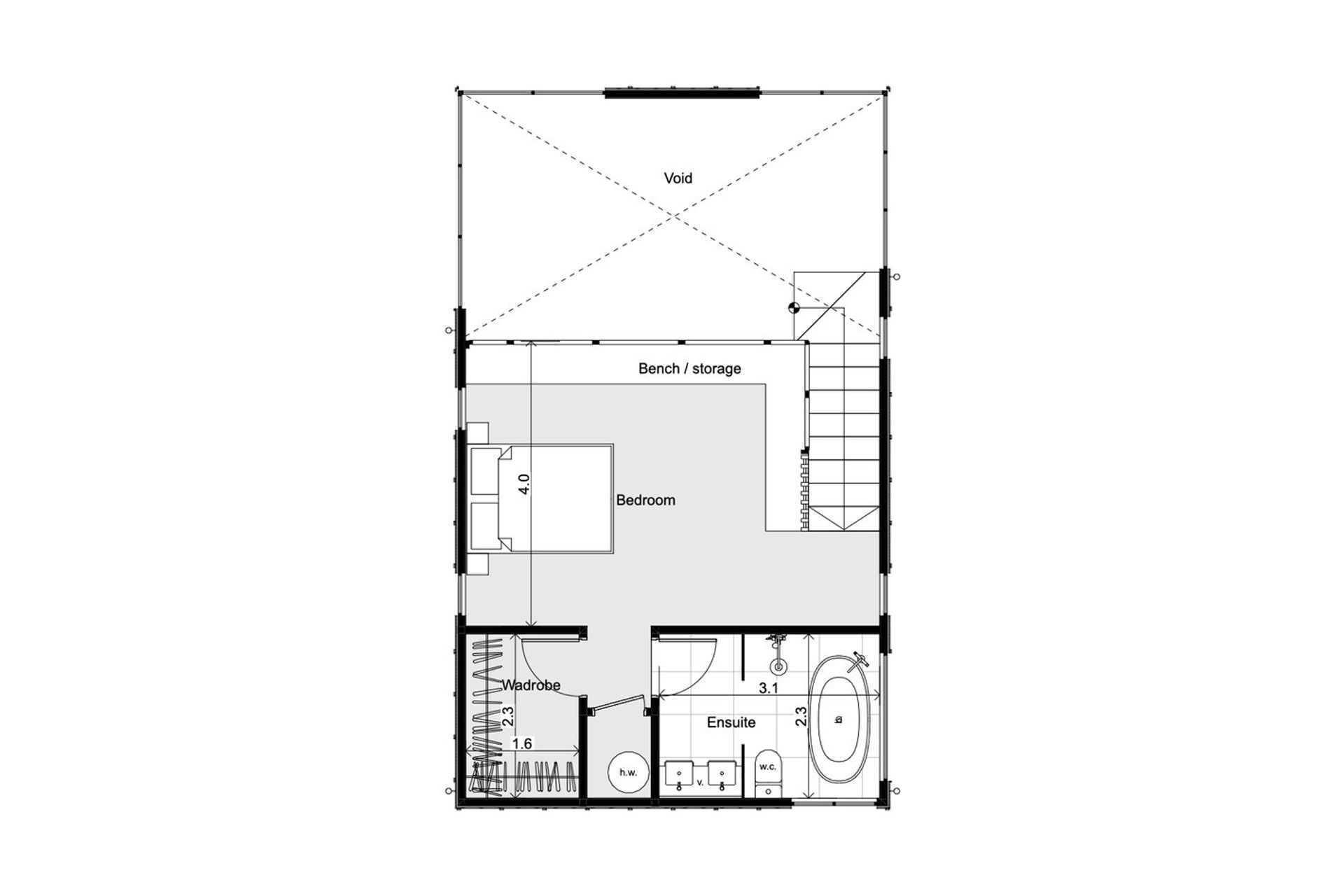
ArchiPro Project Summary - Contemporary private dwelling on Kawau Island featuring a two-storey main house and a guest cabin, connected by an expansive deck.
- Title:
- Kawau Island House
- Architectural Designer:
- Metropolitan Design
- Category:
- Residential/
- New Builds
- Building style:
- Contemporary
- Client:
- Rob Hanks
- Photographers:
- Metropolitan Design
Project Gallery







Views and Engagement
Products used
Professionals used

Metropolitan Design. Metropolitan Design is Jonnel Mamauag, a licensed freelance design consultant based in Auckland, focused on residential design for new and renovation builds.
I started my professional career in 2014 and have steadily increased my knowledge and expertise in various project scales, from single-family homes to significant 50+ multi-unit developments.
Please refer to our Services page for more information and an overview of my services.
Founded
2019
Established presence in the industry.
Projects Listed
6
A portfolio of work to explore.

Metropolitan Design.
Profile
Projects
Contact
Other People also viewed
Why ArchiPro?
No more endless searching -
Everything you need, all in one place.Real projects, real experts -
Work with vetted architects, designers, and suppliers.Designed for New Zealand -
Projects, products, and professionals that meet local standards.From inspiration to reality -
Find your style and connect with the experts behind it.Start your Project
Start you project with a free account to unlock features designed to help you simplify your building project.
Learn MoreBecome a Pro
Showcase your business on ArchiPro and join industry leading brands showcasing their products and expertise.
Learn More