About
Ara Kotinga, Brookby.
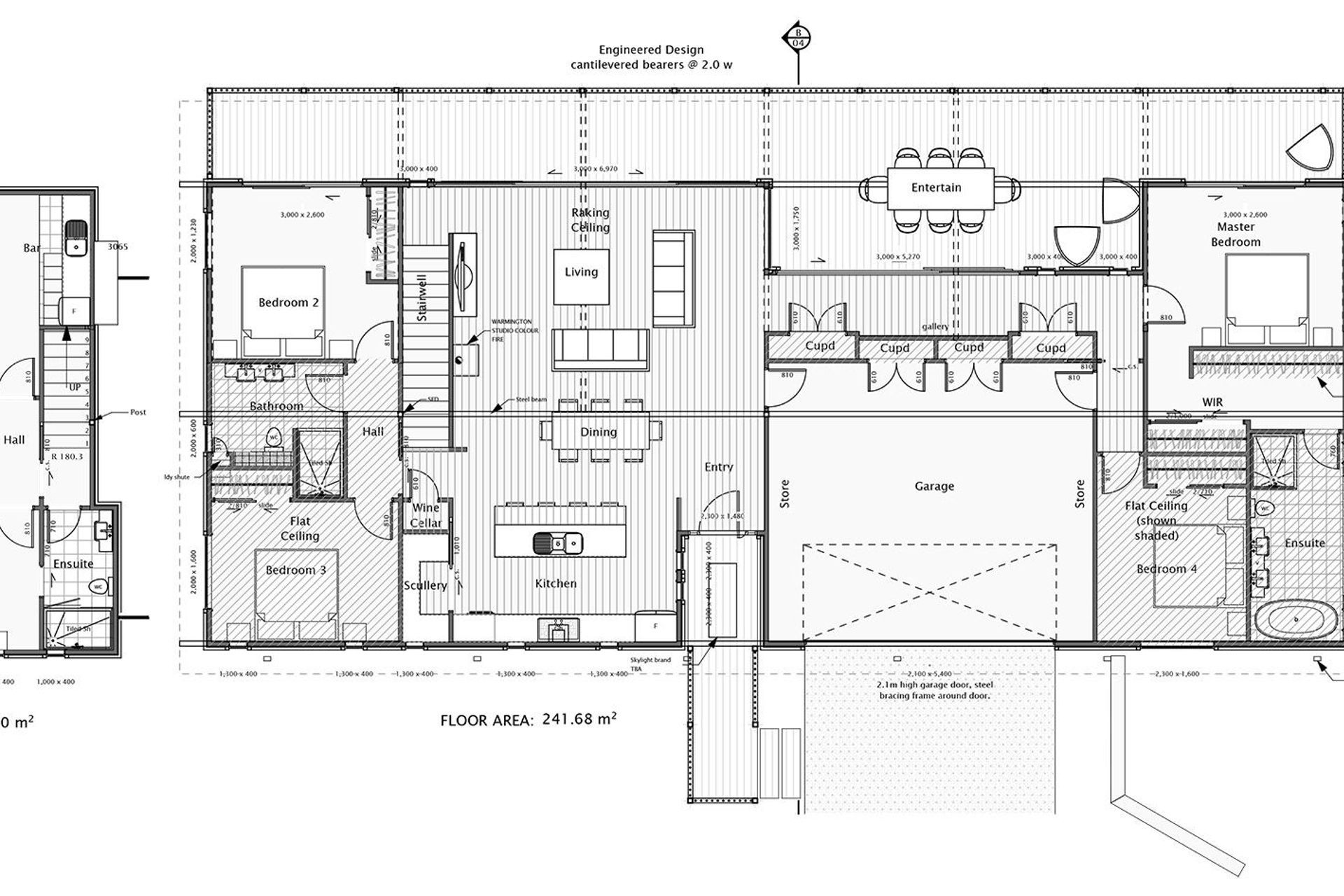
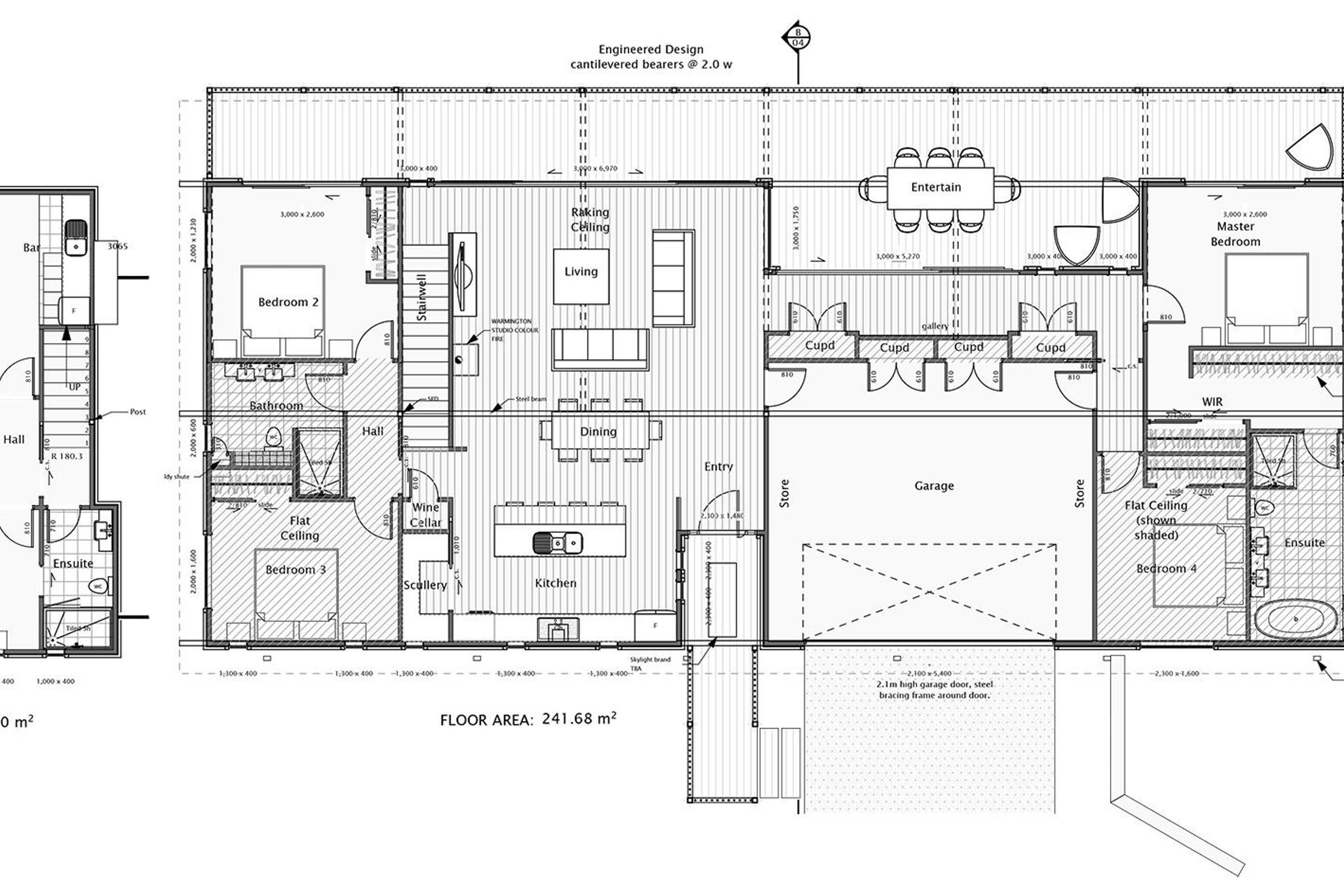
ArchiPro Project Summary - A stunning 5-bedroom home in Brookby, designed by Franklin Architectural Design and built by G Donaldson Builders, featuring unobstructed north-facing views, a granny flat, and a striking full-length deck on a steep bank.
- Title:
- Ara Kotinga, Brookby
- Builder:
- G Donaldson Builders
- Category:
- Residential/
- New Builds
Project Gallery
Views and Engagement
Professionals used

G Donaldson Builders. Our Background and ExperienceG Donaldson Builders Ltd was formed by Gary Donaldson who has nearly 20 years of building experience within the building industry both here in New Zealand and London.With this much experience, you can be sure your building project is in safe hands.As the director of G Donaldson Builders, Gary’s key role is client management, quality control, quoting and project management. Gary takes a hands-on approach across the business to ensure our clients' needs are being met, so it's not uncommon to find him on the tools helping our his team when needed. We take pride in our workmanship and excellent customer service with the majority of our work coming from word of mouth referrals from our clients. And this is something that we are very proud of.Our aim is to help our clients with their dreams of having the home they desireWe understand the importance of developing a personal relationship with each and every customer.Communication is important to us so regular check-in meetings are held to ensure the project is running smooth. This is very important to us and this helps us maintain the best possible relationship during the course of the project and beyond.We offer honest advice about the best building solution for you, always taking your personal specifications, budget, and property restrictions into account.We only work with quality subcontractors with whom we have formed long term relationships and managed across all projects. We also work closely with landscape designers, architects and draftsmen so we can assist your whole project from conception to completion.
Year Joined
2019
Established presence on ArchiPro.
Projects Listed
8
A portfolio of work to explore.

G Donaldson Builders.
Profile
Projects
Contact
Project Portfolio
Other People also viewed
Why ArchiPro?
No more endless searching -
Everything you need, all in one place.Real projects, real experts -
Work with vetted architects, designers, and suppliers.Designed for New Zealand -
Projects, products, and professionals that meet local standards.From inspiration to reality -
Find your style and connect with the experts behind it.Start your Project
Start you project with a free account to unlock features designed to help you simplify your building project.
Learn MoreBecome a Pro
Showcase your business on ArchiPro and join industry leading brands showcasing their products and expertise.
Learn More













































