This former coach-house located in Bendigo, Victoria offered Bijl Architecture the opportunity to explore heritage and adaptive design from a new perspective.
Carved off from the adjacent original gold-rush era mansion many decades ago, the Victorian-era building had been converted to a dwelling in the 1970s, and now sat on an unusual square allotment that created an uneasy relationship with the street. With the adapted dwelling purchased in a dark and decrepit state, our client – a busy music educator and conductor – briefed us to create a family home for contemporary living that would accommodate a grand piano in a salon-style environment for the teaching and enjoyment of music. The house needed to exude delight, charm, compactness and comfort.
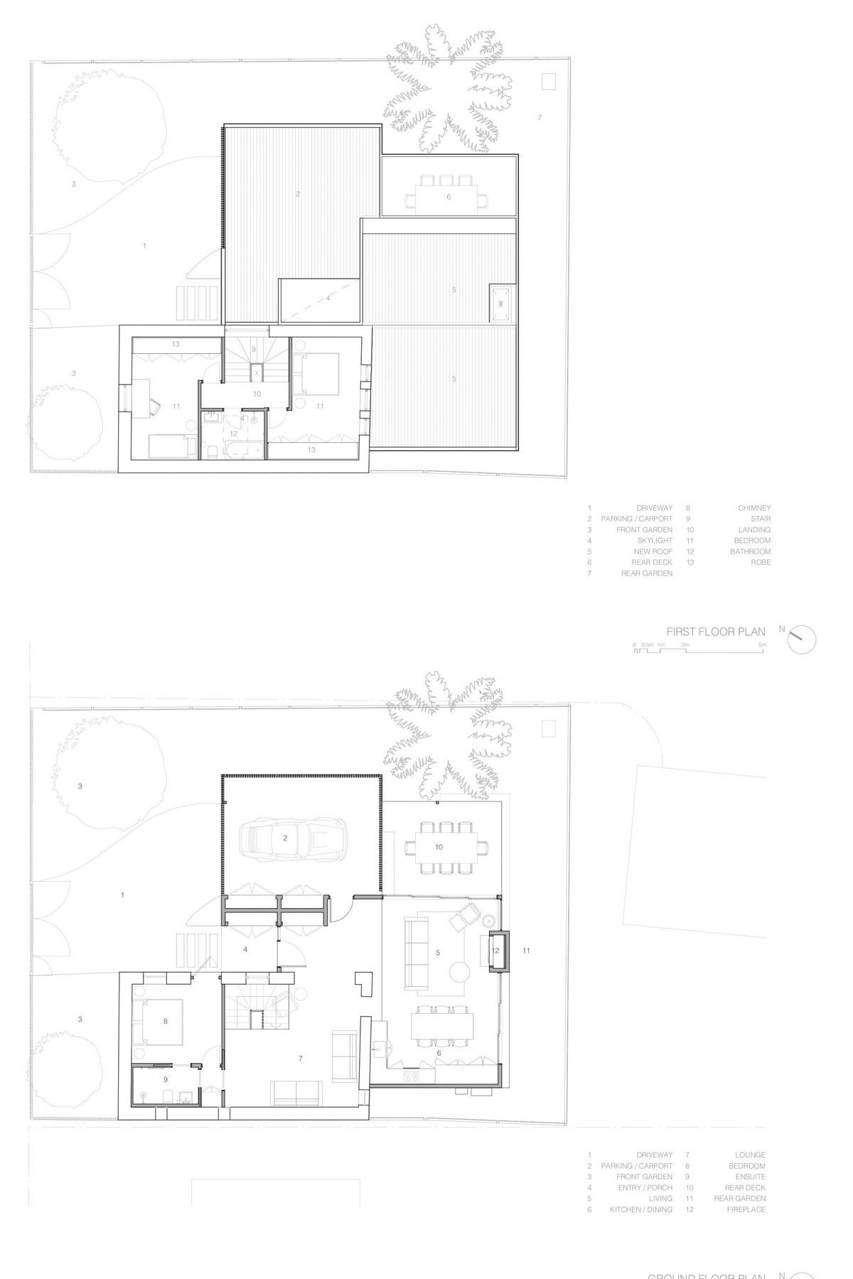
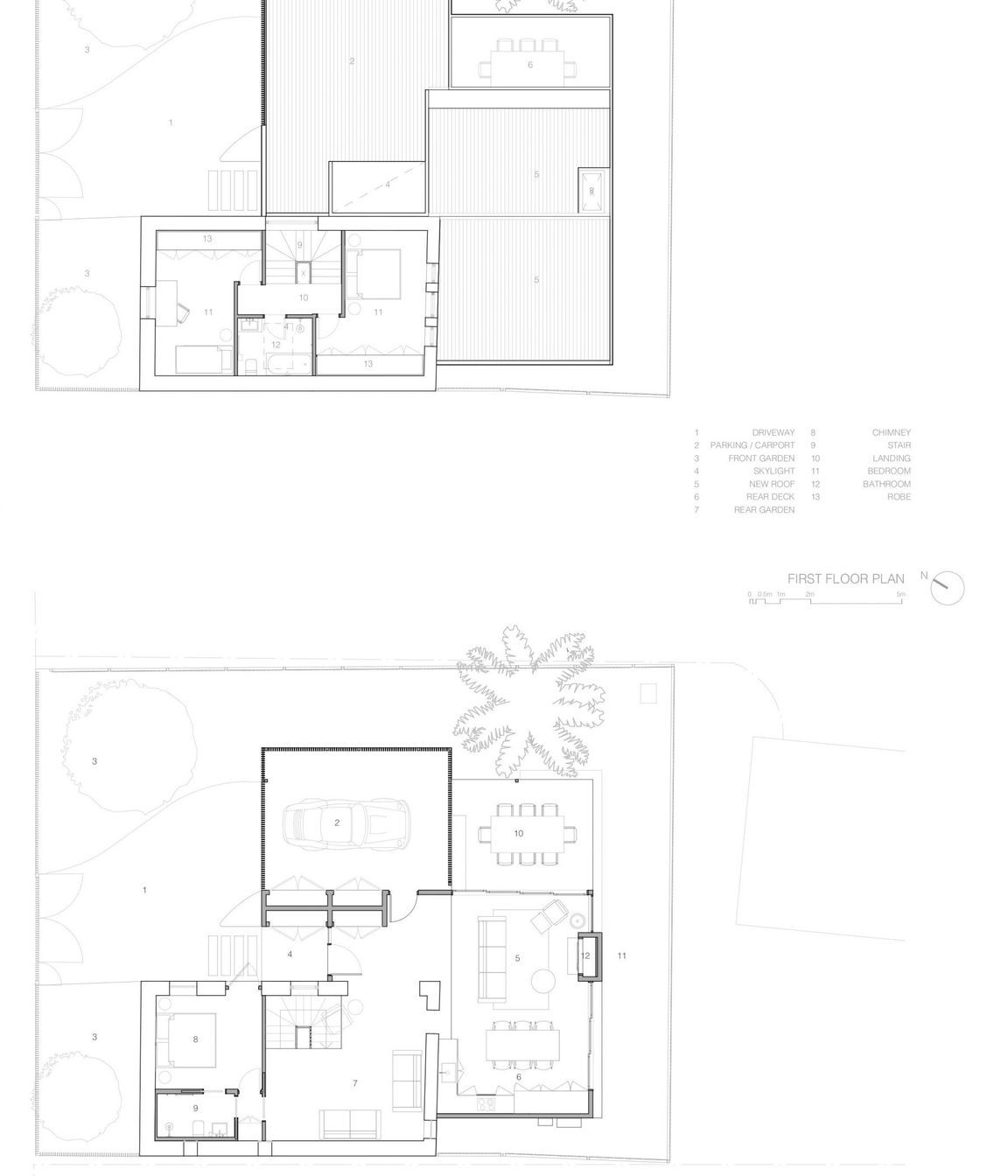
Given the site constraints, instead of adding a modern form solely to the rear of the structure, we ‘wrapped’ the coach-house volume to bring about a new focal point and balance to the site occupation. As a result, the addition transitions and flows into the sandstone volume, without a marked division between heritage and contemporary. Inspired by the work of minimalist artist Donald Judd, the scheme creates a recessive form that allows the renewed sandstone of the heritage building to be the hero. As a result, the original features and openings of the coach-house – the loft window, carriage and barn door openings – are retained and renewed.
These large openings create views from different vantage points extending through to the new open-plan kitchen and living environment. Light washes down the restored sandstone walls to accentuate texture, complemented by a muted charcoal palette that creates a unified aesthetic through both the interiors and exteriors. The new volume contains the entry to the dwelling, flanked internally and externally by discreet storage for everything from coats and boots through to music scores and instruments.
From the internal entry foyer, the circulation proceeds immediately to the open plan Kitchen/Living/Dining space that flows out to the rear deck and garden. The new entry is framed by a significant skylight element, demarcating the old carriage archway that leads to the piano room and through to the main bedroom suite and stair. Taking the stair leads you to the first floor, where the original ceilings and expressed framing has been retained, sitting over a simple floor plan of two bedrooms with a central bathroom. With the vertical slats feathering and softening the bold form of the addition, the carport acts as both shield and cave. Functioning as a multipurpose space – an undercover play area, a place for tinkering, a rehearsal platform, overflow space for entertaining – the carport is the perfect adjunct to the open deck, screening it from the street whilst furnishing flexibility and refuge.
The landscaped setting embraces the dwelling, completely renewed through the reintroduction of a low heritage style fence and cottage garden. The sustainability of the dwelling has been expressed and developed in a number of ways – the significant retention and repair of embodied materials has been made not only to maintain the heritage value of the original sandstone walls, but also to reuse the existing first floor structure, gable roof cladding, construction and internal linings first installed in the 1970s addition, and to adopt an economical building approach. Slab on ground construction is used in the new floors, assisting in the creation of thermal mass. While the home can be closed-up for Bendigo’s cold winters, full-height sliding doors and louvred windows establish natural cross ventilation, lighting and thermal massing throughout the year as needed. Windows, skylights and external doors are also all double glazed.
Overall, simple, robust materials and landscaping have been used in the exterior and interior finishes to provide low maintenance opportunities in the short and longer term. The opportunity to refashion and reinvigorate the spaces and materiality of this unusual building was not one that comes every day. We were privileged to realise this project with a trusting client, a supportive local Council, and a truly collaborative building experience. Working with an expert local builder and team who brought joy and skill to the project made an enormous difference for both our client and for us as the ‘out of towners’. This is a project we will never forget.
Awards
2019 TIDA Australia Homes – Architect Renovation - Runner Up
Photographer: Adam Gibson