Denbigh Spec House Kitchen Design banner
About

Denbigh Spec House.

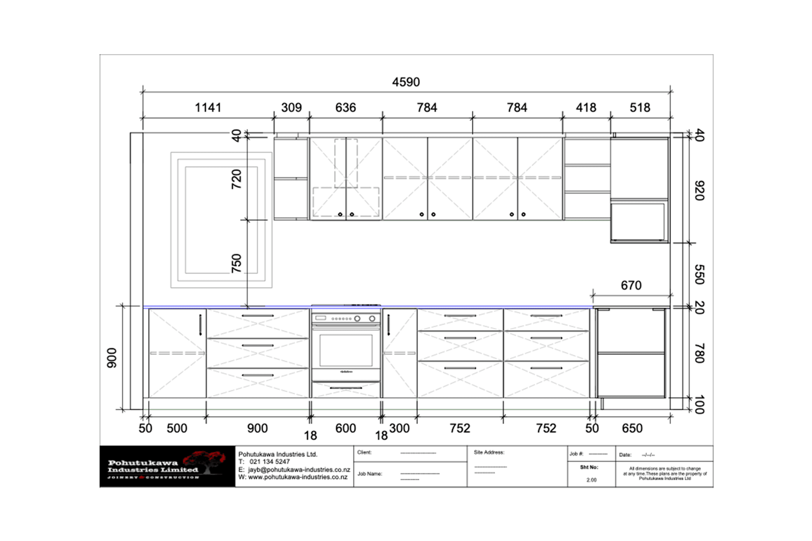
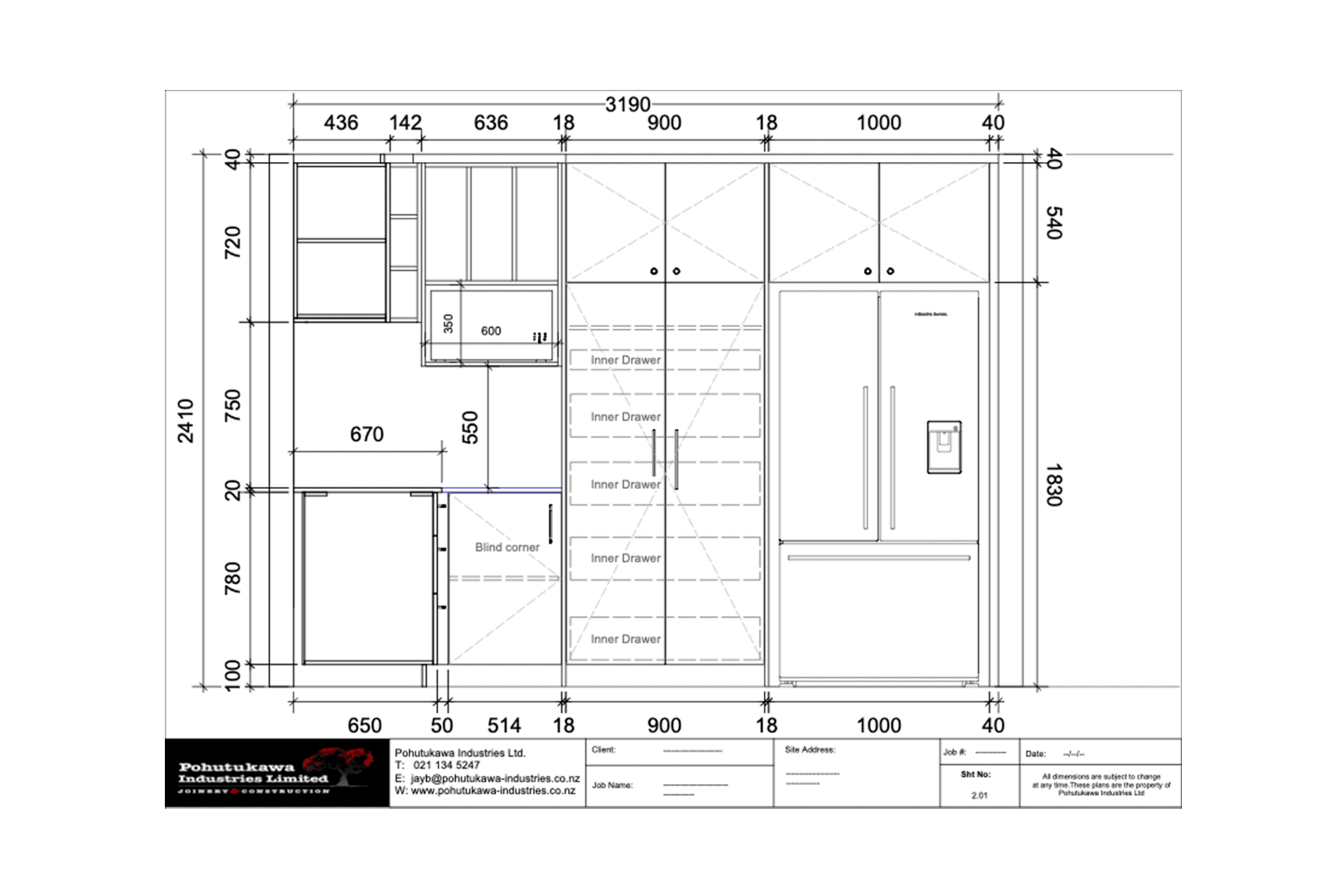
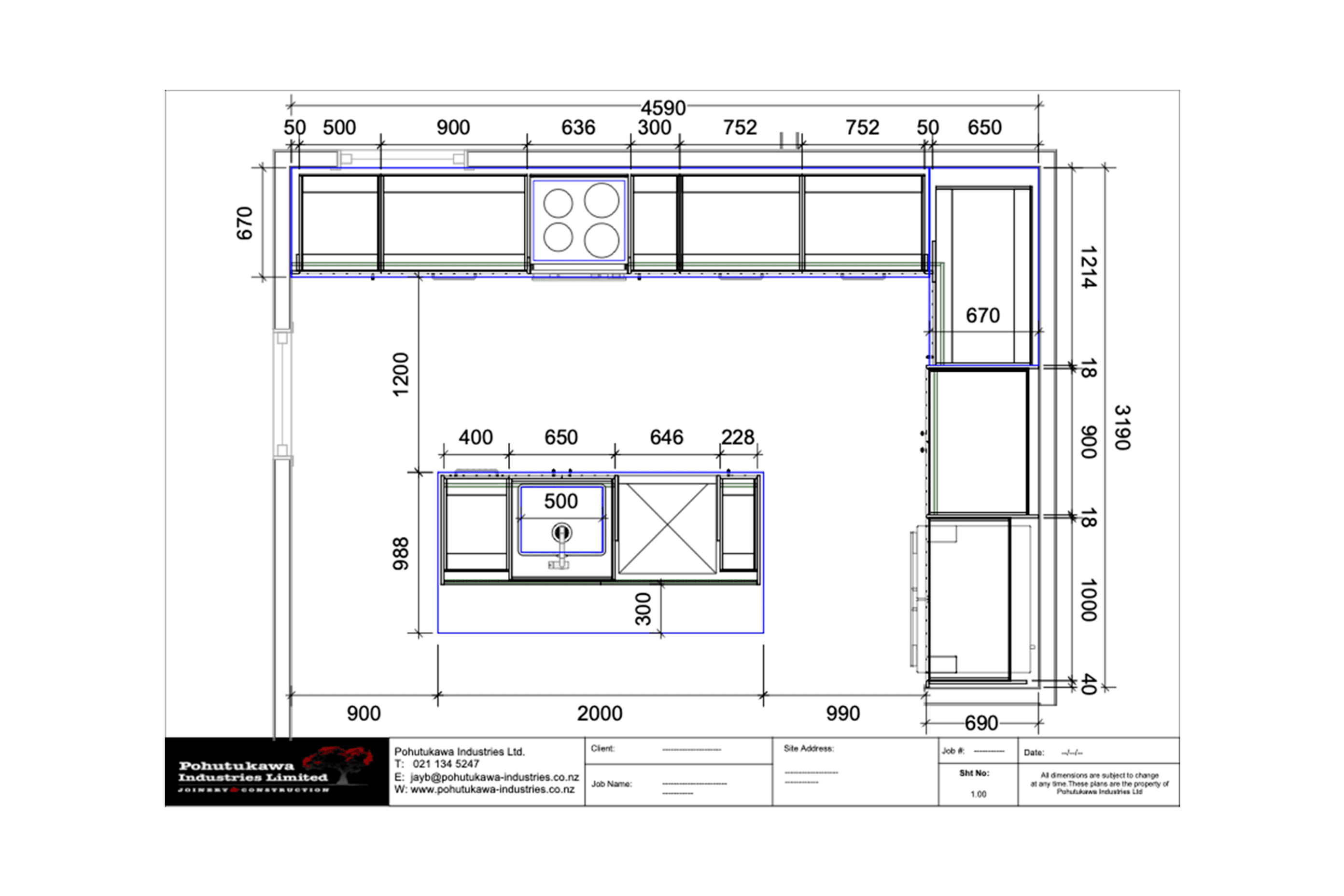
ArchiPro Project Summary - A meticulously crafted modern kitchen design for the Denbigh Spec House, blending style and practicality while adhering to budget constraints, ensuring an appealing and functional layout that captivates potential buyers.

Title:
Denbigh Spec House Kitchen Design
Carpenters & Cabinetmaker:
Pohutukawa Industries
Building style:
Modern
Photographers:
Pohutukawa Industries
Project Gallery
Views and Engagement
Pohutukawa Industries

Pohutukawa Industries

Carpenters & Cabinetmakers
Manawatu-Wanganui
pohutukawa-industries.co.nz
Pohutukawa Industries. Pohutukawa Industries Ltd is a small Manawatu based joinery and construction company.We offer a full design, manufacture and installation service for kitchens and other cabinetry.We have over 18 years of experience in the construction industry.In this time we have undertaken a wide range of joinery projects.  Giving us a huge range of knowledge in how to get the job done to the highest standard while keeping within budget.We aim to exceed all of our clients' expectations.Because we believe you are only as good as your last job.   And that referrals to future clients is the key to a successful future.       

Year Joined

2019
Established presence on ArchiPro.

Projects Listed

6
A portfolio of work to explore.
Pohutukawa Industries banner

Pohutukawa Industries.

Profile
Projects
Contact

Why ArchiPro?

No more endless searching -

Everything you need, all in one place.

Real projects, real experts -

Work with vetted architects, designers, and suppliers.

Designed for New Zealand -

Projects, products, and professionals that meet local standards.

From inspiration to reality -

Find your style and connect with the experts behind it.

Start your Project

Start you project with a free account to unlock features designed to help you simplify your building project.

Learn More

Become a Pro

Showcase your business on ArchiPro and join industry leading brands showcasing their products and expertise.

Learn More
Pohutukawa Industries
Pohutukawa Industries

Carpenters & Cabinetmakers