About
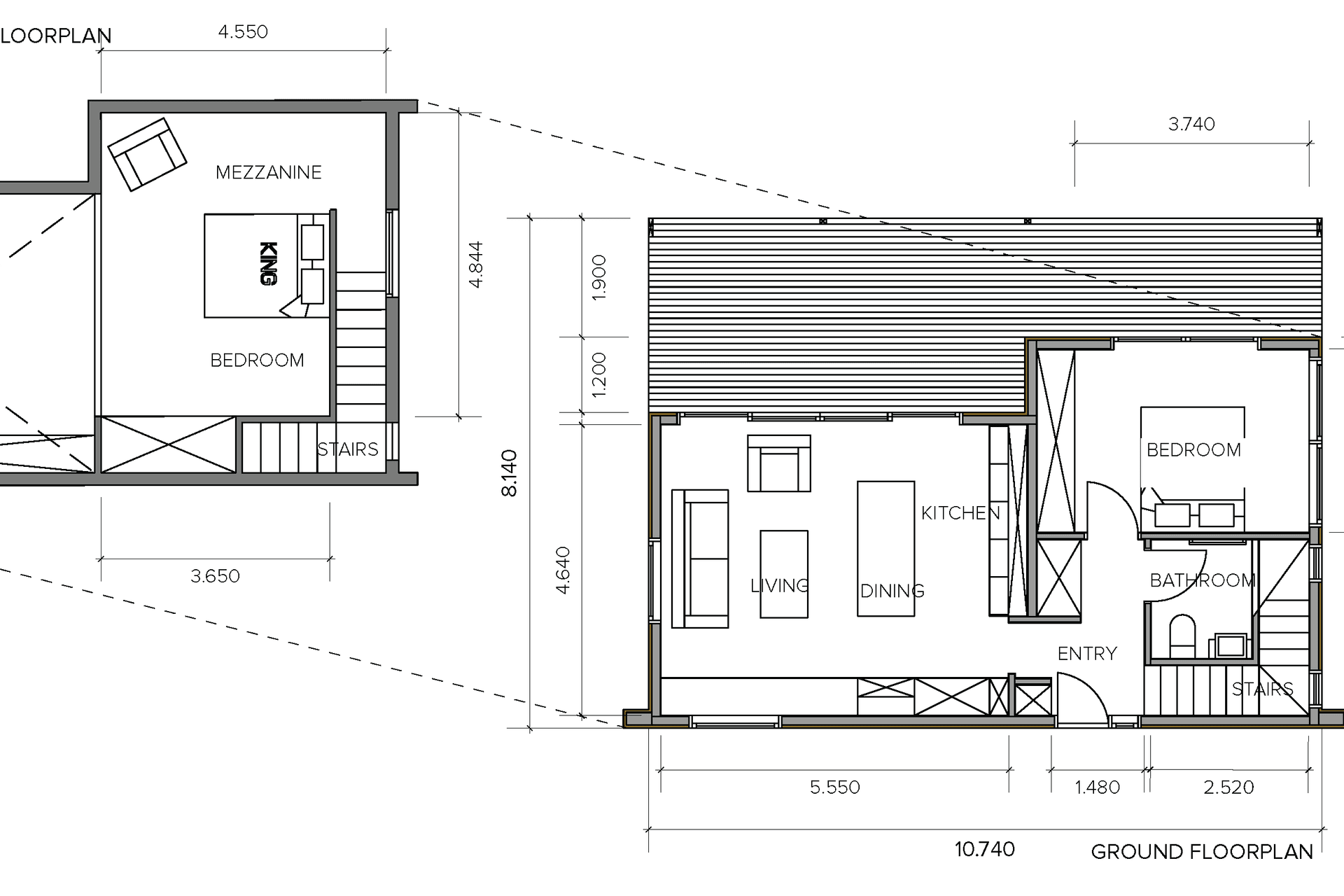
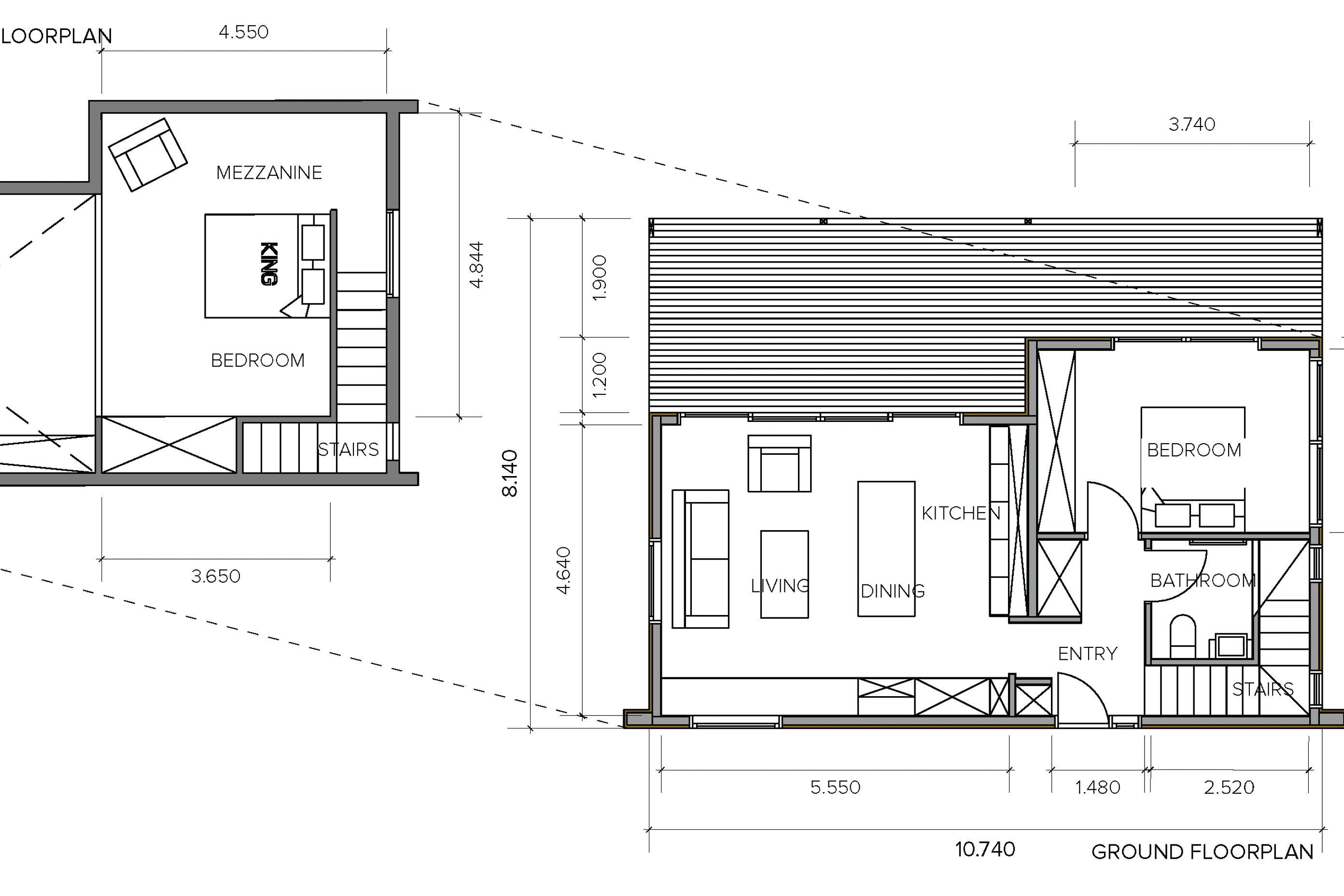
Louise 2 Bed Mezz Plan.
ArchiPro Project Summary - Efficient L-shaped mezzanine home featuring 2 bedrooms, 1 bathroom, and a fully developed 85sqm layout, designed for optimal performance and lower running costs with customizable options available.
- Title:
- Home Plan Range LOUISE 2 BD MEZZ
- Landscaper:
- Greenbridge Homes & Landscapes
- Photographers:
- Greenbridge Homes & Landscapes
Project Gallery

Plan Walkthrough












Views and Engagement
Professionals used

Greenbridge Homes & Landscapes. Greenbridge is a value-based design studio, specialising in the design of healthy homes and regenerative landscapes. Our multi-disciplinary team, design small-footprint healthy homes, edible and ecological gardens, lifestyle blocks, farm plans and community projects.
Based in Taranaki, Greenbridge’s team of regenerative specialists, combine their professional skills, experience and expertise to work across Aotearoa, in a way that reflects the individual needs and vision of each client they work with. Connecting people to a positive, more sustainable future.
https://www.greenbridge.co.nz/
Founded
2012
Established presence in the industry.
Projects Listed
11
A portfolio of work to explore.

Greenbridge Homes & Landscapes.
Profile
Projects
Contact
Project Portfolio
Other People also viewed
Why ArchiPro?
No more endless searching -
Everything you need, all in one place.Real projects, real experts -
Work with vetted architects, designers, and suppliers.Designed for New Zealand -
Projects, products, and professionals that meet local standards.From inspiration to reality -
Find your style and connect with the experts behind it.Start your Project
Start you project with a free account to unlock features designed to help you simplify your building project.
Learn MoreBecome a Pro
Showcase your business on ArchiPro and join industry leading brands showcasing their products and expertise.
Learn More

















