About
Leaning Rock, Alexandra.
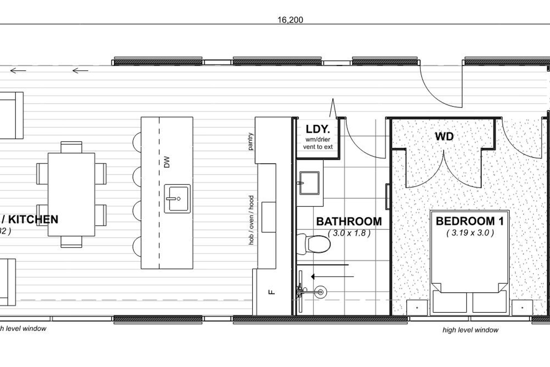
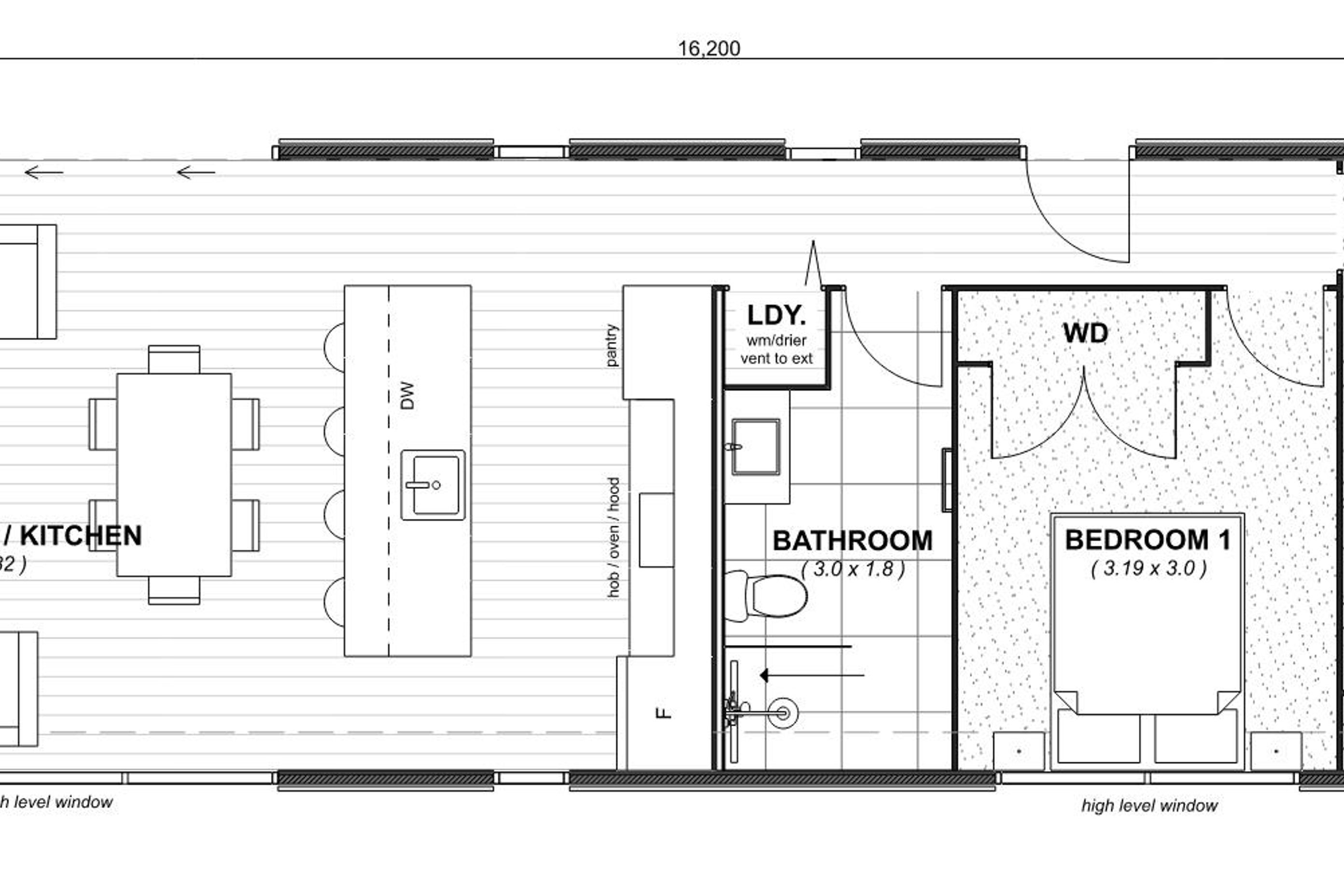
ArchiPro Project Summary - Simple rural batch designed as a family home, blending functionality with the serene beauty of its surroundings in Alexandra.
- Title:
- Leaning Rock, Alexandra
- Builder:
- Modbox
- Category:
- Residential/
- New Builds
Project Gallery


Views and Engagement
Professionals used

Modbox. Modbox is at the razor's edge of innovative home building and is a household name in Central Otago with 10 years in operation.
Our projects and our management systems are leading the way for Kiwis to live the lifestyle they want, in a home that can handle everything the harsh Southern environment throws at it - mountain winds, deep snow, harsh frost, blistering sun.
For build efficiency, our modular homes are easier to design and build than traditional systems and can accelerate the time to completion.
For more ambitious projects or tricky sites, we can build in a hybrid way or using traditional construction techniques - you still get the MODBOX systems and processes that make the building process transparent, efficient and smooth, without the wastage of most traditional buildings.
From flat to steep, lake-front to alpine, MODBOX knows how to build for Queenstown.
Year Joined
2023
Established presence on ArchiPro.
Projects Listed
27
A portfolio of work to explore.

Modbox.
Profile
Projects
Contact
Other People also viewed
Why ArchiPro?
No more endless searching -
Everything you need, all in one place.Real projects, real experts -
Work with vetted architects, designers, and suppliers.Designed for New Zealand -
Projects, products, and professionals that meet local standards.From inspiration to reality -
Find your style and connect with the experts behind it.Start your Project
Start you project with a free account to unlock features designed to help you simplify your building project.
Learn MoreBecome a Pro
Showcase your business on ArchiPro and join industry leading brands showcasing their products and expertise.
Learn More



















