About
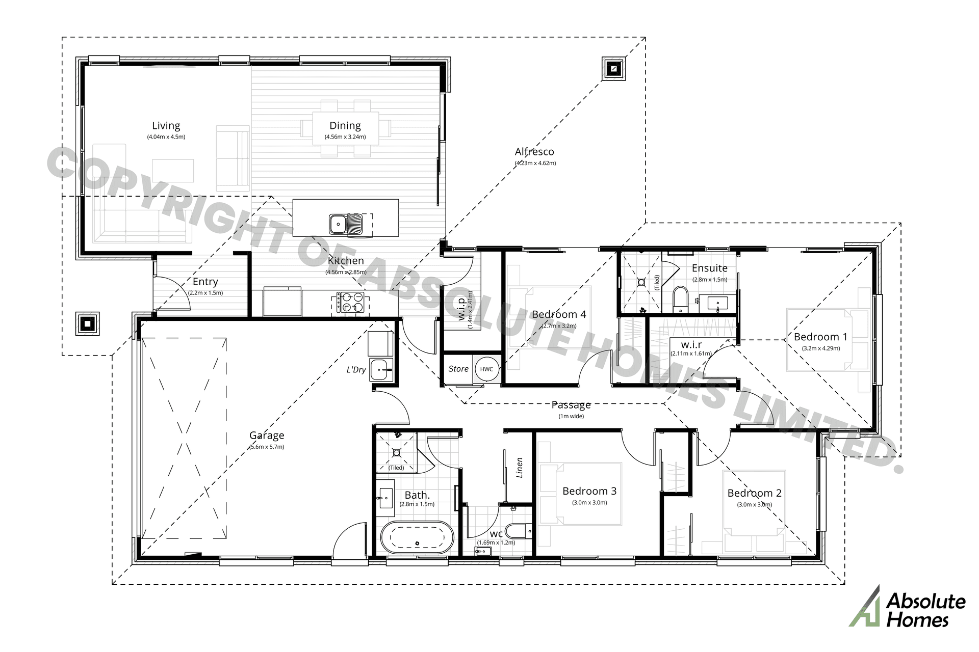
Orion 4 Bed Floor Plan.
4-bed, 2-bath, 2-car garage, 176sqm home
- Title:
- Orion Plan - Absolute Homes - 4-bed Floor Plan
- Design & Build:
- Absolute Homes
- Category:
- Residential/
- New Builds
- Photographers:
- Absolute Homes
Project Gallery

Views and Engagement

Absolute Homes. Absolute Homes: A distinguished Christchurch-based building company that specialises in crafting exquisite new homes throughout the Canterbury region. Our expert team caters to a diverse clientele including first home buyers, forever home seekers, and astute property investors. We pride ourselves on delivering high-quality homes without the complexities often associated with larger corporate entities.
At Absolute Homes, we place utmost emphasis on establishing enduring relationships with our valued clients. We believe that open and consistent communication is paramount in ensuring the success of every project we undertake. Our proficient team of project managers and contractors, coupled with our dedicated team of qualified builders and adept office staff, work to ensure seamless operations. With a robust network spanning throughout Canterbury, we maintain strong ties with our contractors and suppliers, fostering an environment of collaboration and excellence.
Year Joined
2024
Established presence on ArchiPro.
Projects Listed
41
A portfolio of work to explore.

Absolute Homes.
Profile
Projects
Contact
Project Portfolio
Other People also viewed
Why ArchiPro?
No more endless searching -
Everything you need, all in one place.Real projects, real experts -
Work with vetted architects, designers, and suppliers.Designed for New Zealand -
Projects, products, and professionals that meet local standards.From inspiration to reality -
Find your style and connect with the experts behind it.Start your Project
Start you project with a free account to unlock features designed to help you simplify your building project.
Learn MoreBecome a Pro
Showcase your business on ArchiPro and join industry leading brands showcasing their products and expertise.
Learn More

















