About
Riverhaven Minor Dwelling.
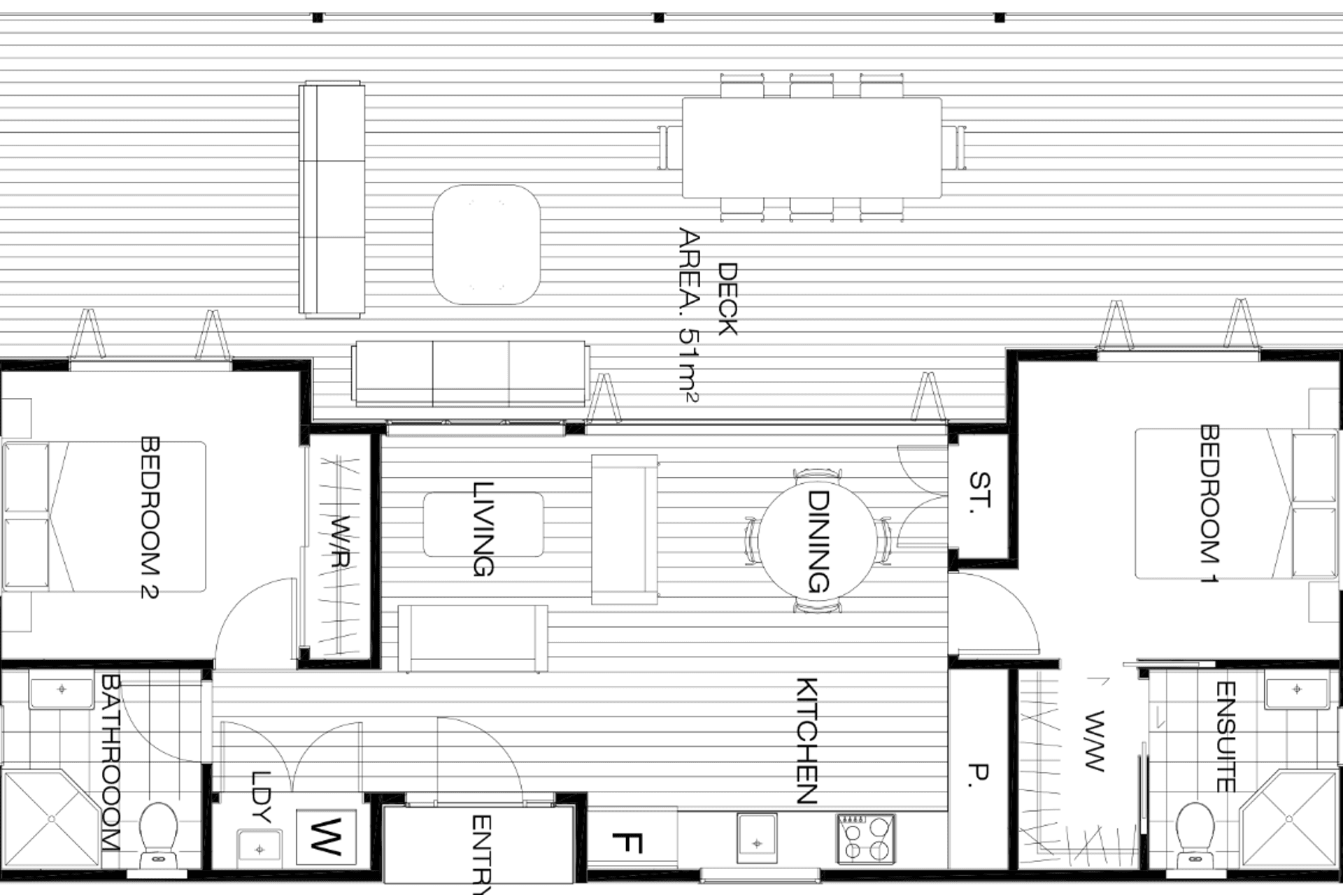
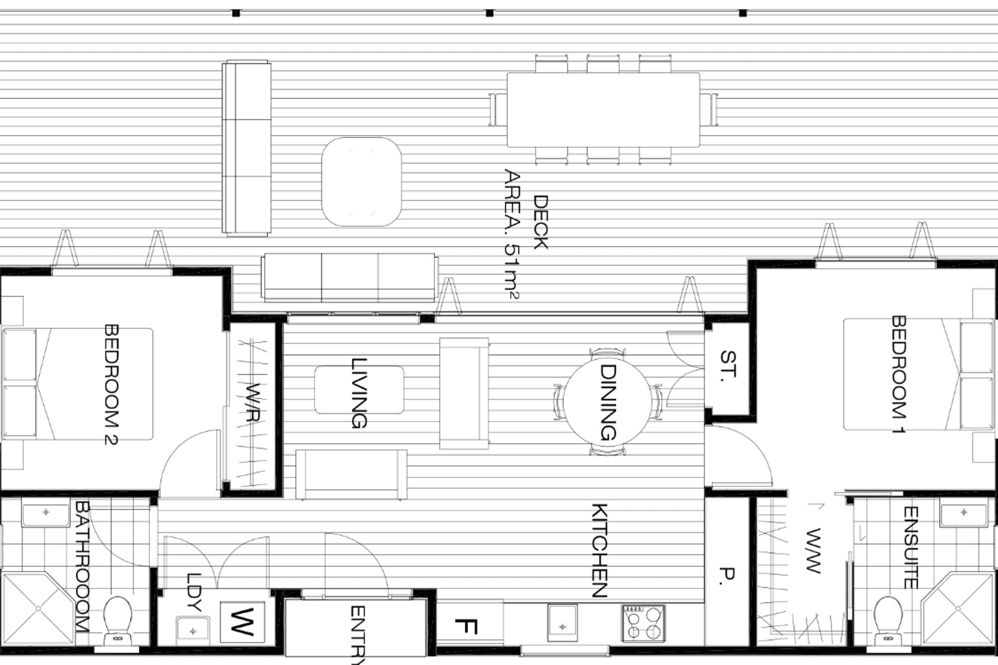
ArchiPro Project Summary - The Riverhaven Minor Dwelling features a beautifully crafted porch and spacious deck, blending functionality with aesthetic appeal.
- Title:
- Riverhaven Minor Dwelling
- Builder:
- Goldline Construction
- Category:
- Residential/
- New Builds
Project Gallery



Views and Engagement
Professionals used

Goldline Construction. Minor Dwelling and Granny Flat Specialists in Auckland
Are you looking for a Granny Flat or Minor Dwelling with a bit of difference from the regular cookie cutter finish; maybe something with that special X-factor feel?
What if you could contact someone who could run the whole project from start to finish and knows the value of timely communication, sticking to a budget and delivering a quality job on time?
With over 30 years’ in the construction industry Daniel runs a construction company with a great team of tradespeople where he manages the whole building process delivering a top-quality job for a reasonable price.
We have Health & Safety systems in place, Public Liability insurance and are Registered Master Builders which means that you can sit back and relax as we take the stress out of the whole process.
Year Joined
2019
Established presence on ArchiPro.
Projects Listed
9
A portfolio of work to explore.

Goldline Construction.
Profile
Projects
Contact
Project Portfolio
Other People also viewed
Why ArchiPro?
No more endless searching -
Everything you need, all in one place.Real projects, real experts -
Work with vetted architects, designers, and suppliers.Designed for New Zealand -
Projects, products, and professionals that meet local standards.From inspiration to reality -
Find your style and connect with the experts behind it.Start your Project
Start you project with a free account to unlock features designed to help you simplify your building project.
Learn MoreBecome a Pro
Showcase your business on ArchiPro and join industry leading brands showcasing their products and expertise.
Learn More















