About
Western Springs Home.
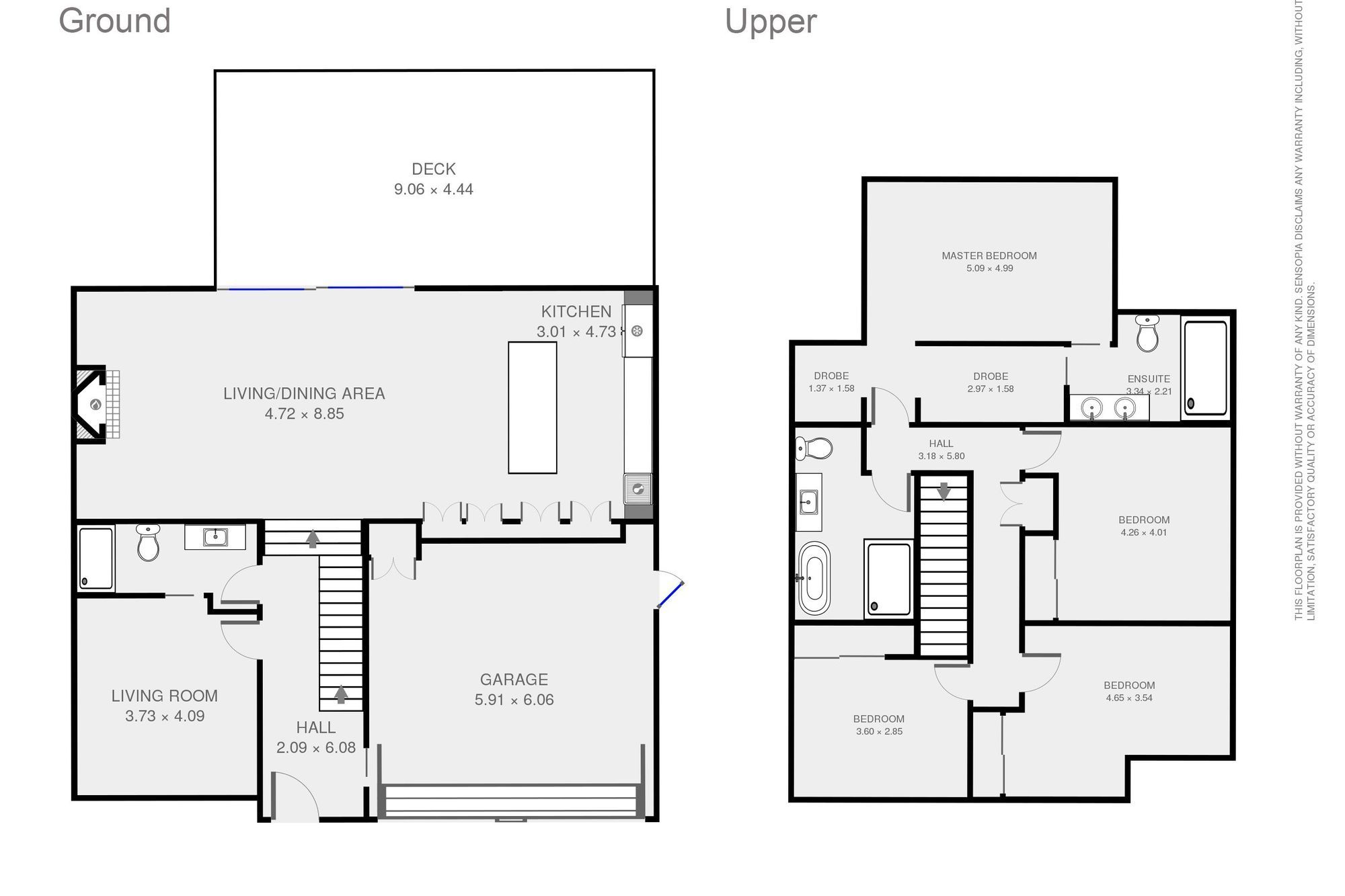
ArchiPro Project Summary - Contemporary architecturally designed new build in Western Springs, showcasing innovative design and modern living.
- Title:
- Western Springs Home
- Construction:
- BBM Construction
- Category:
- Residential
Project Gallery
Views and Engagement
Products used
Professionals used

BBM Construction. Auckland’s Fixed-Price Villa Renovation Experts. Enhancing Futures — One Family at a Time.
Renovate. Restore. Build new.
BBM Construction has cemented a trusted reputation as a creator and master builder of stylish and innovative design and high-quality construction. A small, owner-operated company, we've earned a reputation for exceeding our customer's expectations across a variety of building services.
We have a proven track record in renovating and restoring classic Auckland villas and bungalows, including specialist expertise with heritage houses. We enjoy the intricate details and unique challenge that comes with this type of building. And we also have a passion for design-led new build projects.
Quality beyond the ordinary.
Over the last decade we’ve defined a set of proven processes and quality checks at every stage of your build. These ensure your project will be delivered to BBM Construction’s exceptional quality standards. We are so confident in our work, we offer a 24-month general defects warranty instead of the 12-month legal requirement. Which means you’ll get the top-quality job you expect and have peace of mind after the job is done
Founded
2011
Established presence in the industry.
Projects Listed
3
A portfolio of work to explore.

BBM Construction.
Profile
Projects
Contact
Project Portfolio
Other People also viewed
Why ArchiPro?
No more endless searching -
Everything you need, all in one place.Real projects, real experts -
Work with vetted architects, designers, and suppliers.Designed for New Zealand -
Projects, products, and professionals that meet local standards.From inspiration to reality -
Find your style and connect with the experts behind it.Start your Project
Start you project with a free account to unlock features designed to help you simplify your building project.
Learn MoreBecome a Pro
Showcase your business on ArchiPro and join industry leading brands showcasing their products and expertise.
Learn More







































