Tailored warmth: the benefits of bespoke hydronic heating design
Written by
18 March 2025
•
7 min read

Hydronic heating systems have been a mainstay in Europe for decades but are less well-known in New Zealand, absent in the traditional bungalows and villas many of us grew up in. However, an increasing number of people embarking on building renovation projects are now considering hydronic heating as a viable solution to meet their heating needs.
With over 25 years of experience installing hydronic heating solutions in New Zealand, Sean Stephens, founder of Warm NZ, has been there since the beginning and shares his in-depth understanding of hydronic heating, its benefits and where it’s going.
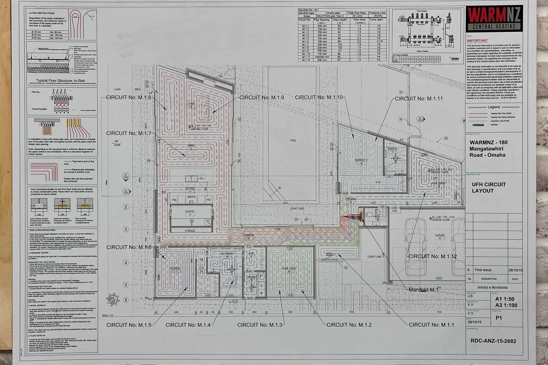
Fundamentals of hydronic heating
For those who are new to hydronic heating, it is essentially a heating solution that involves circulating heated water through pipes, typically under floors, providing consistent warmth throughout the home. However, as Sean explains, the consistent warmth is just the starting point of the benefits you can reap.
“One of the main advantages is that you don't get forced air like you do from a heat pump, so you haven't got dust rolling around the house. It's a passive form of heating, not a forced form of heating so you don’t feel the heat being blown through the air. Most people don't even know you've got the heating on. They don't realise there's a whole central heating system in the floor doing the job. They just enter the house and it’s warm.”
It's a passive form of heating, not a forced form of heating so you don’t feel the heat being blown through the air.
The passive presence of hydronic heating isn’t limited to the comfort it brings either, but extends into styling and the sound environment too.
“Another thing a lot of people like about hydronic heating is that you can't see it. It's under the carpet, under the concrete — you just don't know it's there and it doesn't affect furniture or art placement, design or colour schemes etc. You also don’t get the whir of fans — it’s completely silent which falls back into its passiveness.”

Misconceptions of the past
While these traits are appealing, there are misconceptions about hydronic heating that have deterred people from investing. Sean suggests these are mostly historical now, and largely the result of poor design and installation, substandard products and dated technology.
“A lot of people think it's going to cost a fortune to run from people in the past who put electric underfloor heating in, turned it on and had thousands in power bills after that. We use things like air-to-water heat pumps and gas boilers, which are a lot more efficient. If your hydronic heating system is designed, insulated and installed properly, it's a very cost-effective way of heating your house.”
Some misconceptions also relate to its applicability for different finishes, particularly timber flooring, a popular choice in many New Zealand homes, past and present.
“A lot of people don't think they can put timber floors over it because of the wood shrinking and cupping. That does happen but that is down to the fact that they haven't been designed and set properly. We've often gone in to remedy these situations and found the installer had 70°C water running through them. Our systems are designed to have 35 - 55°C water going into them and for timber floors, we’d set it to around 40°C.”
A lot of people don't think they can put timber floors over it... but that is down to the fact that they haven't been designed and set properly.
Benefits of bespoke design and customisation
Having a bespoke, customised solution can take a hydronic heating system to the next level of efficiency, comfort and convenience. This has been helped through technological advances but is also down to assured design, expertise and a process that ensures a client gets a solution, tailored to their wants and needs.
Stephen’s team at Warm NZ works very closely with design experts at REHAU, the German suppliers of the pipes and manifolds used in the systems, to ensure everything is precisely designed and optimised for the application at hand.
“What we normally do is we'll get a call with the client and ask what they want to achieve. We'll load that information into our portal and send it off to the experts at REHAU and get a draft design that we can discuss with the client. If they're happy with that, we move it to the detail design, the next step which has all the calculations, and the floor layouts. That’s probably a two-week process from start to finish and then the client will have what they need for their building permit.”
That’s probably a two-week process from start to finish and then the client will have what they need for their building permit.
This detailed design process is key to making hydronic heating even more comfortable and cost-effective than it naturally is. Clients are also well-advised on how to use and manage their systems, aided by the market-leading products from Heatmiser that utilise smart technology with apps that give you direct access and control from your phone.
“It's so easy, but it's got so much information. You can look at each room and it’ll show you a heat curve with what it's done during the day and where your energy costs are. You can then dial those room temperatures down if it’s too warm to save energy costs. You can also turn your heating on and off on your phone instantly wherever you are in the world. It's come on leaps and bounds and become so cost-effective.”

A partnership with Hunt Heating that adds even more value
On top of their knowledge (which includes the experts at REHAU), Warm NZ is partnering with Hunt Heating, Australasia's largest heating supplier, in an arrangement that will add even more expertise, product choices and project possibilities. Sean explains it's a partnership that stems from a 10-year working relationship, enabling a seamless transition and immediate benefits for all involved.
“We started our relationship getting gas boilers through Hunt but they had such a wide range of products and design, service and technical knowledge that it naturally grew from that. We've always had that design expertise in the floor with REHAU and now we've got a design team in the plant room as well with Hunt Heating. They also own Hydro Heat which is the commercial division, offering solutions for commercial applications that our customers will be able to take advantage of.”
The significance of Hunt Heating’s industry experience cannot be overstated and is a quality that will permeate through all stages of future projects including the unexpected challenges that often arise.
“We can go to a job and we might come across a problem we've never had before. We'll ring the guys there and talk to them, bounce ideas around and we can find solutions a lot quicker. Again, it's pulling their expertise and sharing knowledge to give better outcomes that will improve systems, make them more energy efficient and benefit the end user.”
It's pulling their expertise and sharing knowledge to give better outcomes that will improve systems, make them more energy efficient and benefit the end user.
As mentioned already, this new partnership also promises to give more and greater access to new, exciting and innovative products that will transform heating solutions in ways that you might not ordinarily expect.
“They have an extensive range of brands and stock giving us a much broader offering to our customers. I think the option of being able to now attach on cooling with the Baxi Fan Coil Range, which can fit inside cupboards, is going to make a big difference. Instead of having to have forced hot air, you can have your underfloor heating in the winter, which is passive, and then you can have it chilling the room in summer where it just takes the edge off it.”