About
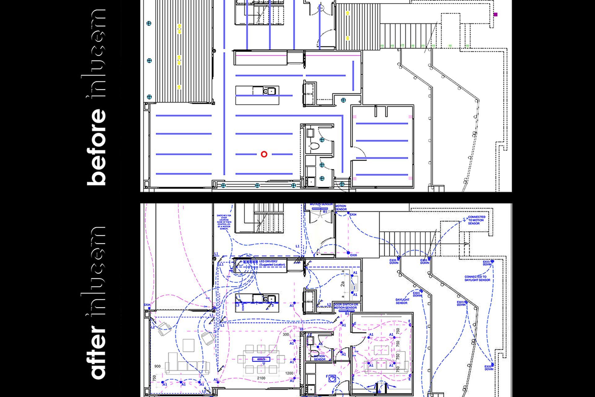
Before and After.
ArchiPro Project Summary - A transformative eco hotel landscape featuring innovative lighting design that enhances aesthetics and security.
- Title:
- Before and After
- Lighting Designer:
- Inlucem
- Category:
- Residential/
- Renovations and Extensions
Project Gallery









Views and Engagement
Professionals used

Inlucem. What does Inlucem offer you?
We provide you with a tailored lighting solution.
We help you to find the most suitable light fittings.
We ensure you receive a result you will be delighted with.
How?The first part of our journey starts with an obligation-free and friendly conversation over a coffee. We will talk about what you need and how Inlucem can help you to achieve the best result.
As a result of our conversation, we will clearly identify what your unique needs are and what your project requires.Upon deciding to go ahead we will arrange a second meeting and draw up a document illustrating creative lighting concepts and cost-effective solutions for your project.
We are devoted to defining the right light for your project and placing it in the right position.
We are committed to finding the light fitting for you, which performs as needed, suits your style and meets budget constraints, searching throughout both national and international markets.We deliver a complete set of architectural plans together with detailed lighting specifications, for you to easily understand our suggestions and also for the professionals involved in the installation to perfectly work.
Our excellent management of a large range of graphic resources enables us to clearly communicate ideas, deliver lighting calculations, express the lighting concepts and make easier the installation process for all professionals involved.We work with enthusiasm and true passion which make us excellent collaborators with all the professionals involved in the design and installation process.
We work engaged to the client’s satisfaction putting our knowledge and expertise to the complete service of the project’s best result.Last but not least, remember:
Success comes from how we combine together our talent, gained knowledge and expertise with your inspirational dreams and motivational expectations.Light matters, it is material.“I will love the light for it shows me the way, yet I will endure the darkness for it shows me the stars”. - Og Mandino
Year Joined
2024
Established presence on ArchiPro.
Projects Listed
10
A portfolio of work to explore.

Inlucem.
Profile
Projects
Contact
Project Portfolio
Other People also viewed
Why ArchiPro?
No more endless searching -
Everything you need, all in one place.Real projects, real experts -
Work with vetted architects, designers, and suppliers.Designed for New Zealand -
Projects, products, and professionals that meet local standards.From inspiration to reality -
Find your style and connect with the experts behind it.Start your Project
Start you project with a free account to unlock features designed to help you simplify your building project.
Learn MoreBecome a Pro
Showcase your business on ArchiPro and join industry leading brands showcasing their products and expertise.
Learn More

















