About
Hidden Island.
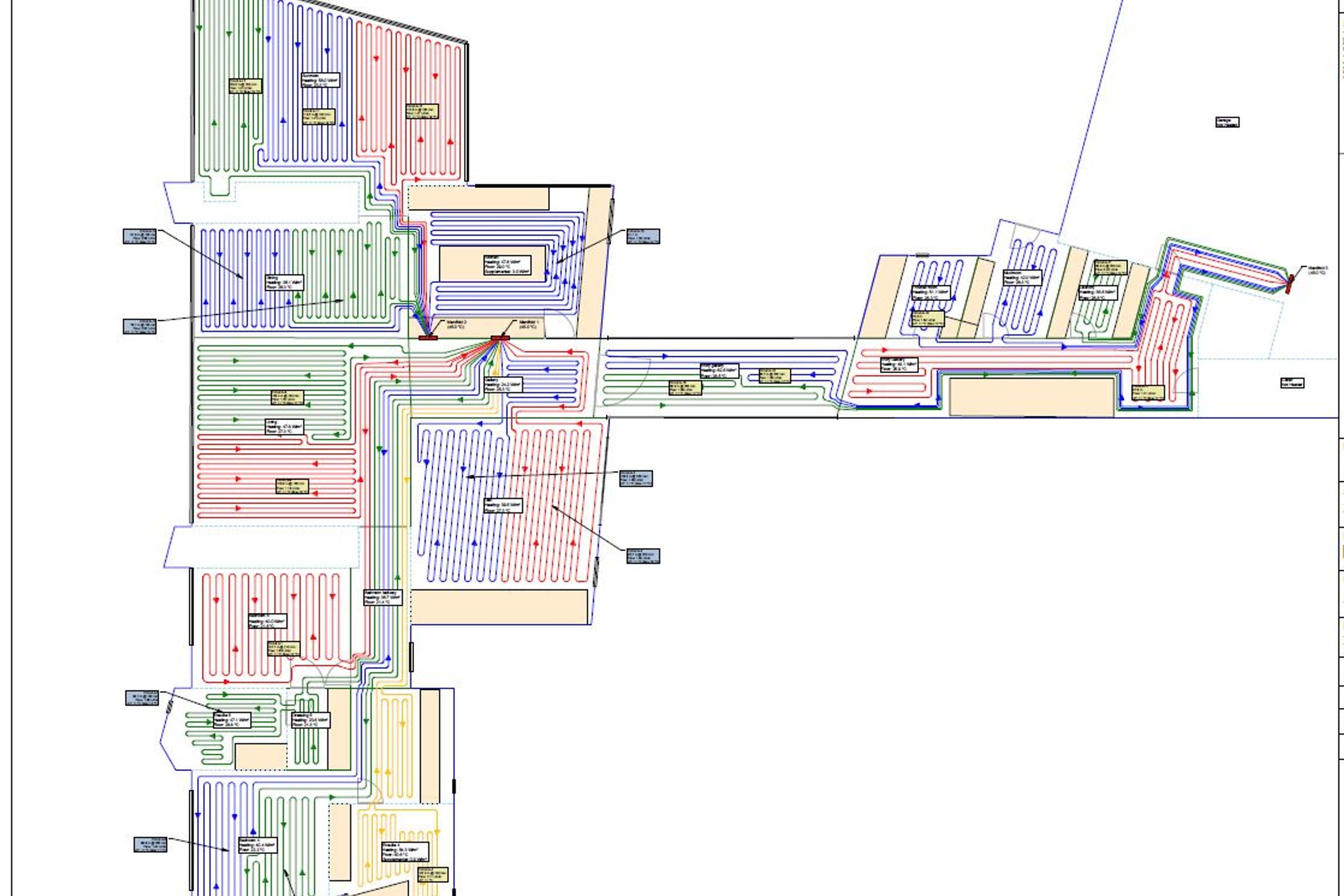
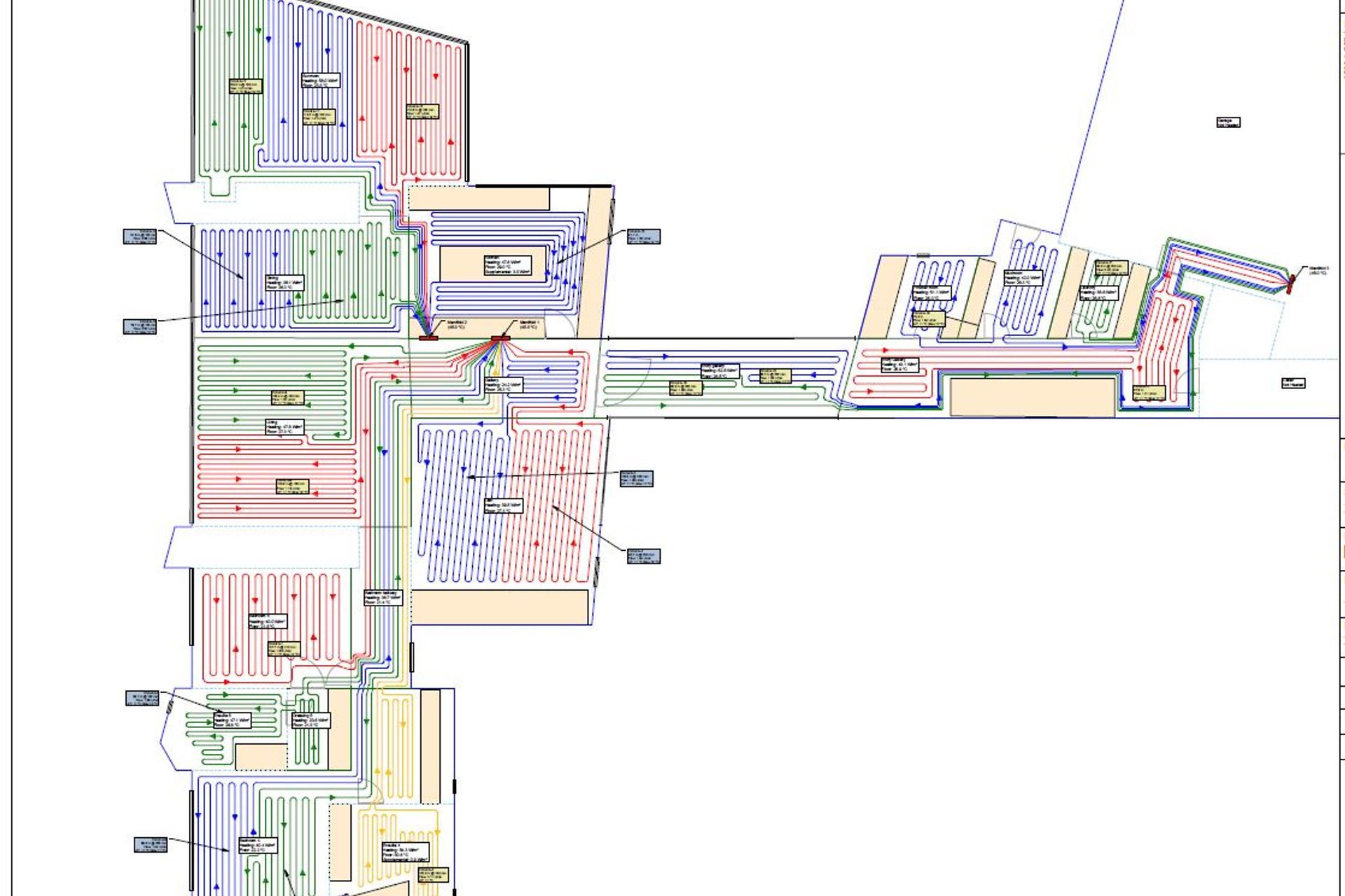
ArchiPro Project Summary - Sustainable plumbing, heating, and energy system for a 500sq/m+ home in Jacks Point, featuring advanced technologies for energy efficiency and minimal environmental impact.
- Title:
- Hidden Island
- Plumbers & Gas Fitter:
- Optum Plumbing and Energy Solutions
- Category:
- Commercial/
- Hospitality
Project Gallery
Views and Engagement
Professionals used

Optum Plumbing and Energy Solutions. Optum is more than just a plumbing business, we’re the total package. We provide complete integrated heating, plumbing and energy solutions for high end residential homes in Wanaka and Queenstown. Our talented, multi-skilled team work with our clients and contractors to seamlessly implement a project from start to finish, from design consultancy through to handover. Our focus is communication.
Optum Plumbing & Energy Solutions has been locally owned and operated by our founding director, Kevin Henderson for 30 years. Our wealth of knowledge comes through international training and experience, including highly skilled plumbers, gasfitters, central heating specialists and solar installers.
Founded
1996
Established presence in the industry.
Projects Listed
4
A portfolio of work to explore.

Optum Plumbing and Energy Solutions.
Profile
Projects
Contact
Other People also viewed
Why ArchiPro?
No more endless searching -
Everything you need, all in one place.Real projects, real experts -
Work with vetted architects, designers, and suppliers.Designed for New Zealand -
Projects, products, and professionals that meet local standards.From inspiration to reality -
Find your style and connect with the experts behind it.Start your Project
Start you project with a free account to unlock features designed to help you simplify your building project.
Learn MoreBecome a Pro
Showcase your business on ArchiPro and join industry leading brands showcasing their products and expertise.
Learn More















