About
Keri Keri Renovation.
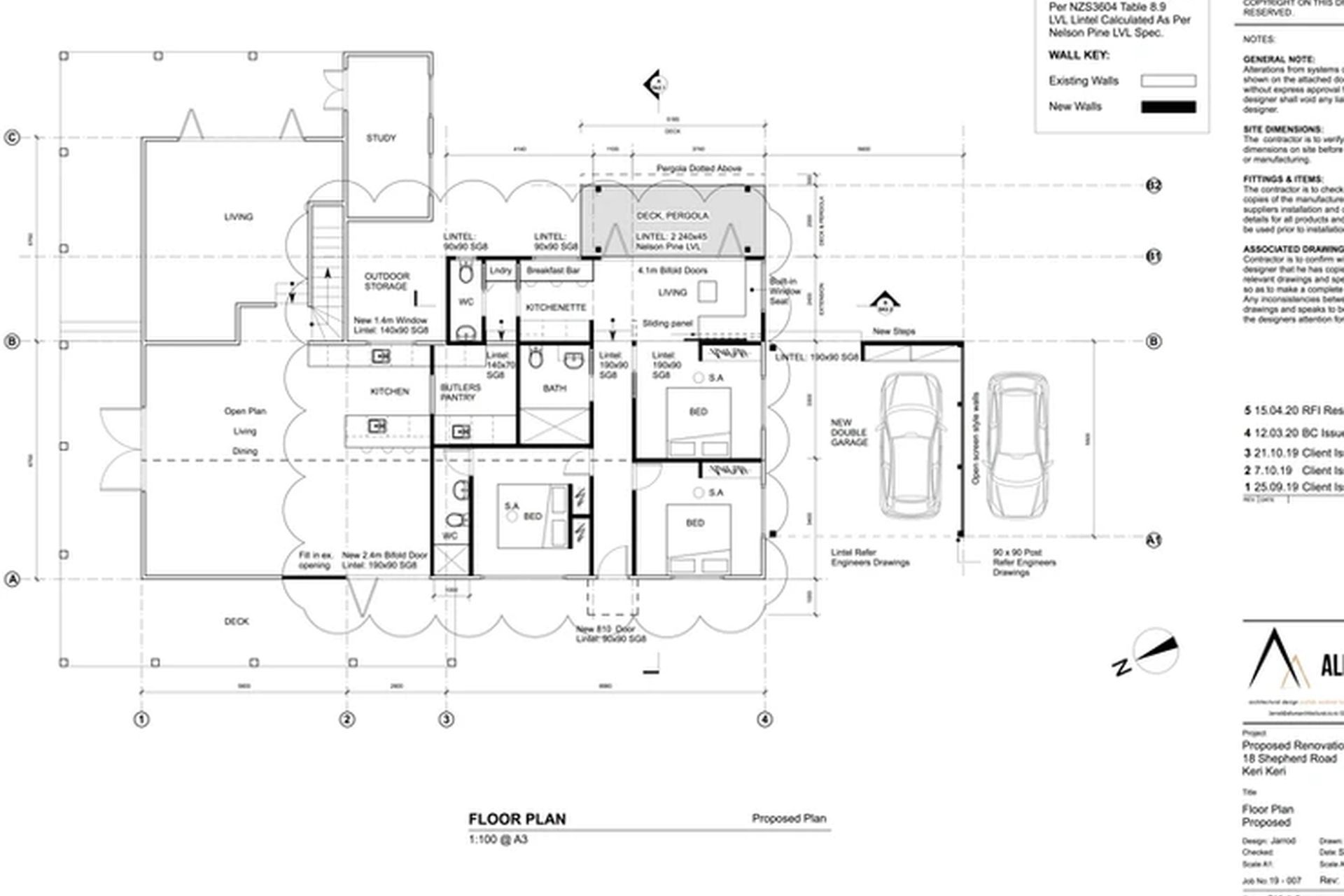
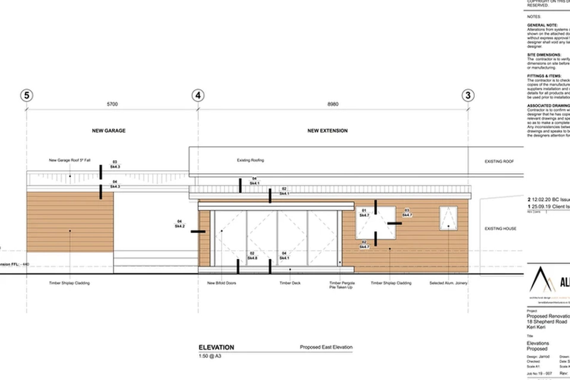
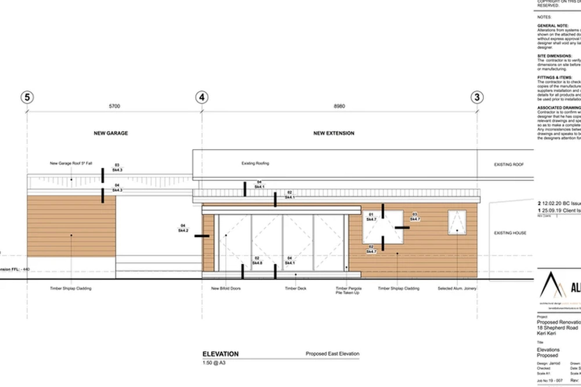
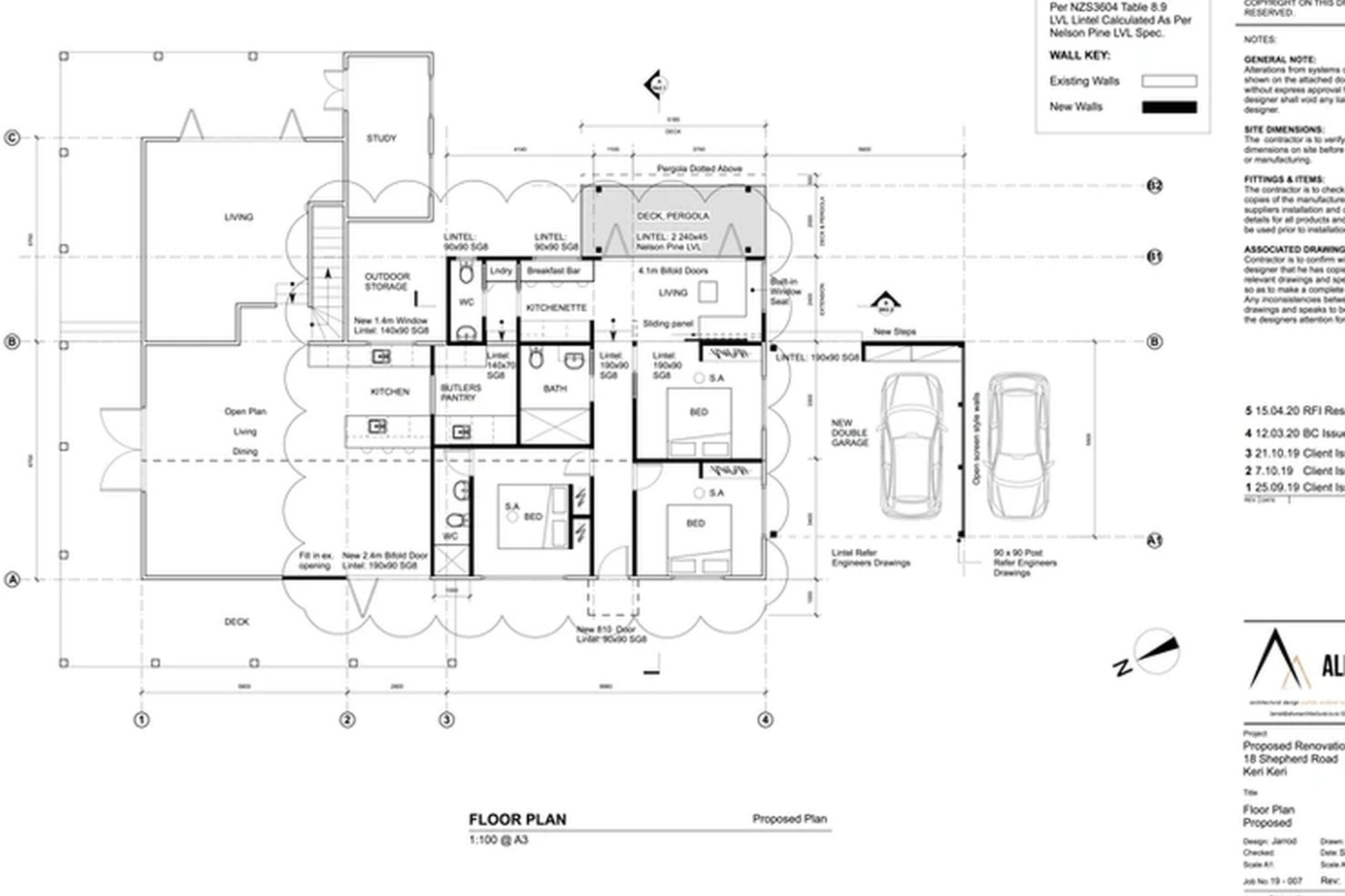
ArchiPro Project Summary - Renovation of a charming cottage featuring an open-plan layout and extension, designed for flexibility and functionality, ideal for Airbnb or family living, with custom kitchen and kitchenette elements.
- Title:
- Keri Keri Renovation
- Architectural Designer:
- Allure Architectural NZ
- Category:
- Residential/
- Renovations and Extensions
- Building style:
- Cottage
Project Gallery












































Views and Engagement
Professionals used

Allure Architectural NZ. Allure Architectural's mission is to capture the imagination of our clients and build cheerful designs which delight and inspire.
Our architectural services range from management of minor projects such residential renovations and design of smaller dwellings to planning and building of larger infrastructures such as warehouses and commercial buildings.As a small team, we are able to move with agility and save you costs by collaborating within our trusted network of professionals.
Allure Architectural is a licensed architectural practice managed and owned by Jarrod Suckling.
Year Joined
2024
Established presence on ArchiPro.
Projects Listed
7
A portfolio of work to explore.

Allure Architectural NZ.
Profile
Projects
Contact
Other People also viewed
Why ArchiPro?
No more endless searching -
Everything you need, all in one place.Real projects, real experts -
Work with vetted architects, designers, and suppliers.Designed for New Zealand -
Projects, products, and professionals that meet local standards.From inspiration to reality -
Find your style and connect with the experts behind it.Start your Project
Start you project with a free account to unlock features designed to help you simplify your building project.
Learn MoreBecome a Pro
Showcase your business on ArchiPro and join industry leading brands showcasing their products and expertise.
Learn More















