About
Takanini Revamp.
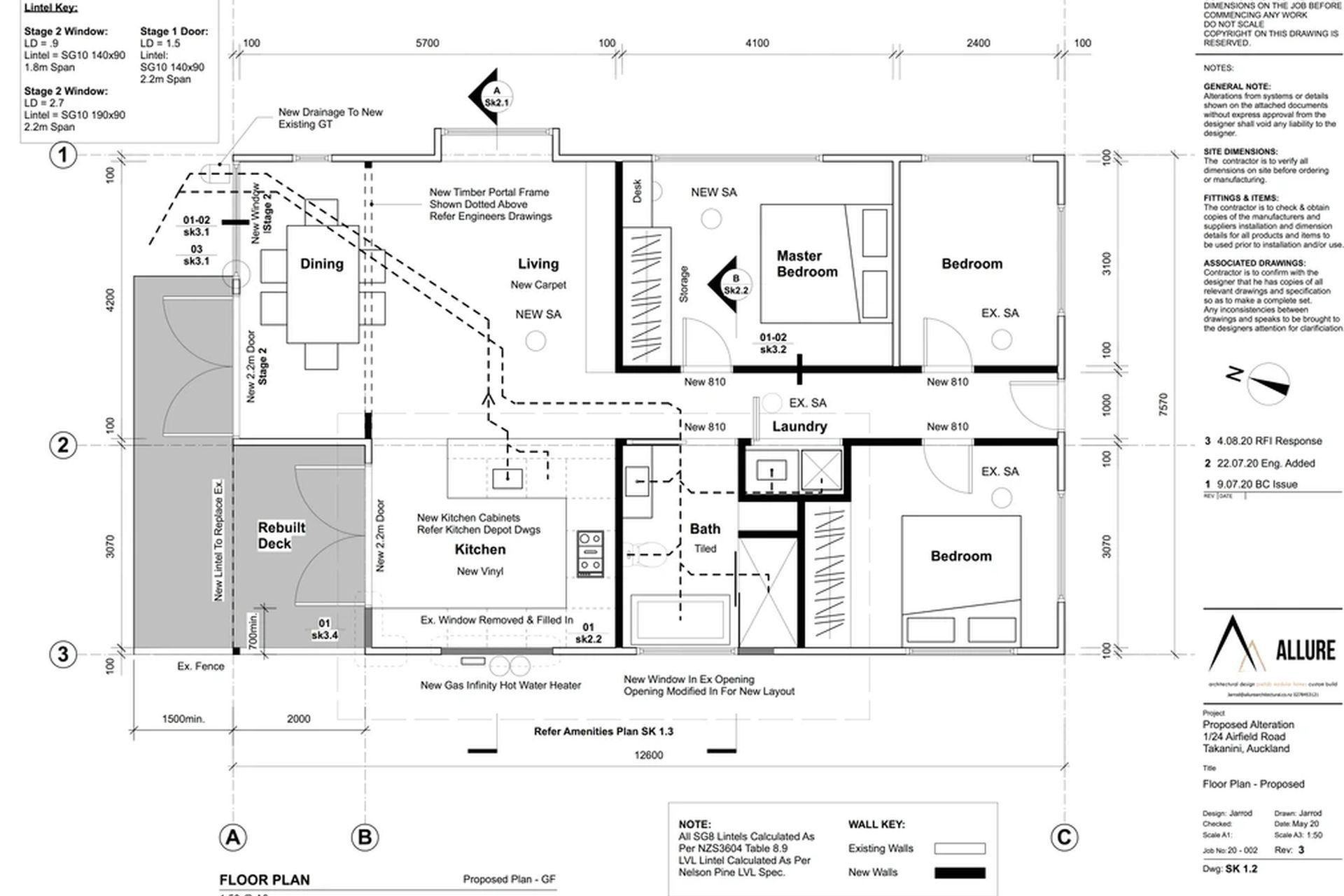
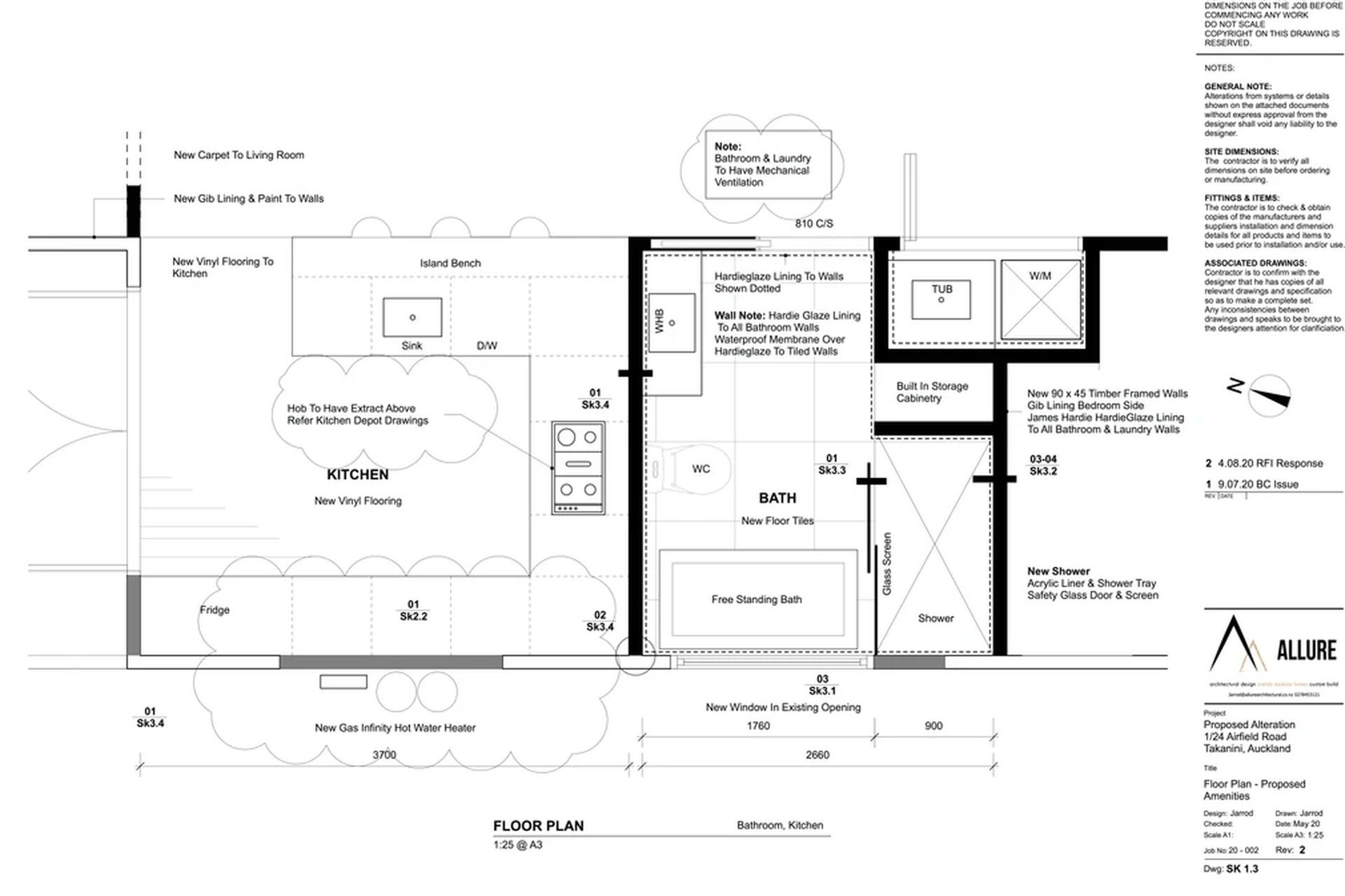
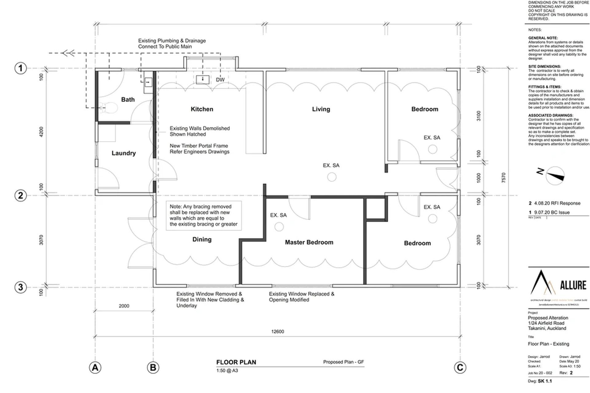
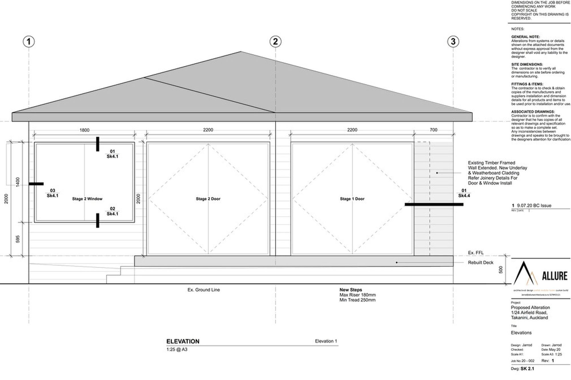
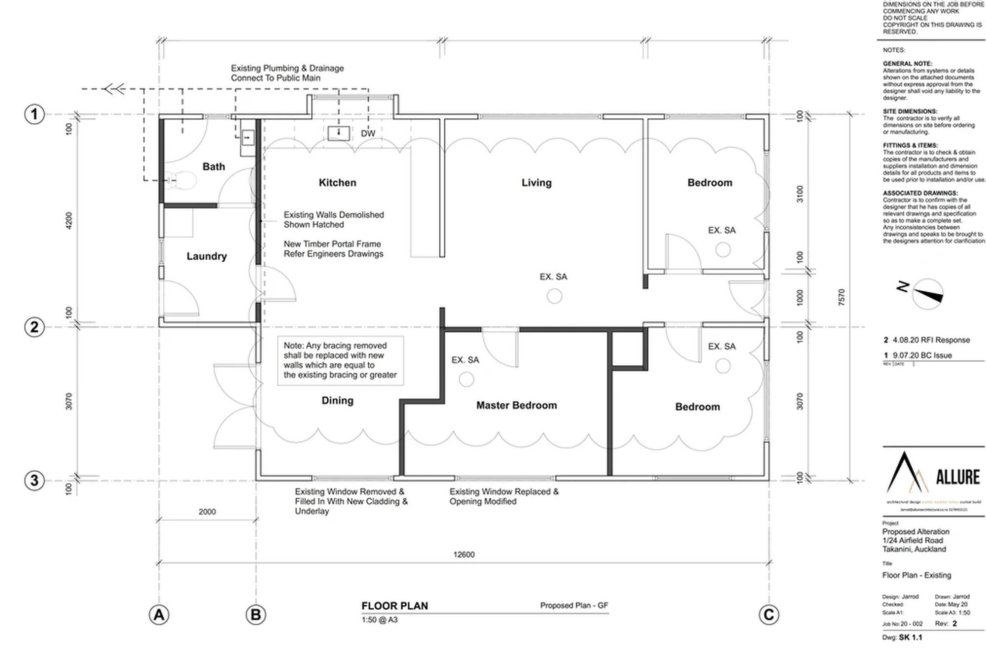
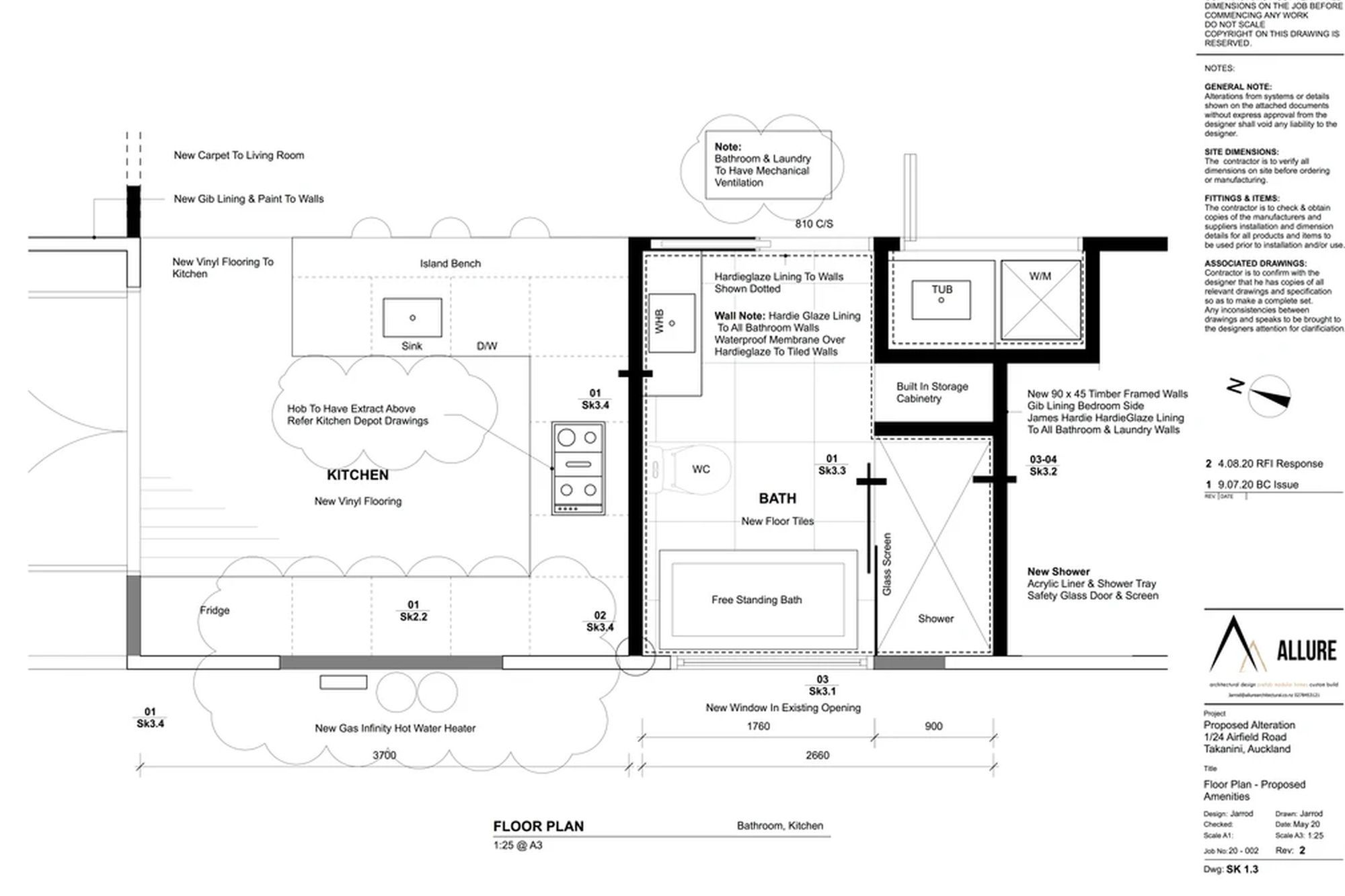
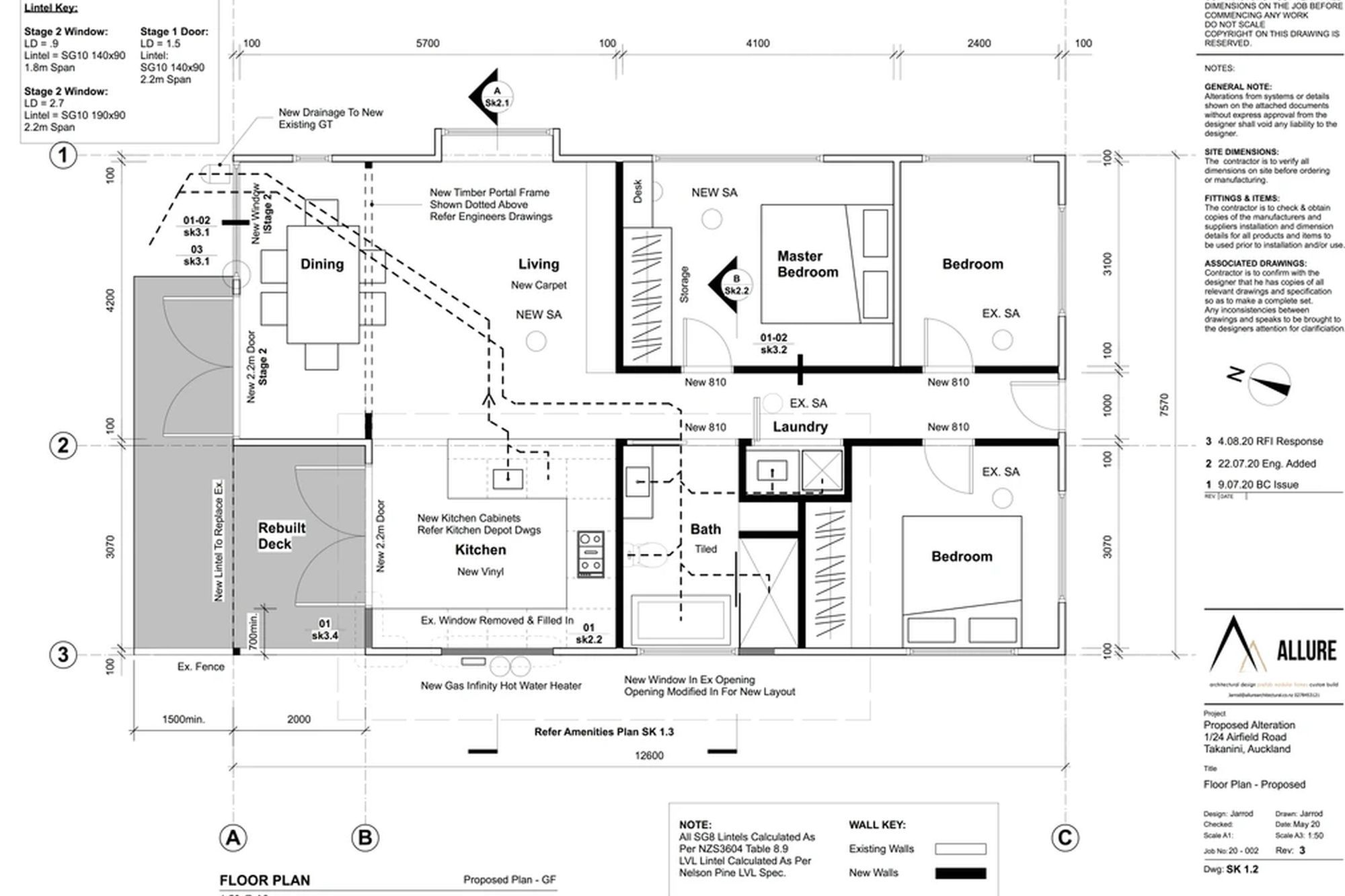
ArchiPro Project Summary - Revitalizing a first family home with a new bathroom, kitchen, and laundry, while enhancing functionality through the removal of load-bearing walls and comprehensive architectural services from concept to building consent.
- Title:
- Takanini Revamp
- Architectural Designer:
- Allure Architectural NZ
- Category:
- Residential/
- Renovations and Extensions
Project Gallery
Architectural Drawings:





Progress Photos:





Views and Engagement
Professionals used

Allure Architectural NZ. Allure Architectural's mission is to capture the imagination of our clients and build cheerful designs which delight and inspire.
Our architectural services range from management of minor projects such residential renovations and design of smaller dwellings to planning and building of larger infrastructures such as warehouses and commercial buildings.As a small team, we are able to move with agility and save you costs by collaborating within our trusted network of professionals.
Allure Architectural is a licensed architectural practice managed and owned by Jarrod Suckling.
Year Joined
2024
Established presence on ArchiPro.
Projects Listed
7
A portfolio of work to explore.

Allure Architectural NZ.
Profile
Projects
Contact
Other People also viewed
Why ArchiPro?
No more endless searching -
Everything you need, all in one place.Real projects, real experts -
Work with vetted architects, designers, and suppliers.Designed for New Zealand -
Projects, products, and professionals that meet local standards.From inspiration to reality -
Find your style and connect with the experts behind it.Start your Project
Start you project with a free account to unlock features designed to help you simplify your building project.
Learn MoreBecome a Pro
Showcase your business on ArchiPro and join industry leading brands showcasing their products and expertise.
Learn More















