
About
Lockerbie Retirement Village.
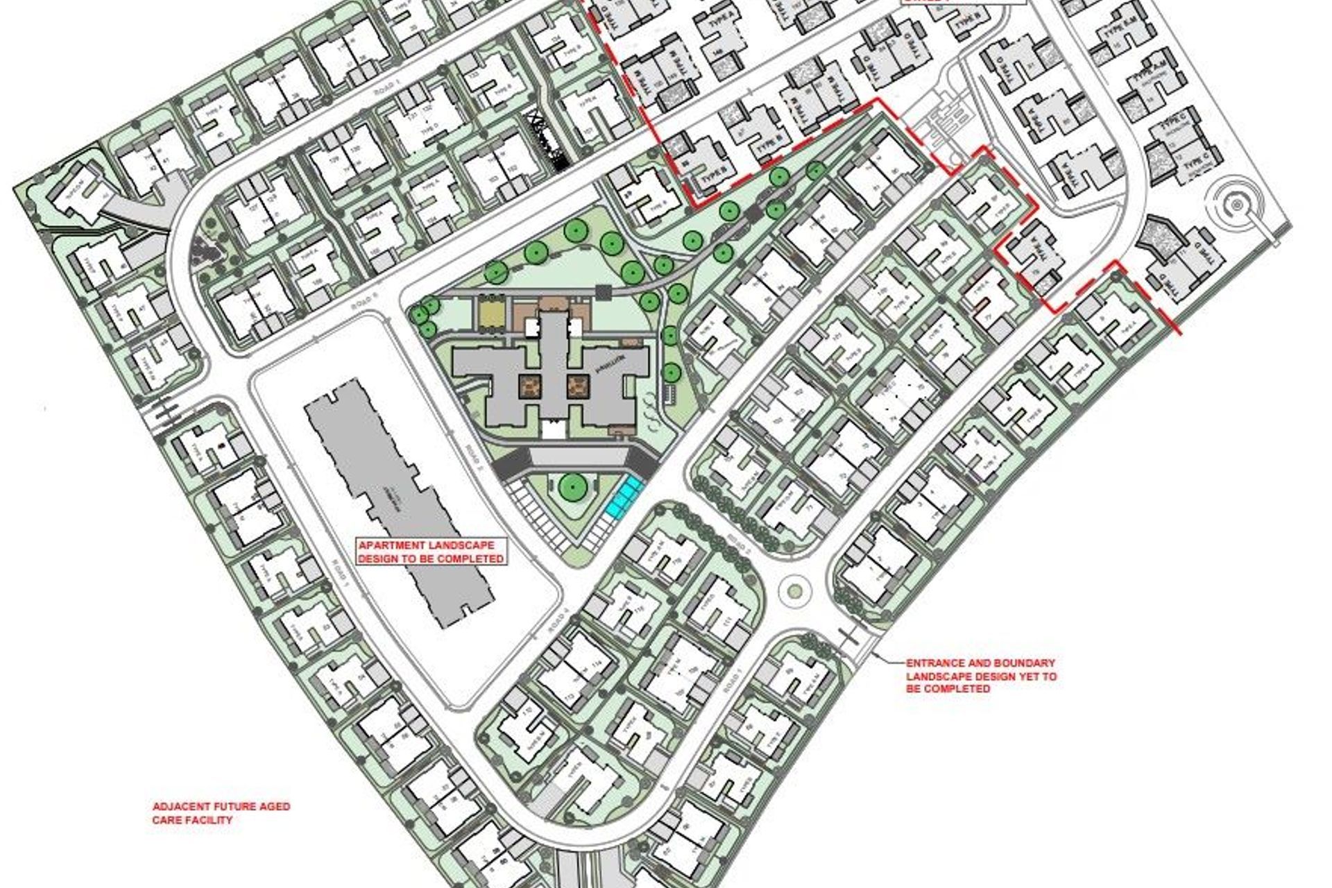
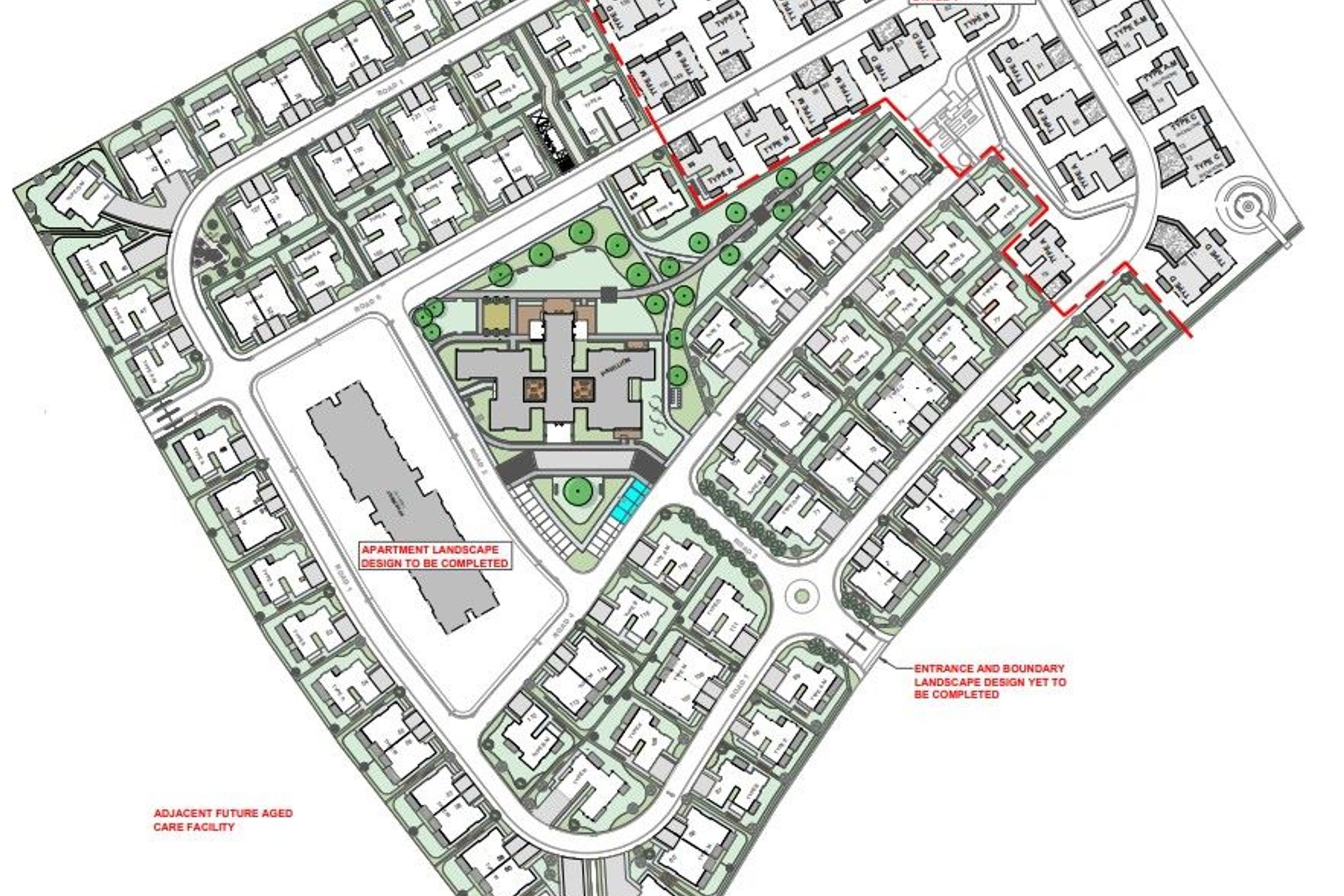
ArchiPro Project Summary - Master planning and landscape design for Lockerbie Retirement Village, featuring cohesive aesthetics, low-maintenance vegetation, and a versatile Central Pavilion for community gatherings.
- Title:
- Lockerbie Retirement Village | Morrinsville
- Master Planner:
- Momentum Planning and Design
- Category:
- Planning/
- Master Planning
- Region:
- Waikato, NZ
- Client:
- Lockerbie Estate
- Photographers:
- Momentum Planning and Design
Project Gallery


Views and Engagement
Professionals used

Momentum Planning and Design
Master Planners
Tauranga, Bay of Plenty
Momentum Planning and Design. Momentum Planning and Design is a boutique consultancy firm based in Tauranga that specialises in environmental planning, urban design, and landscape architecture. MPAD works collaboratively with a range of partner firms as required to provide bespoke multidisciplinary services to ensure successful outcomes for all projects.
Founded
2016
Established presence in the industry.
Projects Listed
7
A portfolio of work to explore.

Momentum Planning and Design.
Profile
Projects
Contact
Project Portfolio
Other People also viewed
Why ArchiPro?
No more endless searching -
Everything you need, all in one place.Real projects, real experts -
Work with vetted architects, designers, and suppliers.Designed for New Zealand -
Projects, products, and professionals that meet local standards.From inspiration to reality -
Find your style and connect with the experts behind it.Start your Project
Start you project with a free account to unlock features designed to help you simplify your building project.
Learn MoreBecome a Pro
Showcase your business on ArchiPro and join industry leading brands showcasing their products and expertise.
Learn More
















