
About
Sleepout.
- Title:
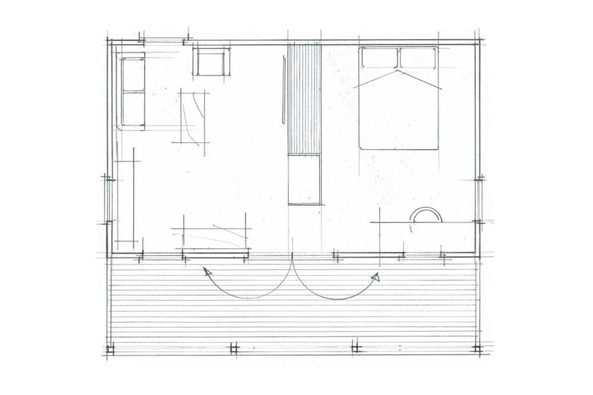
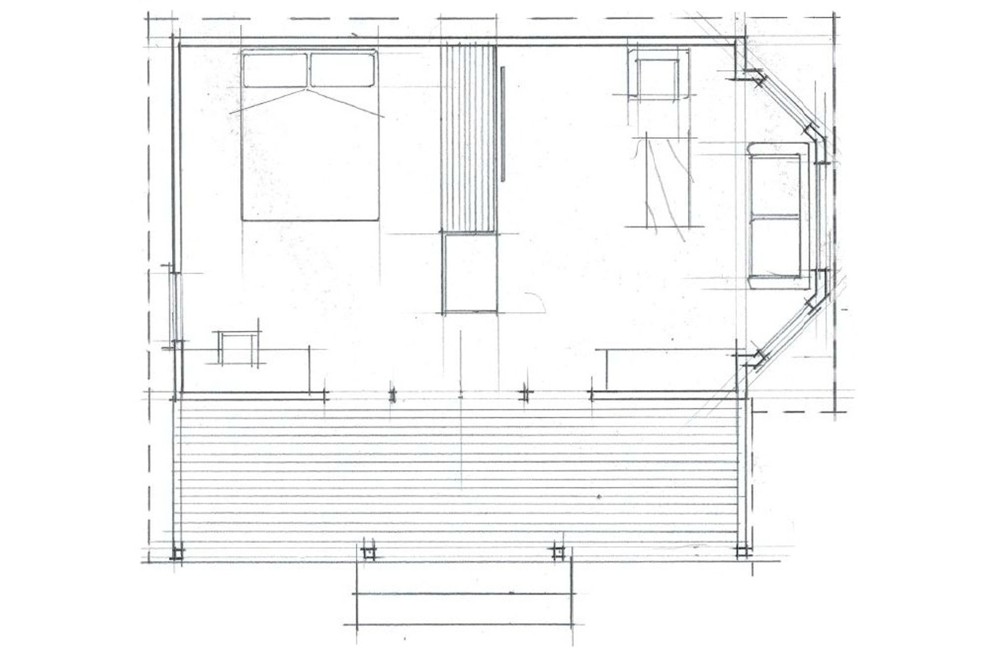
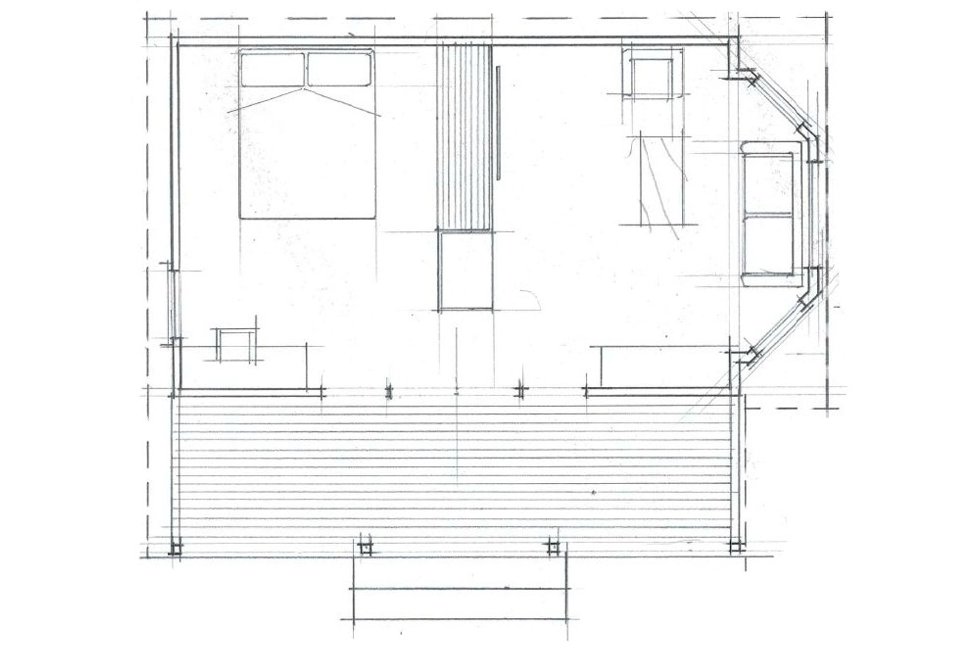
- Sleepout - Cottage - 30m2
- Builder:
- Hybrid Build
Project Gallery







Views and Engagement
Professionals used

Hybrid Build. HYBRID BUILD: CRAFTSMAN BUILDERS
Hybrid Build is 100% Kiwi-owned and family-run business in Auckland. Husband-and-wife team Dale and Gretchen Bainbridge established their first construction company in 1981 and in the 45 plus years since have created an outstanding reputation for reliability and trustworthiness. Their son Clark, a Quantity Surveyor BQS is now Managing Director and the tight-knit team provides the personal touch for every client, as evidenced by the long list of satisfied homeowners.
Many highly-regarded Auckland architects recommend Hybrid Build to their clients, with a substantial amount of the company’s business generated by word of mouth recommendations and referrals. But after four decades in the building industry, the Bainbridge team knows that “It’s not about us, it’s about great results for our clients – our favourite part of the process is when we talk to our happy customers.”
Founded
1987
Established presence in the industry.
Projects Listed
41
A portfolio of work to explore.
Responds within
1d
Typically replies within the stated time.

Hybrid Build.
Profile
Projects
Contact
Project Portfolio
Other People also viewed
Why ArchiPro?
No more endless searching -
Everything you need, all in one place.Real projects, real experts -
Work with vetted architects, designers, and suppliers.Designed for New Zealand -
Projects, products, and professionals that meet local standards.From inspiration to reality -
Find your style and connect with the experts behind it.Start your Project
Start you project with a free account to unlock features designed to help you simplify your building project.
Learn MoreBecome a Pro
Showcase your business on ArchiPro and join industry leading brands showcasing their products and expertise.
Learn More