About
Thomson House.
ArchiPro Project Summary - Thoughtfully designed residential space that harmonizes modern aesthetics with functional living, showcasing innovative architecture and sustainable building practices.
- Title:
- Thomson House
- Interior Designer:
- Warm White Interiors
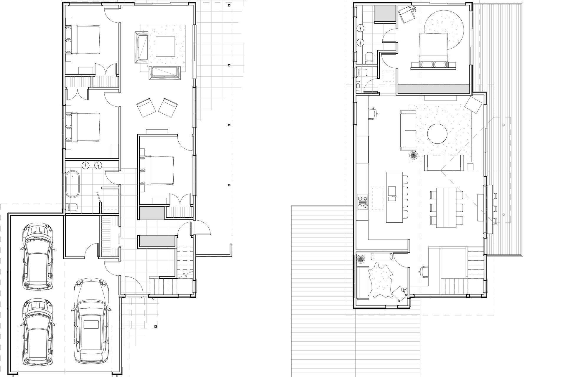
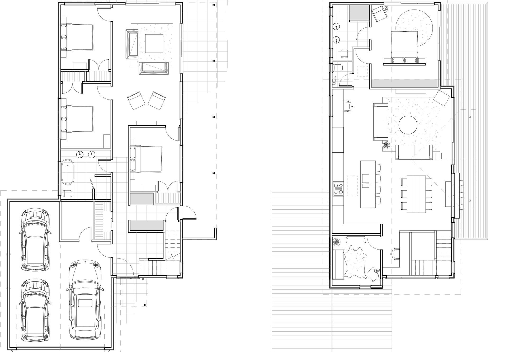
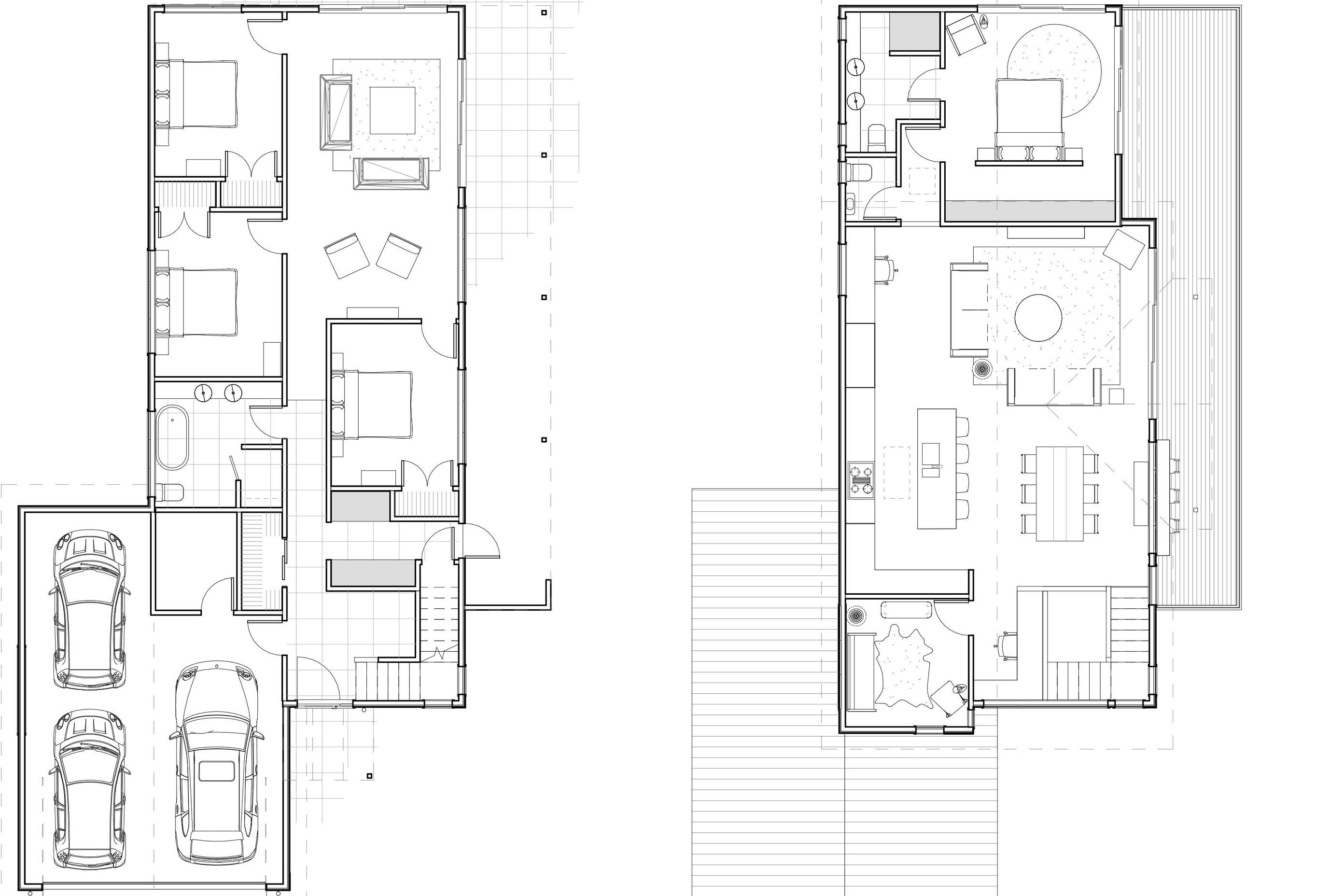
Project Gallery
Views and Engagement
Professionals used

Warm White Interiors. Warm White Interiors is an Auckland based interior design practice offering fast and cost effective interior design services - with a focus on commercial spaces we can help with your office design, retail space or hospitality venture –With an established network of suppliers, consultants and contractors and as a member of the Designers Institute of New Zealand Warm White Interiors is well equipped to assist any client with their project needs and offers a high quality, professional and personal service.We are flexible with the services we offer, we can work with you from start to finish or just step in where you need us, be it drawing up your design or producing professional renders for a presentation.
Year Joined
2018
Established presence on ArchiPro.
Projects Listed
17
A portfolio of work to explore.

Warm White Interiors.
Profile
Projects
Contact
Project Portfolio
Other People also viewed
Why ArchiPro?
No more endless searching -
Everything you need, all in one place.Real projects, real experts -
Work with vetted architects, designers, and suppliers.Designed for New Zealand -
Projects, products, and professionals that meet local standards.From inspiration to reality -
Find your style and connect with the experts behind it.Start your Project
Start you project with a free account to unlock features designed to help you simplify your building project.
Learn MoreBecome a Pro
Showcase your business on ArchiPro and join industry leading brands showcasing their products and expertise.
Learn More




















