
About
Karaka Lakes.
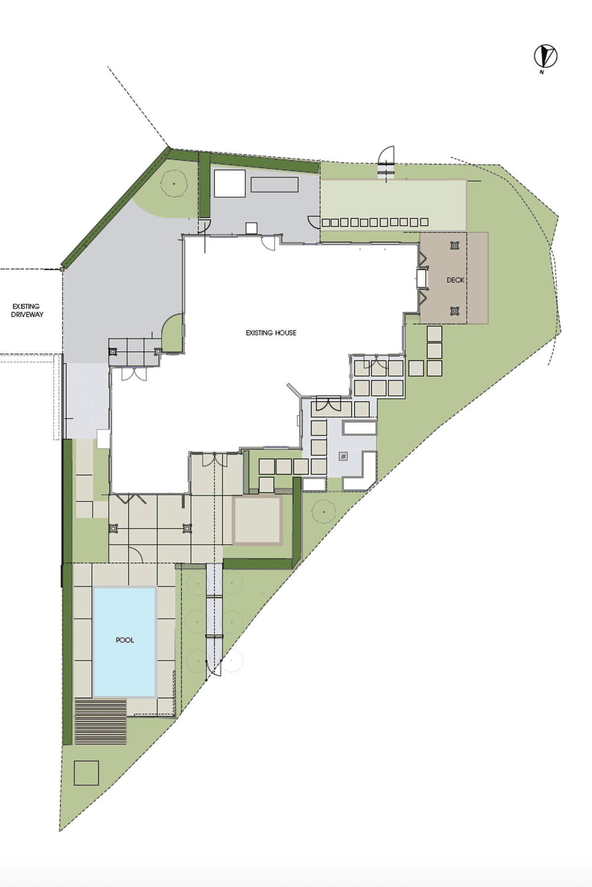
ArchiPro Project Summary - A thoughtfully designed garden that enhances modern living while harmonizing with traditional homestead aesthetics, featuring functional spaces including a pool area, BBQ space, level lawn, and a classic vegetable garden.
- Title:
 - Karaka Lakes
 - Landscape Architect:
 - Alexander McClew Landscape Design
 - Category:
 - Residential/
 - Landscaping
 
Project Gallery
Views and Engagement
Professionals used

Alexander McClew Landscape Design. With over 12 years of experience, it is AMLD's standard to produce a unique and outstanding living environment whatever the size or budget. Utilising a skillset that can cater to various garden styles and/or a diverse range of projects - from common backyards through to large lifestyle blocks. 
Year Joined
2016
Established presence on ArchiPro.
Projects Listed
4
A portfolio of work to explore.

Alexander McClew Landscape Design.
Profile
Projects
Contact
Other People also viewed
Why ArchiPro?
No more endless searching -
Everything you need, all in one place.Real projects, real experts -
Work with vetted architects, designers, and suppliers.Designed for New Zealand -
Projects, products, and professionals that meet local standards.From inspiration to reality -
Find your style and connect with the experts behind it.Start your Project
Start you project with a free account to unlock features designed to help you simplify your building project.
Learn MoreBecome a Pro
Showcase your business on ArchiPro and join industry leading brands showcasing their products and expertise.
Learn More



















