About
Buckton.
ArchiPro Project Summary - The Buckton project showcases modern design with sustainable materials and energy-efficient systems, creating a vibrant community space.
- Title:
- Buckton
- Architectural Designer:
- Eco Habitats
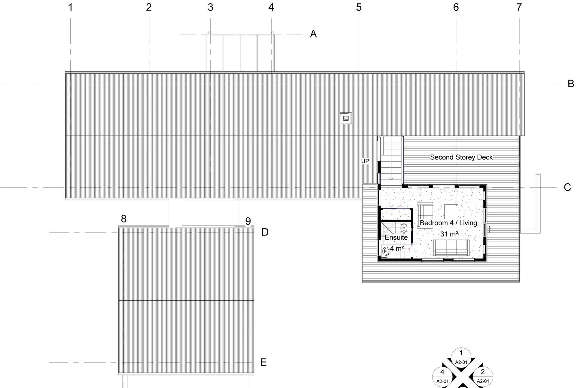
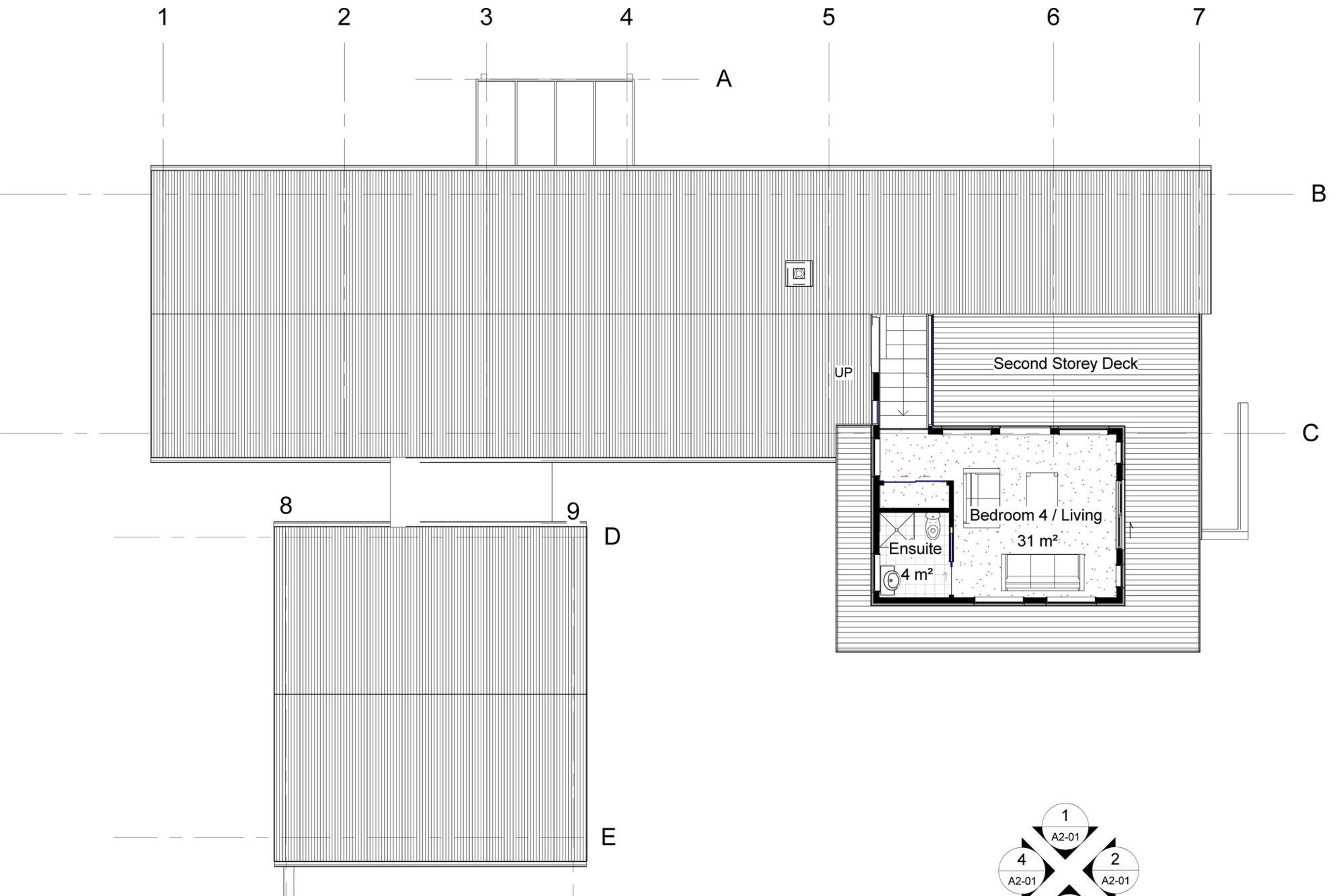
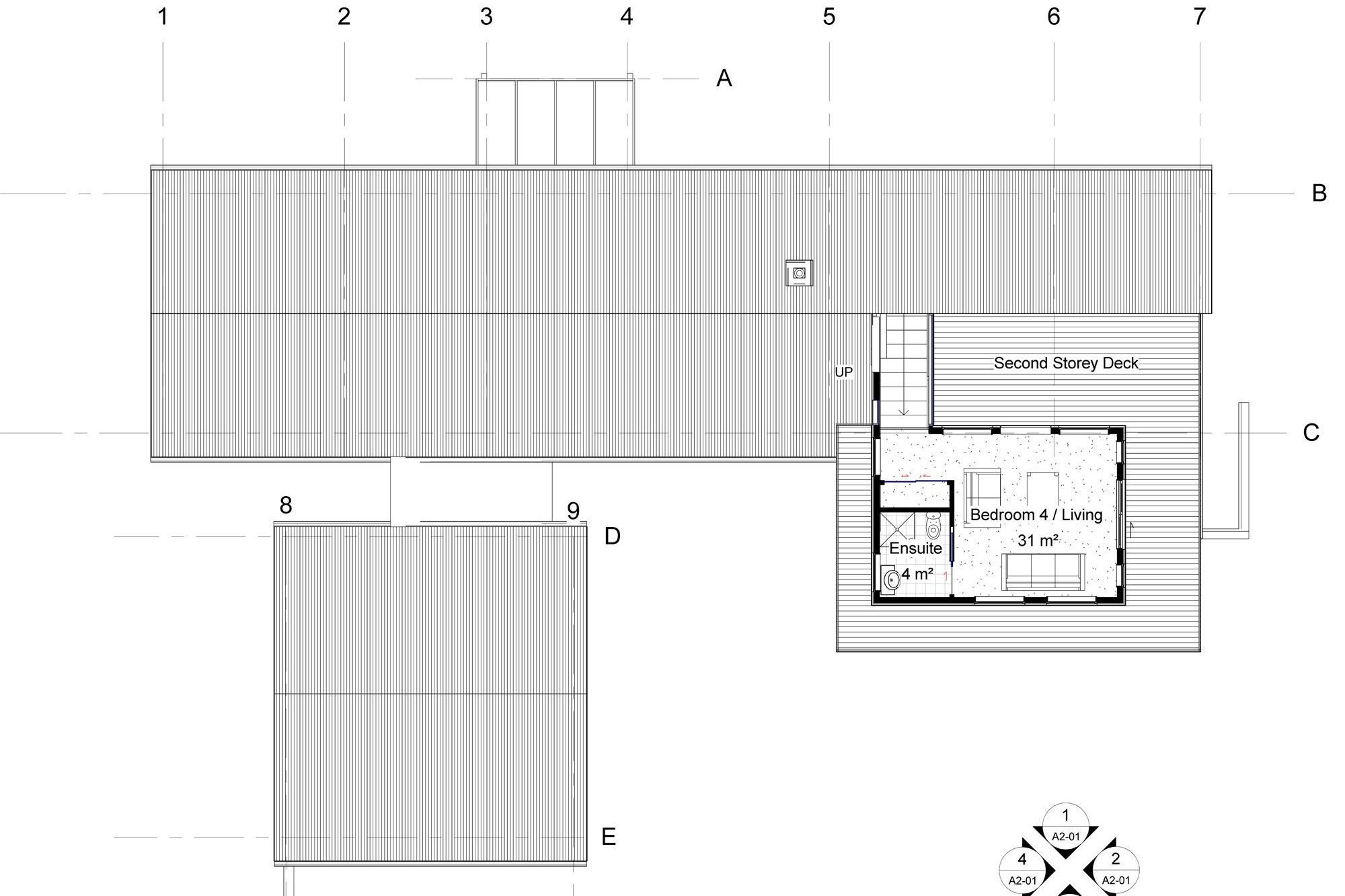
Project Gallery
Views and Engagement
Professionals used

Eco Habitats. Eco habitats is an Architectural Design company that specializes in designing eco friendly homes. We pride ourselves on being able to provide innovative design solutions to meet all our client’s requirements. We believe that architectural design should be environmentally sensitive and promote sustainable building practices.
To show our commitment to this, we are a member of the Green Building Council and members of our team are Homestar Practitioners & Homestar Assessors What does this mean to our clients? We have access to the latest information and research into green building best practice, which enables us to offer you up to the minute advice for your project. As trained Homestar Professionals the team at eco habitats is able to give you guidance on the best combination of design and sustainability features for your building project.
The company Director, Lesley England, originally studied and completed an Honours Degree in Industrial Design at Brunel University, back in the UK. She then went onto work as a Product Designer for over a decade. After immigrating to New Zealand back in 2007, she took the opportunity to start on a new career path and returned to study. Whilst studying a Diploma in Architectural Technology she gained experience in an Architectural Design office, drawing up house plans for building consent applications. After completing her Diploma (with Merit), her ambition to design award winning homes led her to set up her own Architectural practice. She has since become a Homestar Practitioner and Assessor and has decided to specialise in designing and building environmentally friendly homes, as she is passionate about building warmer and healthier homes with a reduced environmental impact.
Year Joined
2019
Established presence on ArchiPro.
Projects Listed
21
A portfolio of work to explore.

Eco Habitats.
Profile
Projects
Contact
Other People also viewed
Why ArchiPro?
No more endless searching -
Everything you need, all in one place.Real projects, real experts -
Work with vetted architects, designers, and suppliers.Designed for New Zealand -
Projects, products, and professionals that meet local standards.From inspiration to reality -
Find your style and connect with the experts behind it.Start your Project
Start you project with a free account to unlock features designed to help you simplify your building project.
Learn MoreBecome a Pro
Showcase your business on ArchiPro and join industry leading brands showcasing their products and expertise.
Learn More



























