About
Lake Views Taupo.
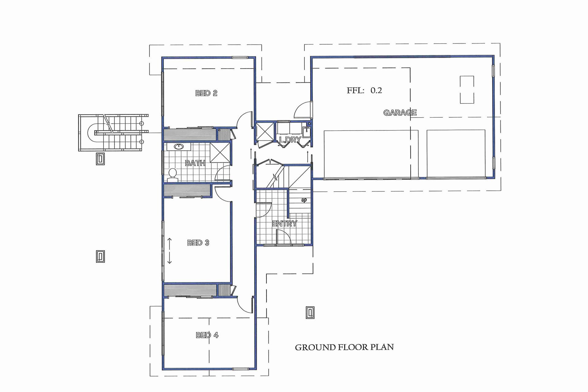
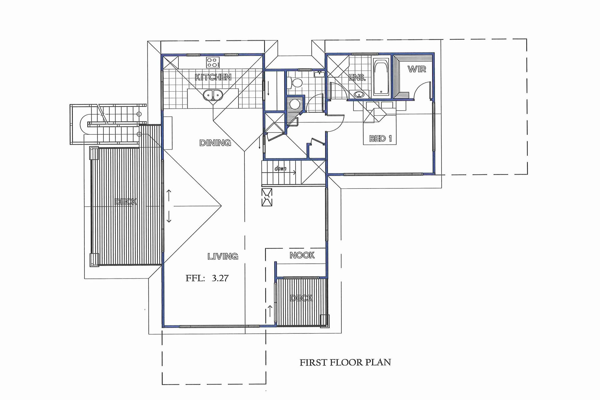
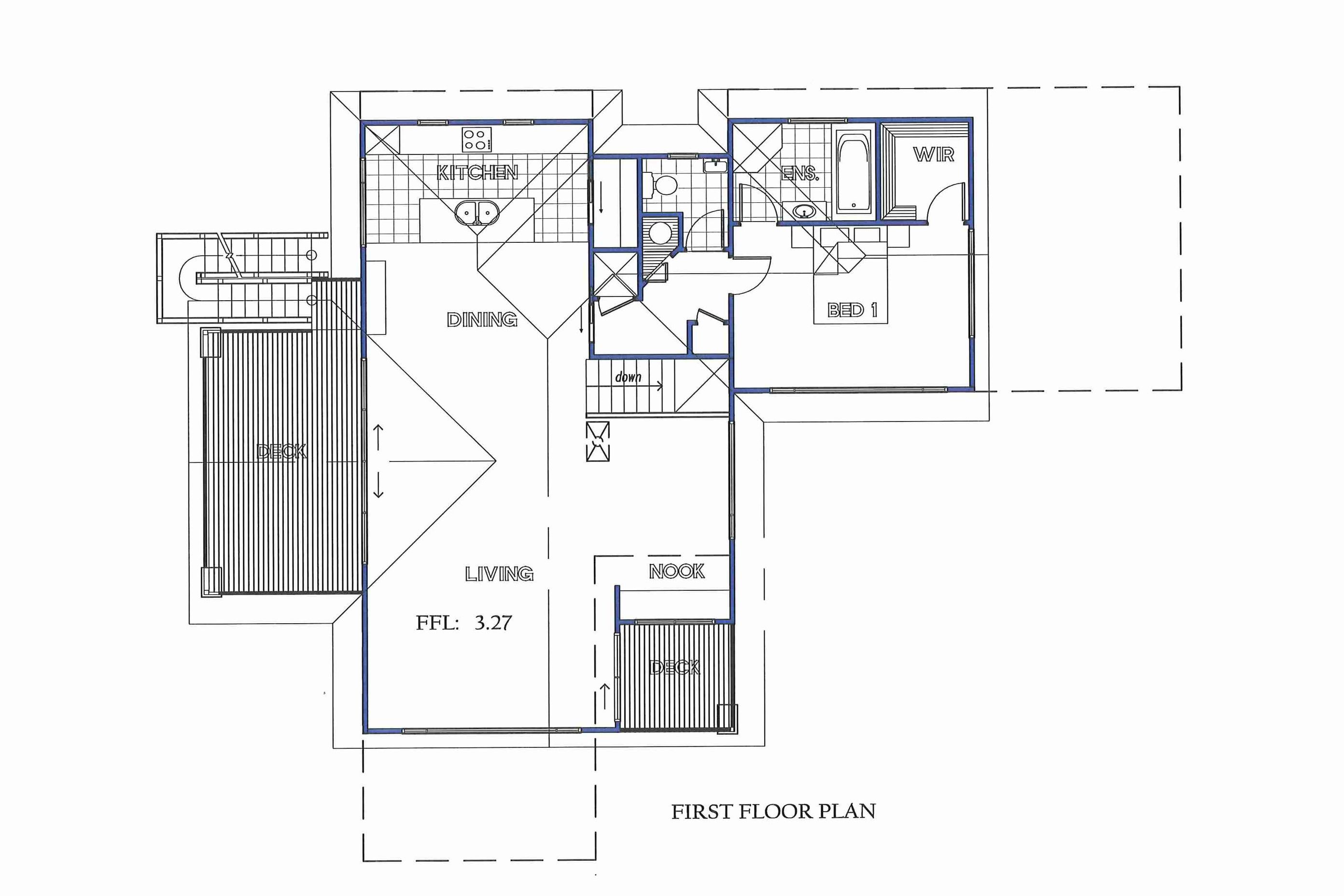
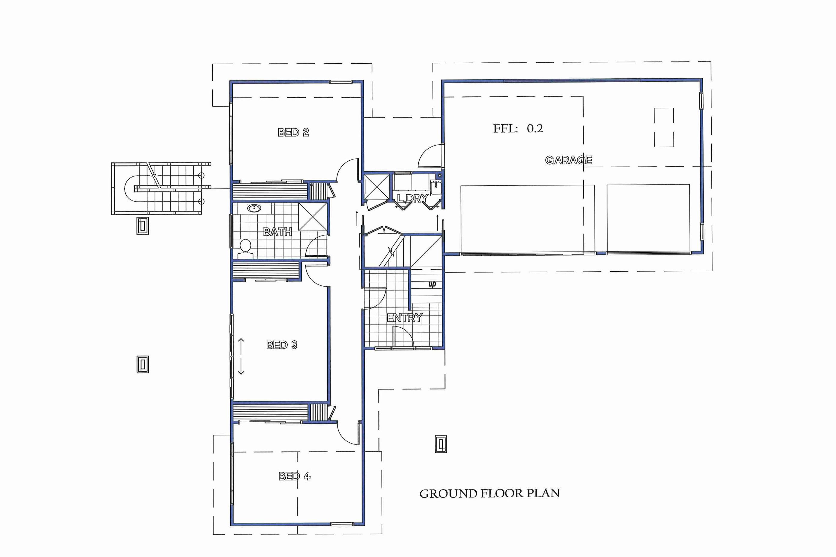
ArchiPro Project Summary - A site-specific home design offering uninterrupted views of Lake Taupo, crafted through regular client collaboration to ensure all requirements were met seamlessly.
- Title:
- Lake Views Taupo
- Architectural Designer:
- RPM Architecture
- Category:
- Residential/
- New Builds
Project Gallery





Views and Engagement
Professionals used

RPM Architecture. Need a professional architectural design? Let RPM Architecture design your new home or renovate your existing structure. With a keen eye for innovative and modern design, RPM Architecture can transform your home into a place you’ll be proud to show off. With more than eight years experience, Reed has the passion, know-how and ability to craft the home of your dreams. Check out RPM Architecture’s portfolio here.
Year Joined
2022
Established presence on ArchiPro.
Projects Listed
2
A portfolio of work to explore.
RPM Architecture.
Profile
Projects
Contact
Project Portfolio
Other People also viewed
Why ArchiPro?
No more endless searching -
Everything you need, all in one place.Real projects, real experts -
Work with vetted architects, designers, and suppliers.Designed for New Zealand -
Projects, products, and professionals that meet local standards.From inspiration to reality -
Find your style and connect with the experts behind it.Start your Project
Start you project with a free account to unlock features designed to help you simplify your building project.
Learn MoreBecome a Pro
Showcase your business on ArchiPro and join industry leading brands showcasing their products and expertise.
Learn More









