
About
Subdivision Masterplanning.
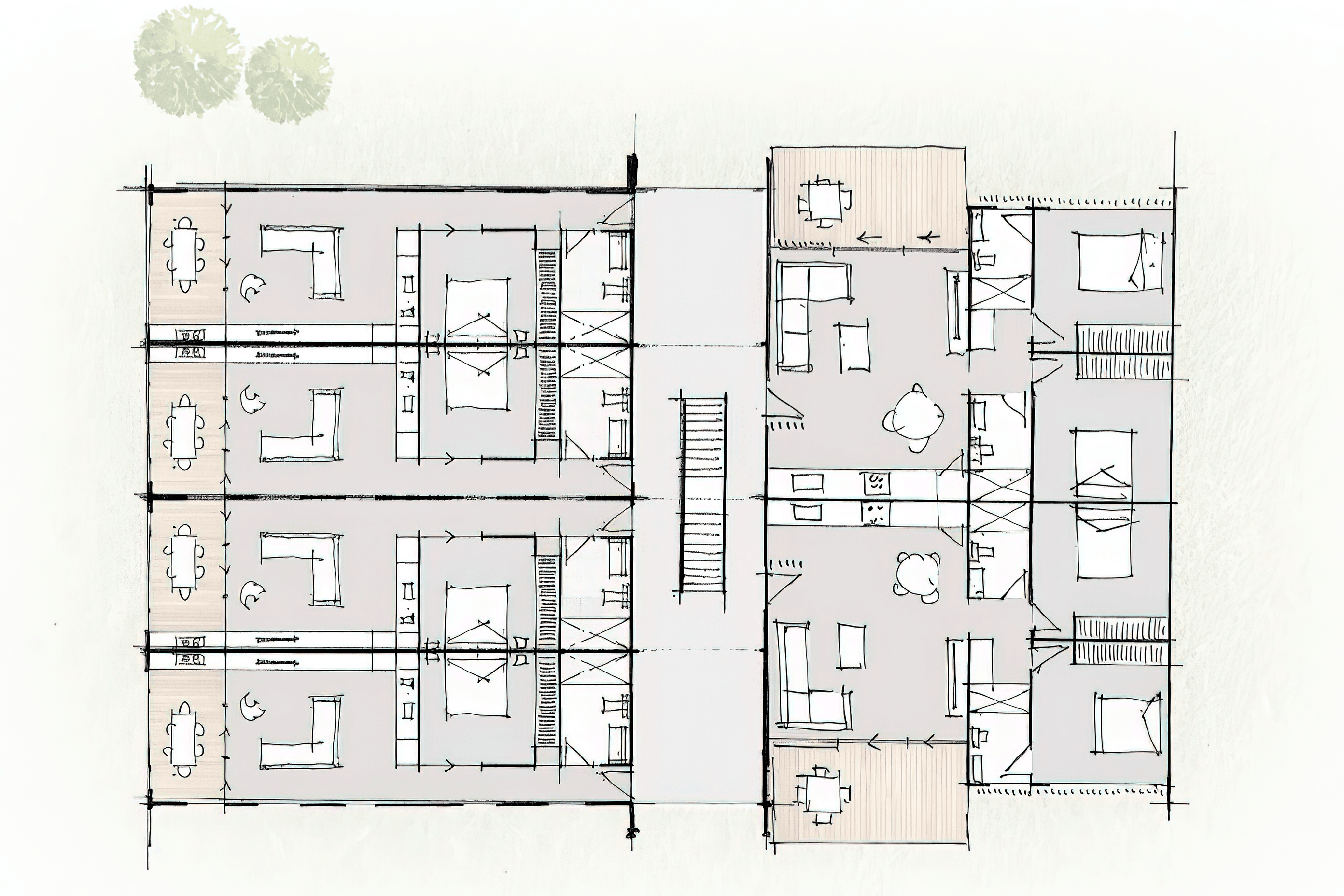
ArchiPro Project Summary - Comprehensive master planning of green and brownfield sites, focusing on design excellence, community engagement, and maximizing developer returns.
- Title:
- Subdivision Masterplanning
- Architect:
- Brave Architects
- Category:
- Planning/
- Master Planning
Project Gallery








Views and Engagement
Professionals used

Brave Architects. Brave Architects is an award winning, full-service, design-led studio based in Auckland, delivering beautifully designed bespoke solutions across private residential, commercial, health and wellbeing.
With Brave, clients experience a personal response to every brief, delivering timeless architecture to reflect each individual client, be it a renovation, new build or larger scale mixed-use project.
At Brave, the highest accolade we strive for is to exceed client expectations and transcend our client's imagination, as our testimonials and referrals reflect.
We delight in creating solutions with fluency and speed, and our wide range of experienced consultants support all areas of the build process.
Give us a call or come and talk to us in our home - The Higher Thought Temple.
Year Joined
2022
Established presence on ArchiPro.
Projects Listed
16
A portfolio of work to explore.

Brave Architects.
Profile
Projects
Contact
Other People also viewed
Why ArchiPro?
No more endless searching -
Everything you need, all in one place.Real projects, real experts -
Work with vetted architects, designers, and suppliers.Designed for New Zealand -
Projects, products, and professionals that meet local standards.From inspiration to reality -
Find your style and connect with the experts behind it.Start your Project
Start you project with a free account to unlock features designed to help you simplify your building project.
Learn MoreBecome a Pro
Showcase your business on ArchiPro and join industry leading brands showcasing their products and expertise.
Learn More