About
Remuera House II.
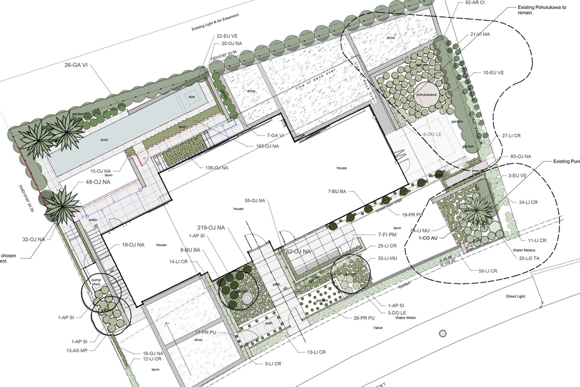
ArchiPro Project Summary - Thoughtfully designed landscaping that complements the architectural elegance of Remuera House II, featuring clean lines and impactful planting for a striking entrance.
- Title:
- Remuera House II
- Landscape Architect:
- Humphreys Landscaping
- Category:
- Residential/
- Landscaping
Project Gallery




Views and Engagement
Professionals used

Humphreys Landscaping. Scott Humphreys has been in the landscaping industry for over 25 years. The company provides a comprehensive landscaping service. It covers all aspects of landscaping including landscape design, construction and maintenance.
The company's success is built on a culture of excellence, innovation and a commitment to providing a high level of service and quality that exceeds the expectations of its diverse client base. As members of the Landscape Industries Association of New Zealand, Humphreys Landscaping takes pride in all of its work and in completing all stages of its clients' landscaping requirements to the highest possible standard.
Landscape architecture and constructionOur qualified Landscape Architects, implementation and maintenance teams, will work with you to create original and enduring landscapes that will add beauty and value to your property. OurLandscape Architects work with our landscapers to ensure each project is carefully managed for optimum efficiency, built to high standards and worked to fit in with your timeframe and budget.
Taking care of your property's most visible assetA well-tended well maintained garden is an important part of presenting a beautiful home.
The demands of a busy lifestyle means you may not have the time you need to take care of your garden's needs through the changing seasons. Humphreys Landscaping provides experienced gardeners to take care of your garden maintenance so that you can enjoy its beauty all year round.
We work with clients who understand the importance of maintaining the exterior features of their property, offering a full range of garden maintenance, lawn care and tree care services that are reliable, professional and competitively priced.
Year Joined
2019
Established presence on ArchiPro.
Projects Listed
18
A portfolio of work to explore.

Humphreys Landscaping.
Profile
Projects
Contact
Project Portfolio
Other People also viewed
Why ArchiPro?
No more endless searching -
Everything you need, all in one place.Real projects, real experts -
Work with vetted architects, designers, and suppliers.Designed for New Zealand -
Projects, products, and professionals that meet local standards.From inspiration to reality -
Find your style and connect with the experts behind it.Start your Project
Start you project with a free account to unlock features designed to help you simplify your building project.
Learn MoreBecome a Pro
Showcase your business on ArchiPro and join industry leading brands showcasing their products and expertise.
Learn More



















