About
Enfield Drive.
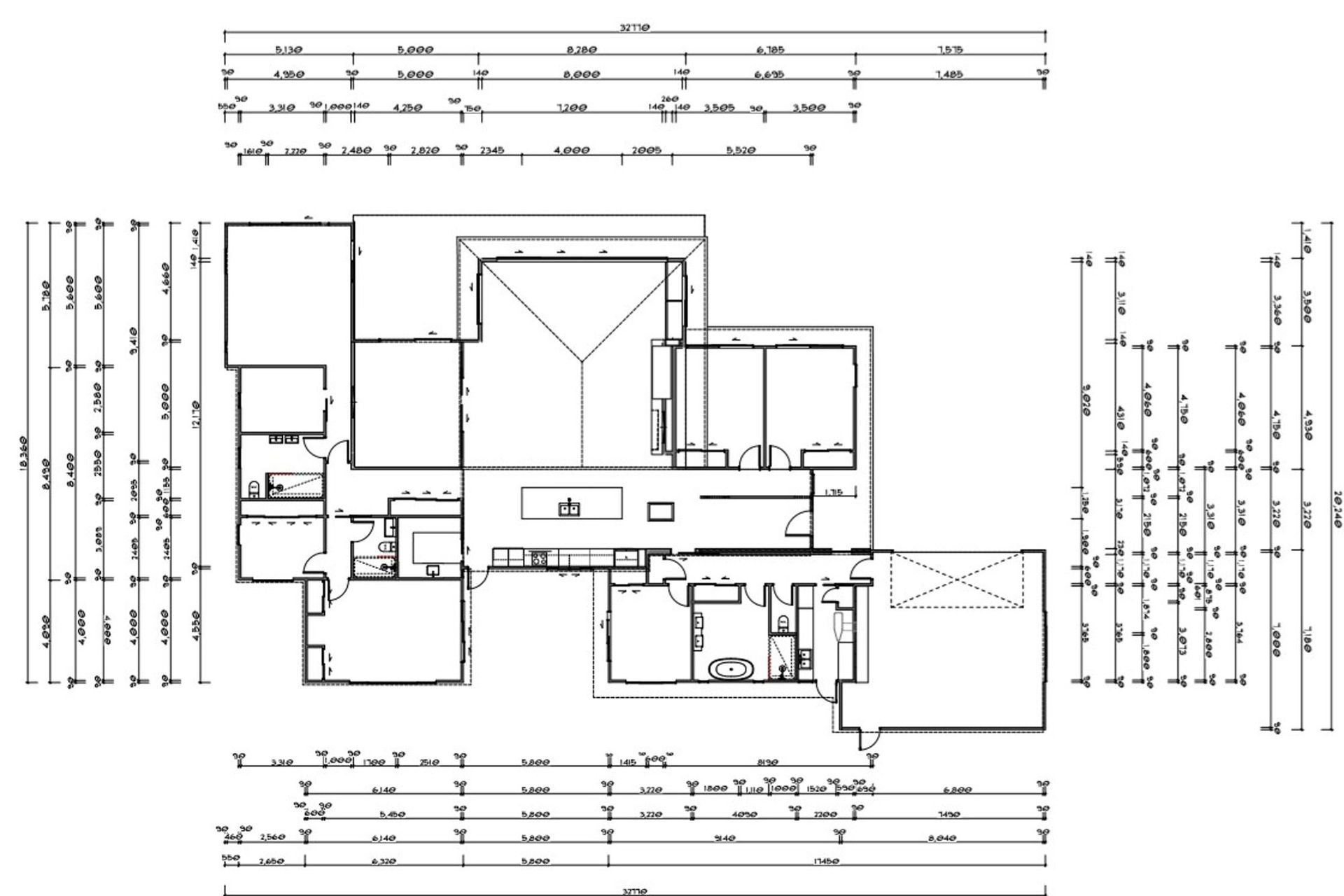
ArchiPro Project Summary - Enfield Drive combines modern architecture with sustainability, offering spacious homes in a prime location.
- Title:
- Enfield Drive
- Architect:
- Absolute Architecture
- Category:
- Residential/
- New Builds
Project Gallery
Views and Engagement

Absolute Architecture
Architects
Hawke's Bay
Absolute Architecture. We are Absolute Architecture.
Year Joined
Established presence on ArchiPro.
Projects Listed
4
A portfolio of work to explore.

Absolute Architecture.
Profile
Projects
Contact
Other People also viewed
Why ArchiPro?
No more endless searching -
Everything you need, all in one place.Real projects, real experts -
Work with vetted architects, designers, and suppliers.Designed for New Zealand -
Projects, products, and professionals that meet local standards.From inspiration to reality -
Find your style and connect with the experts behind it.Start your Project
Start you project with a free account to unlock features designed to help you simplify your building project.
Learn MoreBecome a Pro
Showcase your business on ArchiPro and join industry leading brands showcasing their products and expertise.
Learn More






























