
About
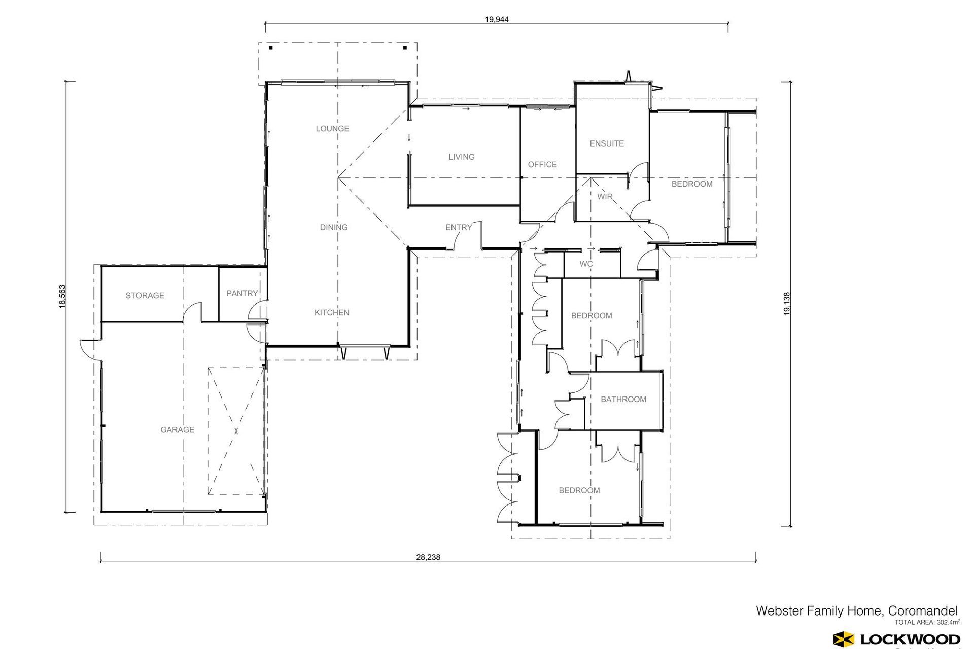
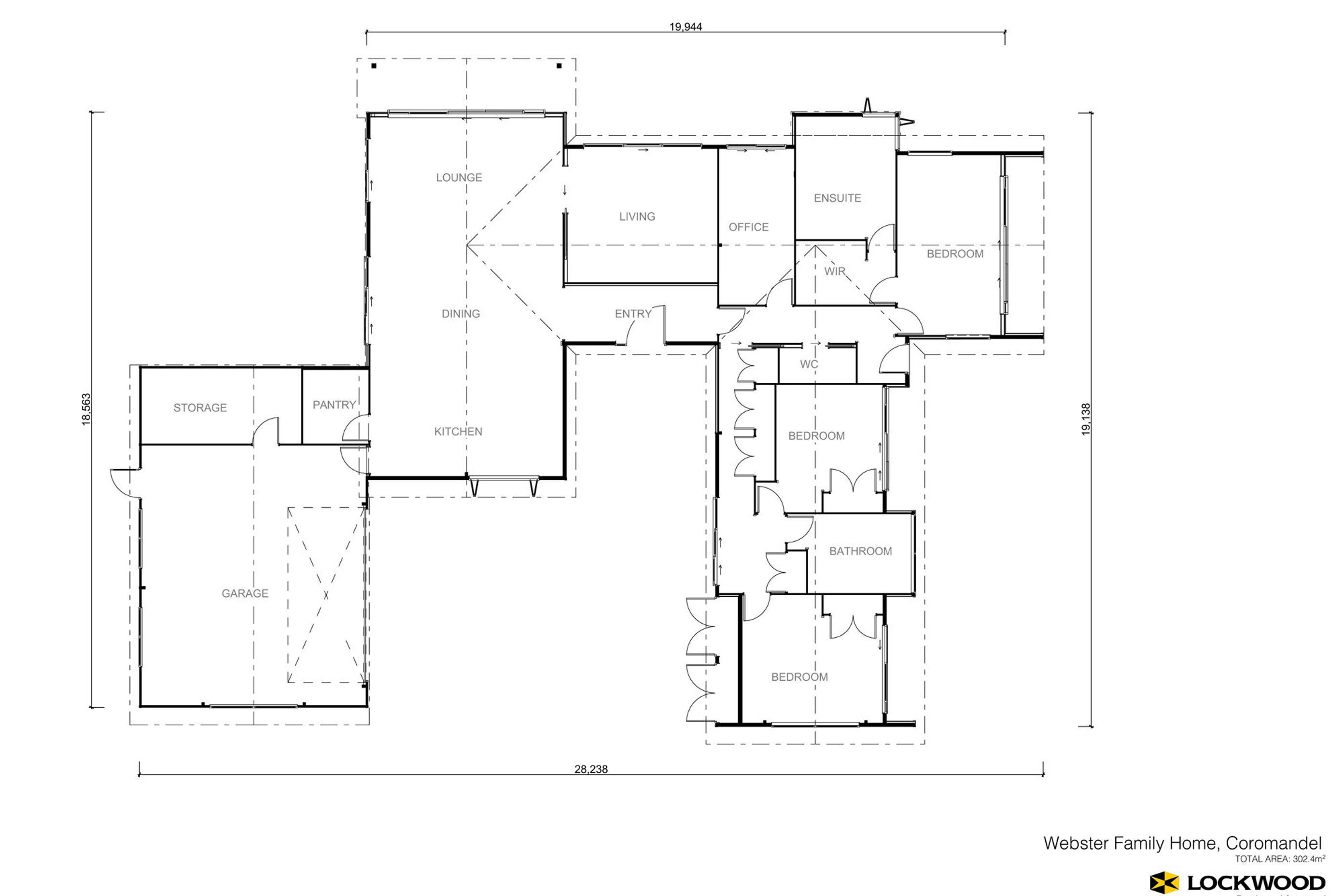
Webster Home Coromandel.
ArchiPro Project Summary - A stunning family home on the Coromandel Peninsula, featuring panoramic coastal views, a high-quality design by Coastwood Homes, and exceptional outdoor entertaining spaces, all while navigating the challenges of the Covid-19 pandemic.
- Title:
- Webster Family Home – Coromandel Peninsula
- Builder:
- Coastwood Homes
- Category:
- Residential/
- New Builds
Project Gallery

















Views and Engagement

Coastwood Homes. Coastwood Homes Ltd is your trusted Lockwood contractor in the Coromandel.Our team of dedicated staff will guide you through all aspects of your design and build project, whether it be a stunning beachfront home, a farm worker’s cottage, or anything in between.Get in touch
Year Joined
2023
Established presence on ArchiPro.
Projects Listed
13
A portfolio of work to explore.

Coastwood Homes.
Profile
Projects
Contact
Project Portfolio
Other People also viewed
Why ArchiPro?
No more endless searching -
Everything you need, all in one place.Real projects, real experts -
Work with vetted architects, designers, and suppliers.Designed for New Zealand -
Projects, products, and professionals that meet local standards.From inspiration to reality -
Find your style and connect with the experts behind it.Start your Project
Start you project with a free account to unlock features designed to help you simplify your building project.
Learn MoreBecome a Pro
Showcase your business on ArchiPro and join industry leading brands showcasing their products and expertise.
Learn More















