About
No. 6 Sydney Street.
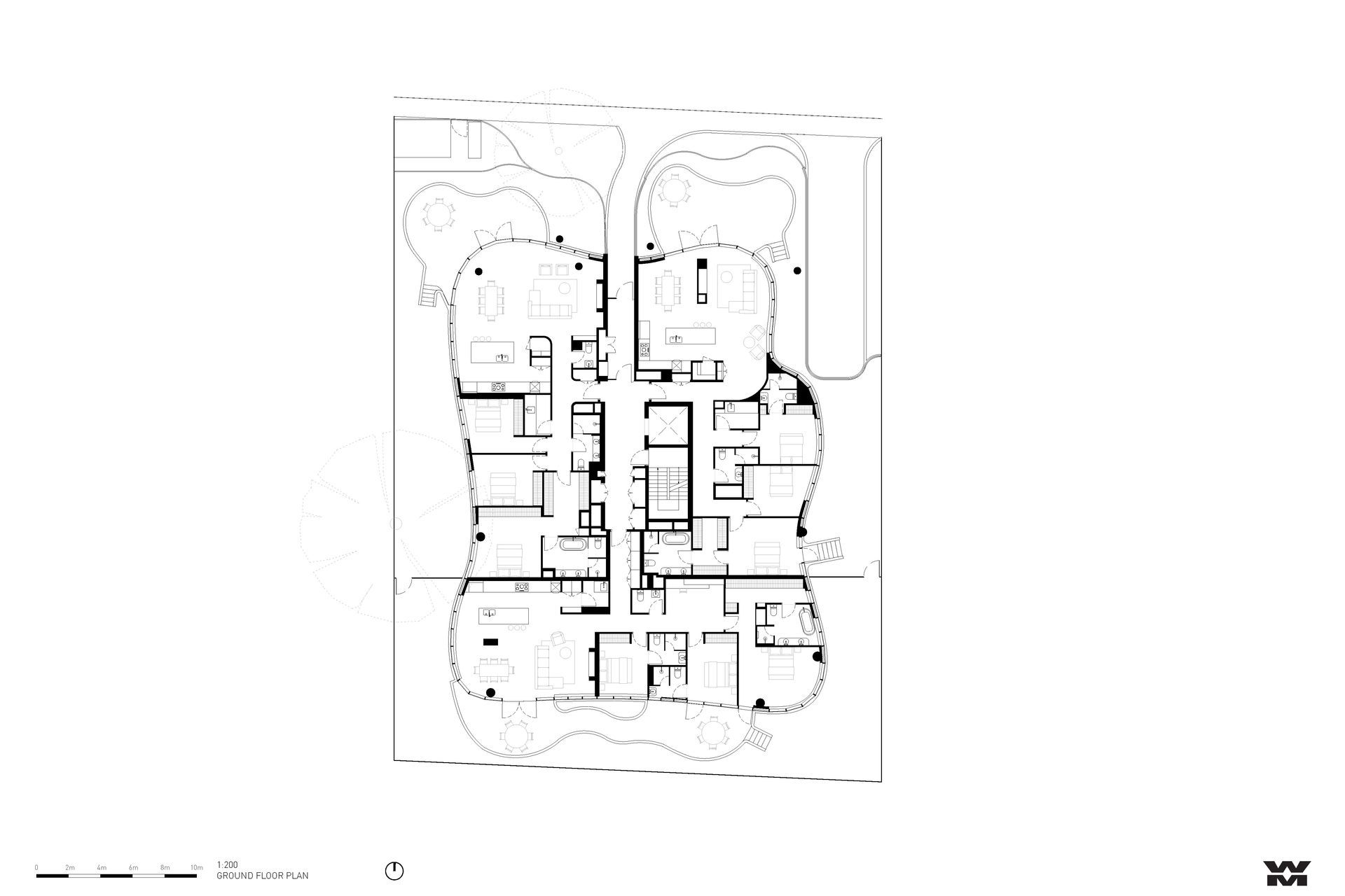
A building structure carefully disguised as an organic sculpture, No. 6 Sydney Street is a collection of 15 residences within a skeleton, grounded in craft, and inspired by nature. Located within the inner-city suburb of Prahran, its form and positioning create fluid connectivity to the natural surroundings of the adjacent Orrong Romanis Reserve.
- Title:
- No. 6 Sydney Street
- Architect:
- Wood Marsh
- Category:
- Residential/
- New Builds
- Completed:
- 2022
- Photographers:
- Wood Marsh
Project Gallery







1 / 6

























Views and Engagement
Professionals used

Wood Marsh. Roger Wood and Randal Marsh have been in private practice since 1983, and their early philosophical and aesthetic ideals have been sustained to inform their architecture throughout the ensuing decades. Contextual issues of locality and region underpin their diverse body of work, which spans residential, commercial and urban architecture.
The practice is renowned for its clarity of vision and its versatility, with art galleries, wineries and private homes as deftly executed as the extensive urban infrastructure the firm has created in and around Melbourne, where it is based.
In each project, Wood Marsh’s founding principles are evident: the sculptural quality of the external forms, the play of solidity and transparency, and the materiality of the limited palettes. Each reminds us that contemporary architecture can have a permanence, and that practical design can be unique and beautiful.
Unmoved by the ebb and flow of design trends, Roger Wood and Randal Marsh cite the arts, generally, rather than architecture specifically, as being of a greater influence on their practice and are proud that their work has been acquired by the National Gallery of Victoria, the National Gallery of Australia, RMIT University and private collectors.
The firm has also been recognised nationally and internationally as the recipient of more than 70 architecture industry awards.
Founded
1983
Established presence in the industry.
Projects Listed
40
A portfolio of work to explore.
Wood Marsh.
Profile
Projects
Contact
Project Portfolio
Other People also viewed
Why ArchiPro?
No more endless searching -
Everything you need, all in one place.Real projects, real experts -
Work with vetted architects, designers, and suppliers.Designed for New Zealand -
Projects, products, and professionals that meet local standards.From inspiration to reality -
Find your style and connect with the experts behind it.Start your Project
Start you project with a free account to unlock features designed to help you simplify your building project.
Learn MoreBecome a Pro
Showcase your business on ArchiPro and join industry leading brands showcasing their products and expertise.
Learn More

















